Tham khảo ngay mẫu thiết kế nhà ống 2 tầng 5 × 15 dưới 800 triệu
Mẫu thiết kế nhà ống 2 tầng 5x15m Rất thích hợp cho hộ gia đình ít thành viên hoặc vợ chồng trẻ. Thông thường, nhà phố 2 tầng hiện đại sẽ được thiết kế công năng gồm 2 phòng ngủ, 1 phòng khách và 1 phòng bếp. Tuy nhiên, thiết kế như thế nào cho hợp lý còn phụ thuộc vào nhiều yếu tố. Trước khi xây nhà, bạn nên tham khảo trước các mẫu thiết kế và học hỏi kinh nghiệm xây nhà từ các chuyên gia hoặc những người đi trước để có sự chuẩn bị tốt nhất cho ngôi nhà của mình.
Thời gian gần đây, Nhà Đẹp nhận được rất nhiều câu hỏi tư vấn về thiết kế nhà phố 2 tầng đẹp nên chúng tôi viết bài này xin gửi tới các bạn 3 mẫu tham khảo. 3 Mẫu nhà được phối cảnh và bố trí nội thất khoa học, hi vọng bạn sẽ có thêm nhiều ý tưởng mới cho việc thiết kế nhà.
Mẫu thiết kế nhà ống 2 tầng 5 × 15 tại Hải Phòng
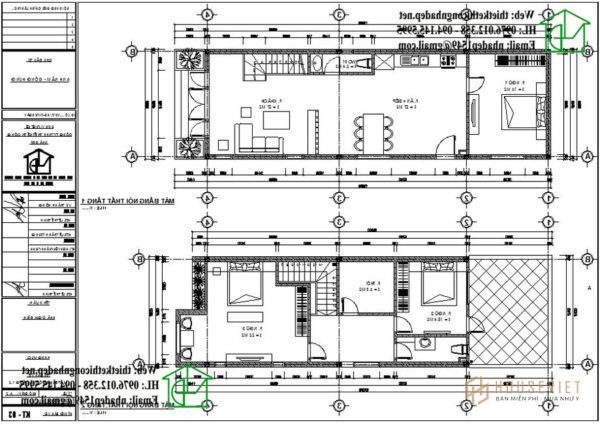
- Diện tích đất: 5x15m
- Diện tích sàn 1: 60m2
- Diện tích sàn 2: 55m2
- Tổng diện tích xây dựng: 115m2
- Tổng giá trị ước tính: 575 triệu đồng
Trong quá trình tư vấn mẫu nhà phố, Nhà Đẹp đã đưa ra mẫu nhà này cho rất nhiều gia chủ tham khảo và ai cũng cảm thấy vô cùng ưng ý với mẫu nhà này. Thiết kế không quá cầu kỳ nhưng cũng không thô sơ và đơn điệu, ngôi nhà toát lên vẻ đẹp sang trọng, quý phái. Hai màu tương phản đen và trắng được dùng làm màu sơn Ngôi nhà rất ấn tượng. Vẻ đẹp của màu trắng tượng trưng cho sự tinh khiết, là biểu tượng của một xuất phát điểm tốt đẹp. Tuy nhiên, nếu để màu trắng sẽ tạo cảm giác cô đơn, thiếu sức sống nên việc điểm thêm gam màu tương phản như nâu sẫm tượng trưng cho sự huyền bí và quyền lực, góp phần tăng tính thẩm mỹ và thu hút. cho ngôi nhà.

Phần mái xéo cũng là điểm ấn tượng thứ 2 mà mẫu thiết kế nhà ống 2 tầng 5 × 15 cung cấp. Nếu bạn đã quá quen thuộc với những kiểu mái thái, mái tôn hay mái bằng và muốn ngôi nhà của mình thật phá cách, mới lạ thì thiết kế mái lệch là một lựa chọn hoàn toàn hợp lý. Đổ mái xéo cũng tương tự như mái bằng nhưng thay vào đó là mái bằng, mái lệch, độ lệch và độ dốc hai bên mái khác nhau dẫn đến mái dốc đẹp, tạo hiệu ứng khác biệt. Dấu ấn kiến trúc độc đáo trong thiết kế nhà phố.
Tuy diện tích nhà không quá rộng nhưng chúng tôi quyết định xây một lối đi nhỏ bên trái nhà vừa có tác dụng thông gió, vừa giúp nhà thông thoáng hơn vừa tạo khoảng trống để ô tô tránh mưa. và hóng gió cho cả gia đình. Trang Chủ.
Xem chi tiết tại: Tham khảo ngay mẫu thiết kế nhà ống 2 tầng 5 × 15 dưới 800 triệu
Mẫu thiết kế nhà ống 2 tầng 5x15m tại Hà Giang
- Diện tích lô đất: 5x20m
- DTXD: 5 × 15 = 75m2
- Kinh phí dự kiến: 800 triệu đồng
Xem chi tiết: Bản vẽ thiết kế nhà phố 2 tầng 75m2 mái tôn 5x15m
Nếu rủng rỉnh tiền hơn, bạn có thể lựa chọn mẫu nhà phố 2 tầng dưới đây. Được thiết kế theo phong cách hiện đại, ngôi nhà được xây dựng với kết cấu khá đơn giản. Cổng gia chủ chọn loại cổng sắt sơn giả gỗ có tay cầm trượt sang hai bên nhưng không quá chặt để tạo sự giao lưu giữa hai không gian trong và ngoài nhà.

Nhìn từ bên ngoài, ngôi nhà được thiết kế đơn giản nhưng công năng nó chứa đựng lại vô cùng nhiều. Đi sâu vào bên trong ngôi nhà, bạn sẽ thấy những đặc điểm này. Tầng 1 được thiết kế gồm 1 phòng khách, 1 phòng ăn - bếp và 1 phòng ngủ. Nhà vệ sinh được thiết kế cuối nhà, ngay cạnh phòng ngủ và đối diện bếp thuận tiện cho việc sinh hoạt và đi lại của các thành viên.


Công năng tầng 3 gồm 1 phòng sinh hoạt chung, 1 phòng ngủ cho con gái và 1 vệ sinh nhỏ nằm cuối tầng. Diện tích còn lại dùng để làm sân phơi. Mẫu nhà phố 2 tầng mà chúng tôi giới thiệu trên đây phù hợp với những hộ gia đình có con nhỏ hoặc vợ công.
Xem chi tiết tại: Bản vẽ thiết kế nhà phố 2 tầng 75m2 5x15m mái tôn
Nhà phố 2 tầng tại Đông Hưng - Thái Bình
- Diện tích lô đất: 5x25m
- DTXD: 5x15m
- Diện tích sàn 1: 75m2
- Diện tích tầng 2: 65m2
- Tổng diện tích xây dựng: 140m2
- Tổng giá trị ước tính: 700 triệu (không nội thất)
Xem chi tiết: Thiết kế nhà phố 2 tầngMẫu nhà phố 2 tầng 5x15m NDNP2T2
Căn nhà phố nhà phố đẹp được xây dựng cho gia chủ ở Đông Hưng - Thái Bình dự kiến kinh phí là 700 triệu. Sự kết hợp hoàn hảo giữa ánh sáng và màu sắc tạo cho ngôi nhà vẻ ấm cúng, gần gũi nhưng vẫn rất sang trọng và hiện đại. Không gian xanh được chúng tôi thiết kế từng chi tiết xung quanh ngôi nhà. Không chỉ tăng thêm tính thẩm mỹ mà mỗi bông hoa, ngọn cỏ còn ẩn chứa sức sống mãnh liệt, nhìn vào giúp tâm hồn bạn thư thái, giảm căng thẳng, mệt mỏi.


Các bạn có thể tham khảo cách bố trí nội thất của ngôi nhà phố 2 tầng này. Chúng tôi đã thiết kế dựa trên số lượng thành viên và nhu cầu của gia chủ. Ngoài ra, yếu tố phong thủy cũng vô cùng quan trọng khi xây nhà bạn nên chú ý để mang lại những điều tốt đẹp nhất cho gia đình mình.
Xem chi tiết tại: Thiết kế nhà phố 2 tầng, Mẫu nhà phố 2 tầng 5x15m NDNP2T2
Trong 3 mẫu nhà chúng tôi giới thiệu, bạn nào ưng ý và muốn xem bản vẽ chi tiết hãy liên hệ với chúng tôi để nhận được sự hỗ trợ tốt nhất.
- Mẫu nhà phố 2 tầng 8x12m phong cách hiện đại NDNP2T11
- Muốn xây nhà 2 tầng đẹp phải kết hợp màu sơn như thế nào?
- Mẫu thiết kế nhà phố 2 tầng hiện đại mặt tiền NDNP2T10
- Tư vấn thiết kế xây nhà phố 2 tầng 5 × 20 hợp phong thủy
- https://thietkethicongnhadep.net/mau-nha-dep/biet-thu-co-dien/
- https://thietkethicongnhadep.net/mau-nha-dep/biet-thu-2-tang/