Thi công nhà thờ bê tông giả gỗ 10x8m tại Hưng Yên NDNTH24
Hầu hết mọi người khi xây dựng nhà thờ bằng bê tông đều rất cẩn thận và tỉ mỉ. Như mẫu thiết kế nhà thờ họ bê tông giả gỗ 10x8m này được chúng tôi thiết kế tại Hưng Yên. Không chỉ có đơn vị chúng tôi là đơn vị tư vấn thiết kế mà còn có rất nhiều đơn vị, nhiều người cùng tham gia tư vấn. Vì vậy thời gian thiết kế cho công trình cũng khá lâu, có thể mất đến 2 tháng để hoàn thiện hồ sơ. Đó là chưa kể trong quá trình thi công còn phải giám sát cũng như tư vấn thêm cho gia chủ. Từ cổng đến hàng rào để có sản phẩm hoàn thiện nhất.
Gia đình anh Đỗ Hùng Vương tìm đến công ty nhà đẹp với mong muốn thiết kế và thi công nhà thờ bê tông giả gỗ 10x8m tại quê hương anh. Vợ chồng bạn đến trực tiếp văn phòng thiết kế của công ty chúng tôi tại Hà Nội. Và đã chia sẻ rất nhiều về nhu cầu xây dựng và thi công công trình nhà thờ họ của anh. Gia đình bạn là con trưởng trong gia đình nên việc xây dựng và thi công mẫu thiết kế nhà thờ họ bê tông giả gỗ 10x8m là điều mà anh và những người lớn tuổi trong gia đình luôn mong muốn xây dựng một cách tối ưu nhất. . Dưới đây sẽ là phương án thiết kế phù hợp nhất với nhu cầu của gia đình chủ đầu tư. Hồ sơ thiết kế bao gồm: Hình ảnh phối cảnh 3D mặt ngoài công trình, bản vẽ mặt bằng công năng sử dụng, đến bản vẽ kỹ thuật chi tiết điện nước, kết cấu móng…
Thông tin về mẫu thiết kế nhà thờ họ 10x8m
Hiện nay tại Hưng Yên công ty Ngôi Nhà Đẹp cũng đang thi công trọn gói công trình nhà thờ họ Vương cũng gần. Đơn giá vật tư hiện nay khá cao nên chi phí xây dựng cho công trình cũng đội lên rất nhiều. Vì vậy nếu bạn đang có nhu cầu thi công thì hãy cân nhắc thật kỹ nhé.
- Chủ đầu tư: Anh Vương
- Địa điểm xây dựng: Hưng Yên
- Diện tích: 10x8m
- Tổng diện tích: 80m2
- Kinh phí dự kiến: 2 tỷ đồng
Phối cảnh 3D 10x8m. thiết kế nhà thờ

Loại vật liệu được sử dụng trong thi công nhà thờ bê tông giả gỗ 10x8m ở nông thôn là gỗ và bê tông. Toàn bộ kết cấu khung kèo của nhà thờ được làm bằng bê tông còn mặt tiền và cửa ra vào đều bằng gỗ và sơn giả gỗ. Vẻ đẹp giản dị và mộc mạc trong kiến trúc của tòa nhà được thể hiện qua sự kết hợp giữa hai loại vật liệu truyền thống và hiện đại này. Bê tông giả gỗ kết hợp với gỗ tự nhiên mang đến cho không gian mặt tiền của nhà thờ họ thêm phần cuốn hút và tinh tế. Khu vực trung tâm của ngôi nhà được sử dụng hoàn toàn bằng gỗ, gam màu nâu gỗ mang đến cho ngoại thất vẻ trầm mặc, giản dị và ấn tượng. Ngược lại, chất liệu bê tông bao quanh kết hợp với sơn trắng tạo cho ngôi nhà một điểm nhấn độc đáo, một điểm dừng chân mãn nhãn cho người nhìn.

Hệ thống cột ở mặt tiền nhà thờ, với 4 trụ tròn lớn màu nâu gỗ mang đến cho không gian kiến trúc sự thoải mái, chắc chắn và ma mị. Hệ thống cột, trụ được làm bằng bê tông giả gỗ. Nếu không có điều kiện kinh tế để sử dụng nguyên liệu gỗ tự nhiên nguyên chất trong xây dựng nhà thờ, bạn hoàn toàn có thể tận dụng bê tông giả gỗ. Hiện nay, việc sử dụng vật liệu bê tông giả gỗ trong các thiết kế nhà thờ họ ngày nay rất phổ biến, tối ưu và độc đáo nhất.

Phần mái ngói ấn tượng được sử dụng trong thi công nhà thờ bê tông giả gỗ 10x8m ở nông thôn mang đến cho quý vị sự tiện nghi, tính thẩm mỹ và sự chú ý lớn đến thiết kế không gian mặt tiền. Phần mái trong thiết kế nhà thờ họ là một trong những yếu tố quan trọng tạo nên giá trị thẩm mỹ, cũng như hình thức đẹp bắt mắt. Màu sắc mái ngói được sử dụng trong ngôi nhà thể hiện sự giản dị, mộc mạc rất phù hợp với yếu tố phong thủy của gia đình. Sử dụng mái ngói đỏ sẫm tạo nên sự nổi bật cho công trình, sự hài hòa, may mắn, thuận buồm xuôi gió,… cho mọi thành viên trong gia đình chủ đầu tư, cũng như mang lại may mắn cho mọi người con cháu. trong dòng họ.

Hệ thống chi tiết sảnh, tam cấp, loại gạch lát nền màu đỏ đồng màu với mái ngói thể hiện những giá trị cao về không gian kiến trúc truyền thống và ấn tượng của công trình này. Màu đỏ sậm, tươi,… tôn thêm sự mới mẻ, tinh tế, đẳng cấp và khác biệt cho tổng thể không gian của ngôi nhà thờ này.

Không gian sân vườn trong công trình nhà thờ bê tông giả gỗ 10x8m cũng là cách tận dụng được sự tiện nghi, tinh tế trong cách bài trí, sắp xếp hài hòa với công năng sử dụng của mẫu nhà thờ họ. Không gian xung quanh xanh mát, yên bình và giản dị của những mẫu thiết kế nhà thờ họ chính là cách giúp tạo nên tính thẩm mỹ cao, bề thế và chắc chắn. Hệ thống cây xanh, hoa lá, tiểu cảnh trang trí… mang đến cho không gian nhà thờ họ 10x8m vẻ đẹp ấn tượng, đẳng cấp và sâu lắng.
Ngoài ra còn có khu nhà ở vuông góc với nhà thờ - Đây là nơi để con cháu nghỉ ngơi, thư giãn vào những ngày lễ tết và có nơi nghỉ ngơi, thư giãn. Nhìn chung, không gian nhà ở vẫn được kiến trúc sư thiết kế với đầy đủ công năng sử dụng tiện nghi cho gia đình chủ đầu tư.
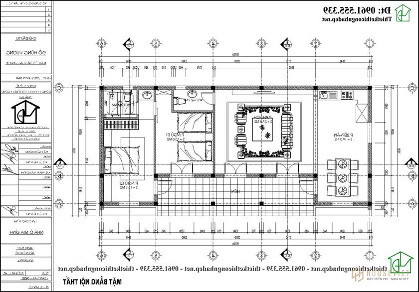
Mặt bằng nhà thờ họ bê tông giả gỗ 10x8m

Với bản quy hoạch tổng thể này bạn sẽ biết được vị trí xây dựng mẫu nhà thờ họ, mẫu nhà và khu để xe, coognr, hàng rào ô tô. Mình đi rẫy khu này đường vào nhà thờ hơi nhỏ nên cổng và tường rào cần thiết kế lại để sau này gia chủ có thể cho ô tô vào trong sân. Nếu bạn có mảnh đất rộng hơn thế này thì quá tuyệt vời, sân càng rộng thì nhà thờ càng đẹp.

Không gian của nhà thờ rất ấm áp và thoáng mát. Từ cầu thang lên không gian thờ qua hệ thống cửa gỗ 4 cánh là khu vực 3 gian thờ trong đó có gian thờ chính là gian lớn nhất, 2 gian bên cạnh là gian thờ phụ. 3 gian thờ đều có 3 bộ bàn thờ, đồ dùng đầy đủ, khang trang tạo điều kiện thuận lợi cho con cháu về thắp hương cho tổ tiên vào các dịp lễ, ngày rằm, mùng 1.

Đến với khu nhà ở, phần công năng được bố trí đầy đủ nhất là không gian phòng khách rộng rãi, thoáng mát - nơi dùng để tiếp khách của cả gia đình chủ đầu tư. Tiếp đến là 2 phòng ngủ master với 2 vệ sinh khép kín tạo sự thuận tiện cho quá trình sinh hoạt của các thành viên trong gia đình. Cuối cùng là khu bếp + ăn thoáng mát để nấu nướng, ăn uống mà không lo ám mùi thức ăn.
Trên đây là những thông tin về công trình nhà thờ bê tông giả gỗ 10x8m mà kiến trúc sư công ty nhà đẹp chúng tôi đã thực hiện cho gia đình anh Đỗ Hùng Vương. Công trình được thực hiện, hoàn thành mang vẻ đẹp giản dị, mộc mạc nhưng gần gũi thân thương. Nếu gia đình có mong muốn, nhu cầu xây dựng, thiết kế kiến trúc, nội ngoại thất có thể liên hệ trực tiếp với các kiến trúc sư của chúng tôi để được tư vấn phương án phù hợp nhất.
- So sánh giữa làm nhà thờ họ bằng bê tông và nhà thờ họ bằng gỗ