Thiết kế căn hộ Celina Peninsula Resort Quảng Bình - SH KS 0095
Mùa hè sắp đến, nhu cầu đi du lịch cũng ngày càng tăng cao. Điều này tạo nên cơn sốt thiết kế - thi công khách sạn, resort ngày càng được các chủ đầu tư quan tâm. Có thể nói, bên cạnh chất lượng dịch vụ và tiện nghi khác biệt, kiến trúc khách sạn đóng một vai trò quan trọng trong việc thu hút và giữ chân khách hàng tiềm năng.
Trong bài viết ngày hôm nay, hãy cùng Sơn Hà Group đến thăm khu nghỉ dưỡng cao cấp do Sơn Hà Group thiết kế mang tên Celina Peninsula Resort, tọa lạc tại Quảng Bình nhé!
Thông tin dự án:
- Chủ đầu tư: Khu nghỉ dưỡng Bán đảo Celina
- Cơ quan thực hiện: Sơn Hà Group (#SHAC)
- Loại hình: Thiết kế khách sạn / resort
- Số tầng: 7 tầng 1 tum
- Toàn bộ khu vực: 2150m2
- Mặt tiền: 60m. mặt tiền
- Màn biểu diễn:
- Tầng trệt: Sảnh lễ tân; Khu Buffet; Bếp; Văn phòng; Nhà kho; Phòng vệ sinh
- Tầng 2: Nhà hàng kết hợp phòng hội nghị; Phòng họp; Sảnh đợi; Khu vực phục vụ; Phòng vệ sinh
- Tầng 3 - 6: 21 phòng khác nhau; Sảnh đợi
- Tầng 7: 20 phòng khác nhau; Sảnh đợi; 1 Phòng Tổng thống
- Tầng áp mái: Hành lang; Kho
Giới thiệu về dự án Celina Peninsula Resort Quảng Bình
Nằm cạnh bãi biển Bảo Ninh, dự án thiết kế và xây dựng Celina Peninsula Resort sở hữu “tọa độ vàng”, nối liền bãi biển này với trung tâm thành phố Đồng Hới. Khu nghỉ dưỡng cao cấp có tổng diện tích lên đến 32.500m2, được định hình như một món quà dành cho những du khách đang tìm kiếm một không gian để nghỉ ngơi và thư giãn.

Với tiêu chuẩn 5 sao sang trọng, toàn bộ quy hoạch, thiết kế kiến trúc và nội thất của khách sạn đều được lên kế hoạch cụ thể, lựa chọn từ nhiều phương án khác nhau để mang lại kết quả cuối cùng hoàn hảo. . Tại dự án này, Tập đoàn Sơn Hà đã thành công trong việc hiện thực hóa tầm nhìn và ước mơ của chủ đầu tư, mang đến một thiết kế đẳng cấp, sang trọng, xa hoa và tinh tế!
Thiết kế khu resort mặt tiền 50m.
Trong bất kỳ thiết kế nào, mặt tiền luôn là thứ quan trọng nhất, thu hút sự chú ý cũng như mang đến cái nhìn tổng quan, tinh thần mà chủ đầu tư muốn truyền tải. Điều này đặc biệt quan trọng trong các công trình thương mại như nhà hàng, khách sạn và các khu nghỉ dưỡng cao cấp như Celina Resort Quảng Bình.

Với chủ đề đưa ra là phong cách sang trọng, đẳng cấp thể hiện vị thế của một khách sạn 5 sao, Tập đoàn Sơn Hà đã sử dụng tinh thần tân cổ điển của phong cách Pháp, kết hợp với âm hưởng thiết kế hiện đại. để tạo ra thiết kế này. Mặt tiền 50m được bố trí các khối kiến trúc thông minh, với các chi tiết xếp chồng lên nhau tạo nên những khoảng sáng tối hút mắt. Những cột trụ xen kẽ và hoa văn phào chỉ tạo nên sự sang trọng, quý phái, trong khi những ô cửa kính hình vòm mang lại cảm giác vừa cổ điển vừa hiện đại.

Về tông màu chủ đạo, Tập đoàn Sơn Hà chọn gam màu trắng cho toàn bộ ngoại thất khách sạn. Tông màu trắng mang đến sự sang trọng và lịch sự, thể hiện rõ triết lý thiết kế trên, đồng thời làm nổi bật các chi tiết thiết kế cũng như không gian ấn tượng khác. Tông màu trắng kết hợp với các chi tiết vàng, khung kim loại trên cửa sổ, cửa chính và nội thất, tất cả tạo nên một thiết kế sang trọng và đẳng cấp.
Mặt bằng các khu nghỉ dưỡng cao cấp tại Quảng Bình
Bên cạnh vẻ đẹp bên ngoài, yếu tố nội thất bên trong thì công năng sử dụng cũng là điều mà nhiều du khách quan tâm khi đi nghỉ dưỡng, ảnh hưởng rất lớn đến quyết định đặt phòng khách sạn, resort. Tại dự án này với quy mô 7 tầng 1 tum, Tập đoàn Sơn Hà đưa ra cách phân chia công năng thông minh, tiện dụng và đặc biệt là tối đa hóa không gian sử dụng. Cụ thể, các chức năng của khách sạn được phân chia như sau:
- Tầng trệt: Sảnh lễ tân; Khu Buffet; Bếp; Văn phòng; Nhà kho; Phòng vệ sinh
- Tầng 2: Nhà hàng kết hợp phòng hội nghị; Phòng họp; Sảnh đợi; Khu vực phục vụ; Phòng vệ sinh
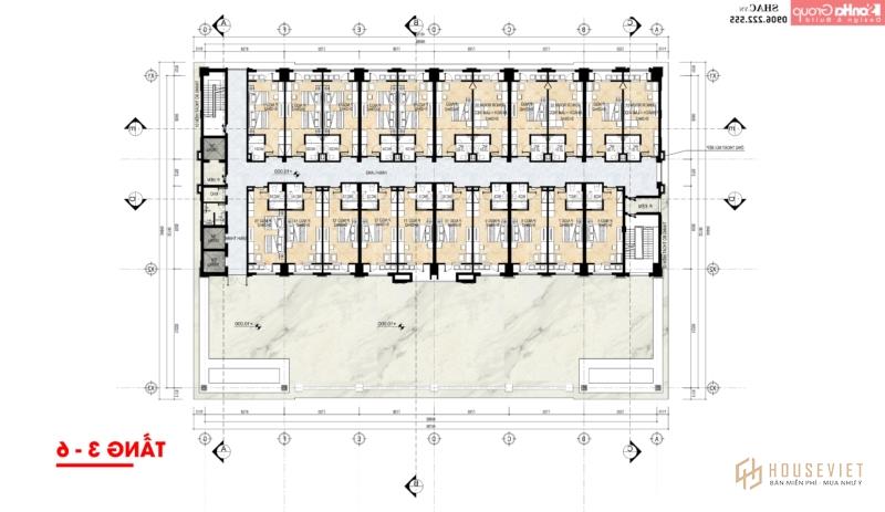
- Tầng 3 - 6: 21 phòng khác nhau; Sảnh đợi
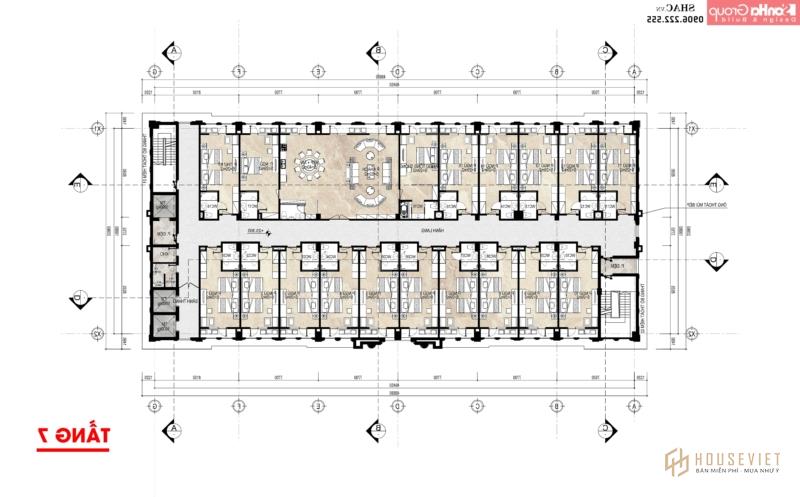
- Tầng 7: 20 phòng khác nhau; Sảnh đợi; 1 Phòng Tổng thống
- Tầng áp mái: Hành lang; Kho

Tầng trệt là khu lễ tân nên Tập đoàn Sơn Hà bố trí sảnh đón rộng rãi, các không gian còn lại là khu đệm, bếp ăn, phòng làm việc, kho và khu vệ sinh.

Ở tầng 2, không gian này được thiết kế nhà hàng kết hợp với các phòng hội thảo, hội nghị. Bên cạnh đó là các khu dịch vụ, phòng vệ sinh và hành lang.

Từ tầng 3 đến tầng 6 được chia thành các phòng. Trong đó, mỗi tầng có 21 phòng với không gian đa dạng và khác nhau. Các phòng được kết nối với nhau bằng hành lang rộng, trải dài theo diện tích mặt sàn.

Tầng 7 là tầng dành cho 20 phòng tương tự như các tầng bên dưới. Tuy nhiên, điểm đặc biệt của tầng này là có phòng tổng thống với chức năng và diện tích đặc biệt hơn các phòng khác.
Nội thất Celina Peninsula Resort Quảng Bình
Với tổng diện tích xây dựng lên đến 2150m2 và được phân chia công năng như trên, Sơn Hà Group mời quý vị cùng tham quan các không gian nội thất bên trong khu nghỉ dưỡng. Với phong cách hiện đại, hòa cùng âm hưởng Đông Dương tinh tế đã mang đến những trải nghiệm tuyệt vời và độc đáo. Sự kết hợp của những gam màu tươi sáng như vàng, xanh, cam, .. cùng những chi tiết kim loại trắng tinh tế, Sơn Hà Group mang đến một gợi ý thiết kế khách sạn 5 sao, thiết kế diện tích. Khu nghỉ dưỡng tuyệt vời cho những chủ nhà đang tìm kiếm một dự án tương tự. Các bạn cùng xem nhé!
Những hình ảnh nội thất trên cũng kết thúc bài viết về thiết kế resort, khách sạn 5 sao Celina Peninsula Resort do Tập đoàn Sơn Hà thiết kế và xây dựng tại Quảng Bình. Với những hình ảnh và gợi ý trên, Sơn Hà Group tin rằng bạn đọc đã phần nào hiểu được tinh thần và triết lý thiết kế của dự án hiện nay. Xin cảm ơn và hẹn gặp lại các bạn trong những bài viết tiếp theo!