Thiết kế khách sạn mini 2 sao tân cổ điển đẹp tại Nam Định - SH KS 0061
Đóng góp vào thành công chung của lĩnh vực thiết kế khách sạn và thiết kế nội thất khách sạn của Công ty Cổ phần Tư vấn Xây dựng Sơn Hà (SHAC, Sơn Hà Architecture) không thể không kể đến những mẫu thiết kế khách sạn. mini 2 sao (trong đó đáng kể nhất là khách sạn tân cổ điển).

NỘI DUNG CHÍNH
- Đầu tiên Khách sạn được thiết kế đạt tiêu chuẩn 2 sao quốc tế
- 2 Phong cách kiến trúc tân cổ điển
- 3 Sơ đồ mặt bằng và chức năng
- 4 Kế hoạch thiết kế nội thất
Với kinh nghiệm và năng lực được khẳng định qua các giải pháp thiết kế nhà cao tầng trải dài khắp 3 miền đất nước, năm 2018 tiếp tục được coi là lĩnh vực “gập ghềnh” của SHAC trên phương diện kinh doanh. thiết kế khách sạn với các dự án lớn nhỏ khác nhau cùng với các mảng màu dành cho thị trường các tỉnh. thiết kế khách sạn tại nam định với sự xuất hiện của các dự án mới cũng đã khẳng định được vị thế của mình. Trong bài viết hôm nay, mời quý vị bạn đọc cùng tham khảo bộ hồ sơ thiết kế khách sạn mini 2 sao tân cổ điển do anh Trí làm chủ đầu tư - diện mạo công trình có diện mạo mới tại đây.
[embed]https://www.youtube.com/watch?v=dYKPPQA5Wqc[/embed]
Video tổng quan
Khách sạn được thiết kế đạt tiêu chuẩn 2 sao quốc tế
Tiêu chuẩn thiết kế khách sạn 2 sao đã được các kiến trúc sư sử dụng tốt nhất trong thiết kế mô hình khách sạn mini SH KS 0061, được đảm bảo và triển khai chi tiết nhất trong tổng thể và tạo nên phương án thiết kế chinh phục hoàn toàn chủ đầu tư khó tính.
Ảnh thiết kế kiến trúc & nội thất dự án
Không chỉ với những mẫu thiết kế khách sạn mini, đối với bất kỳ công trình nào thì yếu tố địa lý cũng cần được quan tâm hàng đầu. Đối với những dự án mà mục đích kinh doanh đặt lên hàng đầu như khách sạn, nhà hàng thì lại càng quan trọng hơn. Vì vậy, việc lựa chọn vị trí địa lý thuận lợi để bắt đầu chiến lược kinh doanh khách sạn lâu dài và hiệu quả chính là chìa khóa thành công của SH KS 0061.
Thông tin dự án
Phong cách kiến trúc tân cổ điển
Kiến trúc ngoại thất của mẫu khách sạn đẹp SH KS 0061 nổi bật với màu trắng tinh tế. Đây cũng là gam màu chủ đạo được sử dụng trong các thiết kế khách sạn, đặc biệt là các khách sạn cao tầng. Lý giải cho điều này, các kiến trúc sư chia sẻ rằng gam màu trắng đồng nhất từ ngoại thất khách sạn cho đến nhà hàng bên cạnh tạo nên nét đặc trưng trong thiết kế, dễ dàng làm nổi bật những điểm nhấn bằng những gam màu khác nhau. Quả thực không thể phủ nhận rằng công trình thiết kế khách sạn tân cổ điển tại Nam Định của chủ đầu tư anh Trí thực sự nổi bật so với các công trình cùng khu vực (mà sự nổi bật ở đây là yếu tố cần có của dự án). từng dự án phục vụ du lịch, nghỉ dưỡng, nhà hàng, ...)
Kiến trúc mặt tiền

Ngoài việc đảm bảo các tiêu chuẩn thiết kế khách sạn mới nhất, để lên phương án thiết kế kiến trúc khách sạn 2 sao phù hợp với yêu cầu và nguyện vọng của chủ đầu tư, các kiến trúc sư của chúng tôi ngoài việc khảo sát kỹ lưỡng yêu cầu công năng của khách hàng cũng khá chú trọng. về cảnh quan xung quanh để tạo điểm nhấn và nổi bật của công trình so với các công trình khách sạn lân cận.
Nhìn tổng thể
Một trong những điểm nhấn thiết kế của dự án là mặt tiền khách sạn 2 sao tân cổ điển. Cụ thể, mặt tiền của khách sạn mini 2 sao đẹp SH KS 0061 được thiết kế với các khối kiến trúc đua ra tạo điểm nhấn, mang đến sự bề thế, bề thế và bề thế cho tổng thể khách sạn 2 sao. phần mộ.

Không quá lời khi nói rằng phong cách tân cổ điển đã mang đến những không gian đầy màu sắc và những cung bậc cảm xúc khác nhau cho mỗi người dù nhìn từ góc độ nào. Điểm chung của các công trình kiến trúc theo phong cách tân cổ điển là các công trình được thiết kế gợi cảm giác thích thú cho mỗi người nhờ sự chuyển động tương phản giữa hình khối và màu sắc của từng khối chi tiết, đường nét. chỉ trang trí tuân theo những quy tắc nghiêm ngặt trong trang trí kiến trúc.
Phân tích kỹ hơn trong mẫu thiết kế khách sạn 8 tầng tại Nam Định, với hình khối kiến trúc cân đối, sử dụng các đường thẳng làm nổi bật các cột trụ uy nghi khiến kiến trúc của công trình càng thêm bề thế và ấn tượng. Đặc biệt, các chi tiết hoa văn được chỉ nhẹ nhàng tạo độ mềm mại nhất định cho tác phẩm. Sảnh khách sạn ấn tượng với chất liệu đá hoàng gia nổi bật trên nền trắng trang nhã của khách sạn mang đến cho du khách cảm giác sang trọng và cuốn hút lạ kỳ.
Hình ảnh thực tế của dự án
Dưới đây là một số hình ảnh thực tế của dự án này. Chúng tôi đã chụp ảnh trong quá trình giám sát dự án.
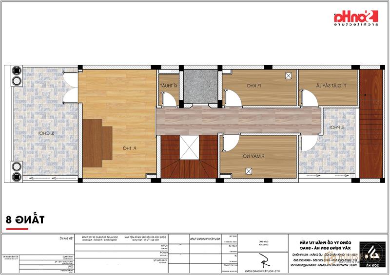
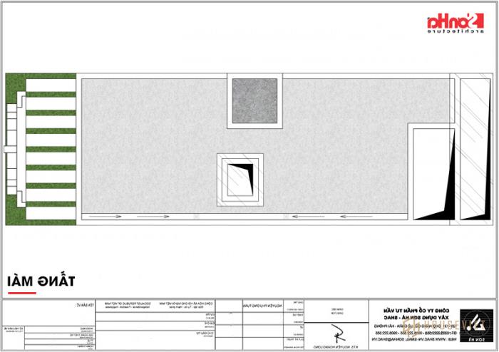
Sơ đồ mặt bằng và chức năng
Một tôn chỉ làm việc của SHAC là khi nhận được yêu cầu riêng, chúng tôi phải cố gắng nắm bắt, thực hiện tốt và đưa ra các phương án, giải pháp thiết kế phù hợp nhất cho từng không gian sử dụng của công trình, từng chi tiết. chi tiết trong thiết kế và sử dụng của từng công trình. Theo đó, phương án đảm bảo sự vận hành chặt chẽ, nhịp nhàng của mẫu thiết kế khách sạn 2 sao tân cổ điển SH KS 0061 được thể hiện rất rõ trong bản mặt bằng chi tiết mà chúng tôi giới thiệu đến các bạn. Như sau:







Kế hoạch thiết kế nội thất
Cuối bài viết, chúng tôi xin giới thiệu đến các bạn mẫu thiết kế nội thất khách sạn tân cổ điển tiêu chuẩn 2 sao - những không gian được đánh giá là vô cùng thời thượng và hoàn hảo.








Cùng với hồ sơ thiết kế khách sạn mini tiêu chuẩn 2 sao tại Nam Định của chủ đầu tư anh Trí, chuyên mục thiết kế khách sạn nói riêng và thiết kế nhà đẹp nói chung của SHAC sẽ liên tục cập nhật những phương án mới nhất. . Cảm ơn các bạn đã theo dõi bài viết tổng hợp những tài liệu tham khảo hữu ích và thiết thực nhất.
Để biết thêm chi tiết vui lòng liên hệ:CÔNG TY CỔ PHẦN TƯ VẤN XÂY DỰNG SƠN HÀ (SHAC)Trụ sở chính: Số 318 - 319 HK3 Phố Bùi Viện, Lê Chân, Hải Phòng
- Điện thoại: 0225 2222 555
- Hotline: 0906 222 555
- Email: sonha@shac.vn
Văn phòng đại diện
- Tại hà nội: Số 4/172, Ngọc Hồi, Huyện Thanh Trì, TP. Hà nội
- Ở quảng ninh: Số 289, Phường Giếng Đáy, TP. Hạ Long, Tỉnh. Quang ninh
- Tại đà nẵng: Số 51m Đường Nguyễn Chí Thanh, Phường Thạch Thang. Q. Hải Châu, Tp. Đà Nẵng
- Ở sài gòn: Số 45 Đường 17, Khu B, An Phú, Quận 2, TP. Hồ Chí Minh
- Xưởng nội thất: Số 45 Thông Trực, Nam Sơn. Kiến An, Tp. Hải phòng