Thiết kế kiến trúc biệt thự 3 tầng 220m2 tại Sóc Sơn, Hà Nội
THÔNG TIN DỰ ÁN:
- Chủ đầu tư: Chú Vinh
- Diện tích 220m2 (3 tầng)
- Vị trí: Huyện Sóc Sơn, Thành phố Hà Nội.
- Phong cách thiết kế: Hiện đại
Hình ảnh 3D của ngôi biệt thự ở Sóc Sơn, Hà Nội
Không gian kiến trúc biệt thự nhìn từ xa được bố trí tinh tế, hài hòa. Kết cấu các tầng được phân bố hợp lý với các đường nét chắc chắn, mạch lạc. Kiến trúc của ngôi biệt thự được xây dựng từ những đường nét thẳng, chắc chắn với những điểm nhấn độc đáo. Điểm nổi bật của ngôi biệt thự là ngoại thất được trang trí bằng những khung cố định chắc chắn, được chia thành các ngăn riêng biệt.


Kiến trúc mặt tiền được lựa chọn gam màu sơn trung tính mang đến vẻ đẹp sang trọng, cuốn hút. Hệ thống khung các kích thước khác nhau để tận dụng tối đa ánh sáng tự nhiên. Ánh sáng tự nhiên kết hợp với cảnh quan xanh mát tạo nên không gian gần gũi, hòa hợp với thiên nhiên.


Với đặc điểm là mái bằng có không gian thoáng giúp ngôi biệt thự có thể tổ chức các hoạt động vui chơi, giải trí. Bên cạnh đó màu sơn trung tính đặc trưng tạo nên vẻ đẹp hiện đại. Sự kết hợp của khung gỗ màu nâu và tấm ốp tường màu xám làm nổi bật thiết kế không gian. Nhìn từ xa, sự kết hợp màu sắc đó tạo nên một tổng thể hài hòa mà không kém phần hiện đại.

Nếu tầng 2 và tầng 3 là sự kết hợp màu sắc trung tính với các vật liệu ốp cụ thể. Tầng 1 trung thành với gam màu xám đen nổi bật. Cách phối màu này hài hòa với khuôn viên cây xanh vừa giúp tầng 1 nổi bật, vừa đảm bảo tính thẩm mỹ.


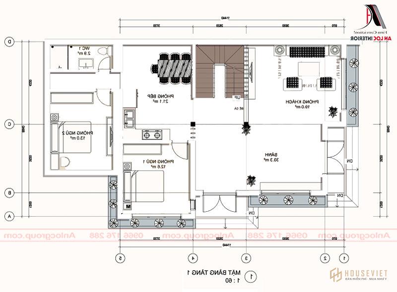
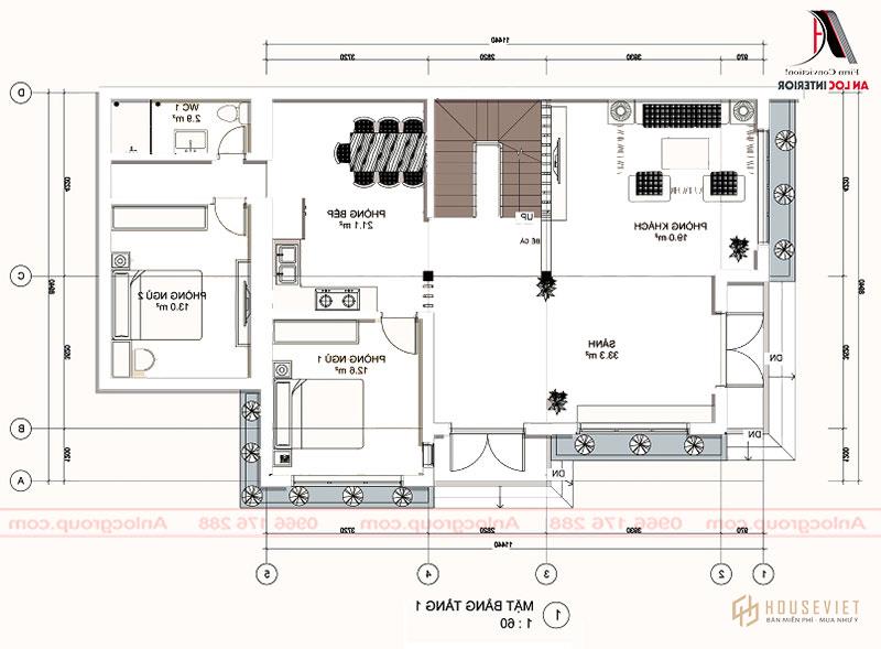
Bản vẽ mặt bằng biệt thự tại Sóc Sơn, Hà Nội
Mặt bằng chi tiết được bố trí chi tiết qua hình vẽ bên dưới. Nhìn vào bản vẽ, khách hàng có thể hình dung được diện tích, vị trí, các thông số cụ thể của căn biệt thự. Đồng thời, dựa trên kiến trúc đó, khách hàng bố trí hệ thống điện, nước, mạng phù hợp với nhu cầu của không gian sống. Bên cạnh đó, hãy sắp xếp những vật dụng cần thiết cho không gian, đồng thời lên ý tưởng trang trí nội thất.

House Viet mang đến cho khách hàng mẫu thiết kế biệt thự 3 tầng với kiến trúc độc đáo. Bên cạnh đó, chúng tôi còn hỗ trợ khách hàng thiết kế và thi công nội thất qua Hotline 1800 6015. Với nhiều năm kinh nghiệm trong nghề và đội ngũ kiến trúc sư dày dặn kinh nghiệm. Chúng tôi luôn mang đến cho khách hàng những không gian sinh hoạt tiệc đẳng cấp, ấn tượng nhất.
THAM KHẢO:
- Mẫu thiết kế biệt thự 3 tầng hiện đại diện tích 90m2
- Thiết kế kiến trúc nhà cấp 4 mái bằng 12x30m tại Phú Thọ
House Viet - Vững vàng niềm tin
 
  
  
 ![[CẬT NHẬT!!!] 400+ Mẫu nhà vuông 3 tầng vượng khí với dòng chảy tuần hoàn (P2)](https://cdn.houseviet.vn/images/news/19042022/132948532019224198-m.png) 
 