Thiết kế mẫu nhà ngang cấp 4 2 phòng ngủ 7x20m NDNC4160
Sẽ thế nào nếu bạn có một mảnh đất bề ngang rất rộng nhưng lại không sâu. Giả sử mảnh đất của bạn rộng 30m nhưng chỉ sâu từ 10 đến 12m. Giải pháp chính là mẫu nhà cấp 4 2 phòng ngủ mà Nhà Đẹp muốn chia sẻ đến các bạn sau đây. Công trình nhà ngang này được Nhà Đẹp thiết kế cho chú Thế, quê ở Ninh Bình. Với chiều ngang và chiều sâu của mảnh đất hạn chế thì giải pháp nhà cấp 4 ngang là một giải pháp hoàn hảo cho mảnh đất này. Hiện chú Thế đang công tác và làm việc tại Hà Nội và xây nhà ở quê để thỉnh thoảng về quê cho tiện sinh hoạt. Hiện ngôi nhà cũ đã quá dột nát nên sinh hoạt khá bất tiện và khá nguy hiểm. Tuy nhiên nhu cầu của gia đình không nhiều nên chỉ cần thiết kế nhà cấp 4 2 phòng ngủ là đủ. Ngoài ra còn có thêm một không gian làm gara ô tô, vì gia chủ muốn gara có mái che nên chúng tôi đã thiết kế cho gia chủ theo dạng gara mở. Tức là có mái che nhưng xung quanh thông thoáng, vừa đảm bảo thẩm mỹ, vừa đảm bảo được yêu cầu và tiết kiệm được một ít chi phí xây dựng, thi công. Và bây giờ Nhà Đẹp xin mời các bạn cùng tham khảo và chiêm ngưỡng mẫu thiết kế nhà cấp 4 này nhé.
Tại sao có rất ít nhà cấp 4?
Chắc hẳn bạn sẽ không để ý nhiều đến việc tại sao lại có rất ít kiểu nhà ngang cấp 4, bạn thử tìm kiếm mẫu nhà cấp 4 kiểu nhà ống, có rất nhiều mẫu nhà cấp 4 vuông vắn nhưng tìm được mẫu nhà nhà cấp 4 ít hơn. hơn. Có thể bạn không biết lý do, nhưng tôi sẽ chỉ cho các bạn nếu đó là sự thật.
- Với nhà ngang chúng ta sẽ khó bố trí nội thất bên trong, vì chiều sâu hẹp nên sẽ phải bố trí hành lang như nhà ống cấp 4. Vì vậy diện tích của ngôi nhà sẽ tốn kém hơn rất nhiều so với việc bố trí mặt bằng của một ngôi nhà cấp 4 vuông vắn.
- Về mặt kiến trúc, nhà ngang cũng sẽ khó thiết kế hơn, sẽ khó có kiểu nhà đẹp phù hợp với ngôi nhà của bạn.
Đó là hai lý do mà các kiến trúc sư hay người tiêu dùng sẽ hạn chế sử dụng các mẫu thiết kế nhà cấp 4 mái thái. Tuy nhiên, nếu đất của bạn không lớn, chúng tôi chỉ có thể chấp nhận.
Giá xây dựng dự kiến cho mẫu nhà cấp 4 2 phòng ngủ
Đây là một trong những kiểu nhà cấp 4 có diện tích và công năng khá nhỏ chỉ gồm 2 phòng ngủ. Do đó, đơn giá xây dựng hoàn thiện của mẫu nhà cấp 4 này dự kiến sẽ không cao. Mời các bạn xem qua bảng giá xây dựng dự kiến cho căn nhà này.
- Chủ đầu tư: Chú Thế
- Địa điểm xây dựng: Ninh Bình
- Diện tích xây dựng nhà: 88 m2
- Diện tích mái sảnh: 16,9 m2
- Diện tích vành mái: 88 × 0,4 = 35,2m2
- Tổng diện tích mái bê tông: 88 + 16,9 + 35,2 = 140,1m2
- Tổng giá trị xây dựng dự kiến: 140,1 × 5.000.000 = 700.500.000 đồng
Vì vậy dự kiến để hoàn thiện căn nhà này chúng ta cần chuẩn bị 700 triệu, hiện tại đơn giá vật liệu xây dựng năm nay khá cao nên khi xây dựng các bạn cần lưu ý.
Phối cảnh 3D mẫu nhà cấp 4 2 phòng ngủ 7x20m tại Ninh Bình

Đây là phối cảnh nhà ngang bạn sẽ thấy phần mái được thiết kế theo dạng mái thái, tone màu xanh lam kết hợp với màu sơn tường trắng. Trần nhà được sơn màu xám để giảm bớt sự đơn điệu cho các bức tường.



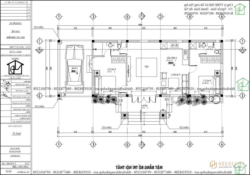
Công năng sử dụng gồm: 1 phòng khách, 1 bếp và 2 phòng ngủ, 1 gara. Có thể thấy ở giữa sẽ là phòng khách và bếp, đối diện cửa ra vào sẽ là sập gỗ. Hai bên được thiết kế 2 phòng ngủ và 2 vệ sinh. Gồm 1 vệ sinh chung và 1 vệ sinh riêng. Đi về bên phải sẽ có hành lang dẫn ra sân vườn và gara ô tô riêng biệt, độc lập.
Trên đây là phần giới thiệu về mẫu nhà cấp 4 2 phòng ngủ để các bạn tham khảo. Nếu bạn đang có ý định thiết kế hoặc cần hỗ trợ thì có thể liên hệ với đội ngũ Nhà Đẹp để được tư vấn kỹ hơn. Nếu không thích bạn có thể tham khảo thêm các mẫu nhà cấp 4 đẹp khác của Nhà Đẹp dưới đây:
- Nhà cấp 4 vuông vắn 3 phòng ngủ 11x10m ở Hoài Đức
- Bản vẽ mẫu nhà cấp 4 3 phòng ngủ 7x12m
- Mẫu thiết kế nhà cấp 4 8x10m 2 phòng ngủ
- https://thietkethicongnhadep.net/mau-nha-pho/nha-pho-2-tang/