Thiết kế nhà mặt phố 60m2 ở Mỹ Đức, Hà Nội
THÔNG TIN DỰ ÁN:
- Chủ đầu tư: Anh Tiến
- Diện tích: 60m2
- Số tầng: 4
- Vị trí: Mỹ Đức, Hà Nội
Hình ảnh kiến trúc nhà mặt phố 60m2
Điểm nhấn trong kiến trúc của ngôi nhà là mặt tiền được sử dụng hệ lam kính phong phú. Khung cửa được bố trí cây xanh mang đến vẻ đẹp hài hòa, hợp lý. Bên cạnh đó, nó giúp không gian tận dụng tối đa ánh sáng tự nhiên. Giúp không gian ngôi nhà được mở rộng, thông thoáng và mang đến không gian sống thoải mái. Với kết cấu nhà ống, thiết kế mái bằng vừa mang đến vẻ đẹp đặc trưng của nhà lô vừa phù hợp với điều kiện sinh hoạt.

Màu sắc ngoại thất phối hợp hài hòa mang đến tính thẩm mỹ cao cho khách hàng. Dù sử dụng nhiều màu sắc nhưng đều là những gam màu trung tính tạo nên sự đồng nhất riêng. Bên cạnh đó, màu sắc sặc sỡ chỉ tạo điểm nhấn ở cột dọc và cột ngang nên không gây rối mắt. Ngoài ra, các chi tiết được bố trí tinh tế giúp tô điểm cho không gian sống ấn tượng.

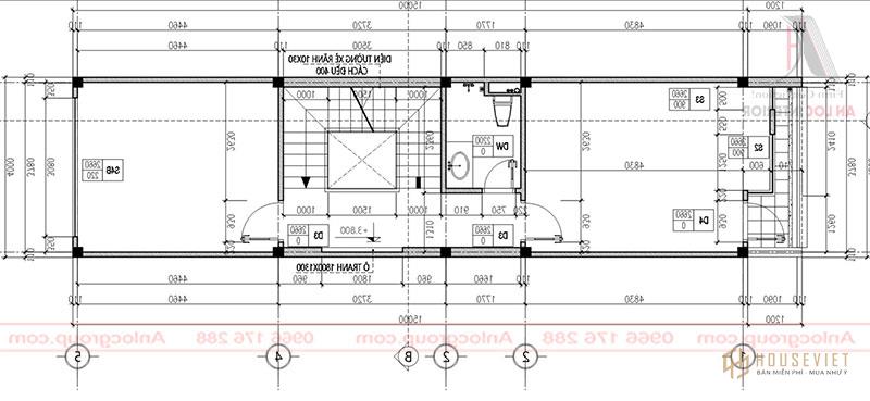
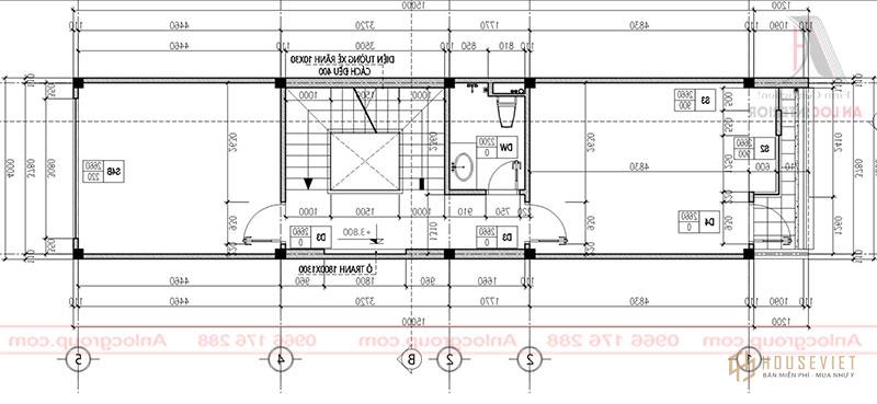
Mặt bằng nhà phố 60m2
Với diện tích 60m2, việc phân chia không gian 3 tầng diện tích hài hòa và hợp lý nhất. Tránh trường hợp phân chia không đều dẫn đến quá rộng hoặc quá hẹp. Bố cục tập trung vào khu 3 tầng và hoàn toàn tách biệt với khu vực xung quanh. Các thông số kỹ thuật chú thích cụ thể trong mỗi kế hoạch giúp hoàn thiện bố cục chặt chẽ. Ngoài ra, cần đảm bảo sự hài hòa, tối giản của nội thất trên bề mặt bản vẽ.

Không gian tầng 1 được phân chia cụ thể với nội thất và vật dụng trang trí. Ngoài ra, khoảng cách giữa các ô trống cần đảm bảo yếu tố chính xác và chi tiết. Điều này quyết định đến việc lựa chọn nội thất và sắp xếp không gian. Vì nhà phố được thiết kế theo tiêu chí đơn giản, hòa nhập không gian nên cần đảm bảo tuyệt đối những yếu tố này. Cần tuân thủ nghiêm ngặt các thông số kỹ thuật trong bản vẽ khi xây dựng. Điều này giúp gia chủ hoàn thiện không gian và phân chia không gian phù hợp với diện tích.

Không gian nhà mặt phố 60m2 được xây dựng với kết cấu hài hòa, hòa nhập giữa các không gian. House Viet mang đến cho bạn những hình ảnh cụ thể và chi tiết nhất về không gian. Ngoài ra, chúng tôi sẵn sàng hỗ trợ tư vấn thiết kế, thi công các mẫu nhà với phong cách như ý. Với đội ngũ kiến trúc sư giàu kinh nghiệm, am hiểu phong thủy, chúng tôi mang đến cho bạn dịch vụ tốt nhất. Nhanh tay liên hệ qua Hotline 1800 6015 để được hỗ trợ.
Tham khảo:
- Những mẫu nhà cấp 4 đẹp 5 × 20 có 2-3 phòng ngủ
- 79 Mẫu nhà cấp 4 mái thái đẹp giá từ 100 - 300 triệu
House Viet - Vững vàng niềm tin