Thiết kế nhà ống 1 tầng 60m2 Tư vấn full nội thất
Mẫu thiết kế nhà ống 1 tầng 60m2 là một thách thức đối với nhiều gia đình nhiều người. Quỹ đất ít ỏi, kinh phí hạn hẹp khiến anh chị khó có thể có được một không gian sống đẹp. Vì vậy, họ phải nhờ đến kiến trúc sư để tối ưu hóa diện tích sinh hoạt. Sau đây Nội Thất Đương Đại xin giới thiệu căn hộ cấp 4 diện tích 60m2. Căn hộ này của gia đình anh Linh đã được kiến trúc sư tư vấn thành công.
Yêu cầu đối với thiết kế nhà ống 1 tầng 60m2
Tinh thần anh hùng: “Xin chào các kiến trúc sư, tôi tên Linh, tôi có mảnh đất diện tích khoảng 60m2, mặt tiền 7m. Tôi muốn xây nhà ống cho gia đình 4 người. Hiện tại tôi có 2 con gái nhỏ nên chỉ cần 2 phòng ngủ. Căn nhà sẽ bao gồm phòng khách, bếp, 2 phòng ngủ và WC. Nếu được, trước nhà tôi muốn có sân để xe máy và phơi quần áo. Hiện kinh phí để xây nhà mà tôi có được chỉ khoảng 300 triệu. Vì vậy tôi rất mong các KTS tư vấn giúp tôi cách bố trí mặt bằng công năng và nội thất. Số điện thoại của tôi là 01239xxxxxmong các KTS tư vấn giúp tôi. "
Kiến trúc sư tư vấn thiết kế nhà ống 1 tầng 60m2
Hiện nay, rất nhiều gia đình trẻ muốn xây nhà với chi phí thấp. Vì vậy, điều đó để có được thiết kế nhà ống đẹp, họ tìm đến các kiến trúc sư. Gia đình chị Linh đã thành công khi được kiến trúc sư tư vấn mẫu nhà 1 tầng mái Thái với chi phí dưới 300 triệu. Căn hộ được xây dựng theo phong cách hiện đại, thoáng mát, tiện nghi.

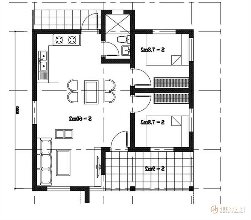
Với diện tích 60m2, kiến trúc sư dành 9m2 cho sân trước. Đây là không gian để anh Linh để xe máy và trồng cây cảnh xanh làm tiểu cảnh. Sân sau có diện tích 5m2 để gia đình phơi đồ. Phòng khách của gia đình anh nằm ngay sau cửa, thông với phòng ăn. Diện tích dành cho không gian sinh hoạt chung là 35m2, các phòng sẽ thông nhau giúp không gian thông thoáng hơn.
Gia đình anh Linh có 4 người gồm vợ và 2 con gái nhỏ. Vì thế DT: 60m2. thiết kế nhà ống một tầng Sẽ có 2 phòng ngủ. Theo kiến trúc sư, diện tích 2 phòng ngủ sẽ khoảng 7,8m2, tuy nhỏ nhưng rất tiện nghi. Các gia đình sẽ sử dụng chung toilet để tiết kiệm diện tích.
Phối cảnh nội thất của mẫu thiết kế nhà 60m2. Nhà ống 1 tầng
Phối cảnh phòng khách và bếp
Phòng khách của gia đình chị Linh tuy nhỏ nhưng rất thoáng mát. Kiến trúc sư đã bố trí nội thất rất tinh tế và thẩm mỹ. Bộ sofa chữ L nhỏ nhắn được anh lựa chọn để gia đình tiếp khách, quây quần bên nhau. Đối diện sofa là kệ tivi treo tường nên không tốn diện tích. Đặc biệt, cửa chính của phòng được làm bằng kính 3 lá có tầm nhìn rất tốt. Vì vậy, phòng khách luôn thông thoáng và tràn ngập ánh sáng.

Phòng bếp của căn hộ nhỏ siêu tiện nghi. Với nhu cầu sử dụng của 4 người, tủ bếp được thiết kế nhỏ nhưng rất tiện dụng. Vì vậy, diện tích dành cho phòng bếp không quá nhiều. Ngay trước phòng bếp là bàn ăn ấm cúng và gần gũi dành cho 6 người. Nội thất của DT: 60m2. thiết kế nhà ống một tầng Tất cả đều được làm bằng chất liệu gỗ Sồi rất tinh tế và sang trọng.

Phối cảnh phòng ngủ
Vì diện tích phòng ngủ chỉ khoảng 7.8m2 nên anh Linh không yêu cầu một phòng ngủ Master sang trọng. Thay vào đó, phòng ngủ phải thực sự thoải mái, dễ chịu và đầy thư thái. Phòng ngủ của hai vợ chồng nhỏ xinh với đầy đủ giường ngủ, tủ đựng quần áo và bàn trang điểm. Tất cả nội thất đều được kiến trúc sư bố trí phù hợp với phong thủy, thẩm mỹ và tiện dụng. Phòng ngủ được phối màu tinh tế giữa trắng và nâu gỗ tạo sự thoải mái và yên tâm khi nghỉ ngơi.

Phòng ngủ của em bé DT: 60m2. thiết kế nhà ống một tầng rất đáng yêu. Để có không gian riêng tư cho 2 con, kiến trúc sư đã lựa chọn giường tầng thông minh kết hợp giá sách. Giường tầng cho 2 bé sẽ bao gồm một giá sách ở đầu giường và một tủ quần áo dưới chân cầu thang. Vì vậy không gian căn phòng được nới rộng ra rất nhiều. Điều này giúp trẻ có không gian vui chơi trong phòng và góc học tập rộng rãi. Trên tường được vẽ những hình vẽ ngộ nghĩnh với nhiều màu sắc tươi tắn mà các bé yêu thích.

10 mẫu thiết kế nhà ống 1 tầng diện tích 60m2 ấn tượng nhất hiện nay
Sau đây, Nội Thất Đương Đại sẽ giới thiệu đến các bạn 10 mẫu thiết kế nhà 6x10m và 60m2 1 tầng siêu sang trọng. Đây đều là những mẫu nhà đang gây được ấn tượng với nhiều gia chủ và được họ lựa chọn cho căn hộ của mình.










Này DT: 60m2. thiết kế nhà ống một tầng Trên đây là gợi ý tuyệt vời cho căn hộ của bạn. Nếu bạn chưa tìm được mẫu nhà phù hợp, hãy liên hệ ngay với Nội Thất Đương Đại. Các kiến trúc sư của chúng tôi sẽ giúp bạn có được thiết kế ưng ý nhất.