Thiết kế nhà phố 5 tầng diện tích 8x18m tại Hà Nội NDNP5T5
Nếu sở hữu một mảnh đất rộng và có vị trí địa lý đẹp, bạn sẽ làm gì? Có giống nhà Hải ở Gia Lâm không? Anh quyết định thiết kế nhà phố 5 tầng vừa để ở vừa kết hợp kinh doanh nhà hàng. Lựa chọn giải pháp kinh doanh nhà hàng hay văn phòng là vấn đề khiến nhiều người băn khoăn. Trong bài viết này mình sẽ phân tích cho các bạn ưu nhược điểm của từng hình thức để các bạn chơi thử. Và từ những phân tích của chúng tôi về mẫu nhà phố 5 tầng này, bạn hãy thử nghiên cứu xem mình phù hợp với loại hình kinh doanh nào nhé.
Xây nhà kết hợp nhà hàng hết bao nhiêu tiền?
Xây nhà này cần bao nhiêu tiền, đây là câu hỏi được rất nhiều người quan tâm để chuẩn bị cho công trình của mình. Căn nhà phố đẹp này được xây dựng tại Gia Lâm Hà Nội và đơn giá xây dựng dự kiến là 6 triệu / 1m2. Mời các bạn xem qua giá xây dựng của ngôi nhà này.
- Chủ đầu tư: Anh Hải - Chị Tâm
- Địa điểm xây dựng: Gia Lâm - Hà Nội
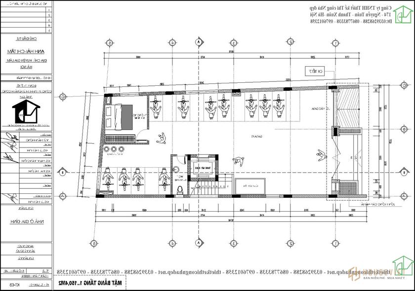
- Diện tích xây dựng tầng 1: 150,4m2
- Diện tích xây dựng tầng 2: 150,4m2
- Diện tích xây dựng tầng 3: 150,4m2
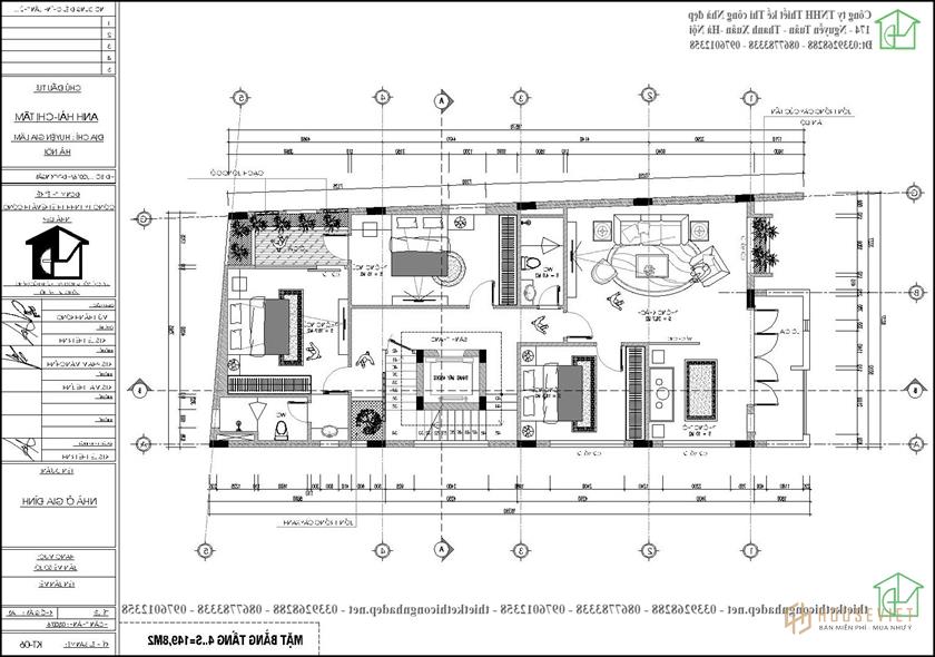
- Diện tích xây dựng tầng 4: 150,4m2
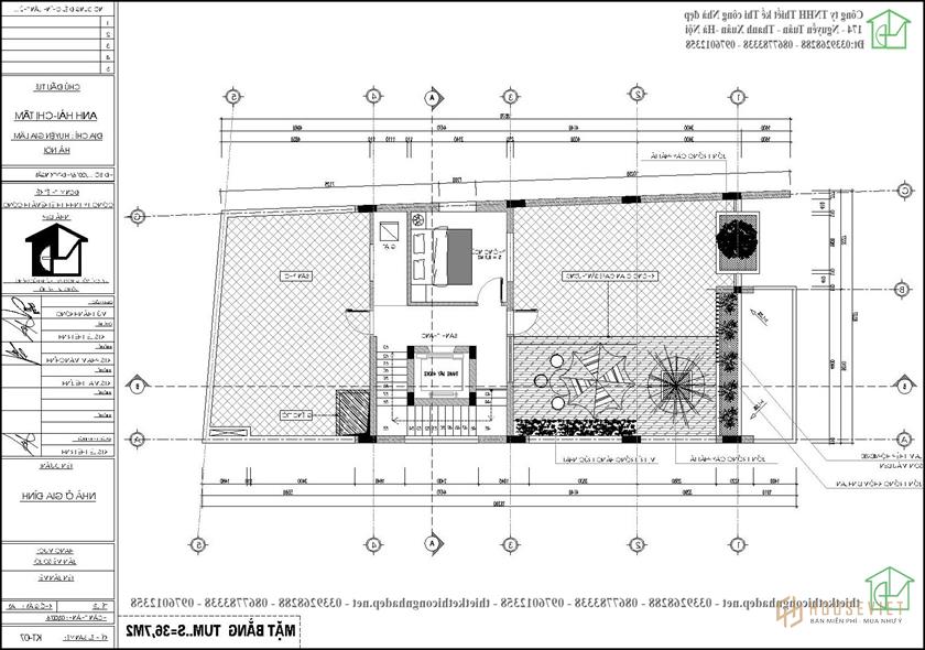
- DTXD tầng 5: 36,7m2
- Tổng diện tích xây dựng: 150,4 + 150,4 + 150,4 + 150,4 + 36,7 = 638,3m2
- Tổng giá trị xây dựng dự kiến: 638,3 × 6.000.000 = 3.829.800.000 đồng
Như vậy, để xây dựng hoàn thiện một căn nhà không nội thất phải mất gần 4 tỷ xây dựng, nếu đầu tư nhà hàng thì bạn cũng phải thêm một khoản đầu tư nội thất tương đối. Ước tính đơn giản cũng là 1,5 triệu / 1m2 tương đương 1 tỷ khác.
Thiết kế nhà phố 5 tầng diện tích 8x18m tại Hà Nội

Đây là mặt tiền chính của mẫu thiết kế nhà phố này. Với thiết kế hiện đại, đơn giản không quá cầu kỳ. Nếu bạn làm để ở thì chúng ta sẽ cần một mặt tiền đẹp, nhưng nếu bạn kinh doanh nhà hàng thì những bảng hiệu, biển hiệu sẽ che đi phần mặt tiền còn lại.

Tuy nhiên nếu không kinh doanh thì chúng ta vẫn cần một mặt tiền đẹp phải không nào?

Mặt bằng bố trí nội thất của mẫu thiết kế nhà phố 5 tầng

Đây là phần chức năng của tầng 1 hoặc tầng bán hầm. Bạn có thể xem tại đây thiết kế 1 phòng ngủ để bảo vệ hoặc người giúp việc sau này ở và trông coi. 1 thang bộ và 1 thang máy đi lên các tầng rất thuận tiện. Tầng 1 thiết kế chủ yếu để xe cho khách và ô tô gia đình, sau này kinh doanh làm văn phòng cũng rất thích hợp.

Tầng 2 được bố trí hoàn toàn với bộ bàn ghế ăn 4 ghế, bộ bàn ghế ăn 6 ghế. khu tiếp khách, 1 khu bếp nấu ăn.

Tầng 2 được thiết kế hoàn toàn với các không gian riêng tư, các phòng riêng lớn nhỏ. Phòng đơn có thể ngồi 6 người, phòng riêng lớn hơn có thể ngồi 12 người. Với diện tích 150m2, chúng tôi đã bố trí gồm 3 phòng riêng cho 6 người và 2 phòng riêng cho 12 người.

Tầng 4 được thiết kế là không gian sinh hoạt riêng của gia đình gồm 1 phòng khách, 4 phòng ngủ và 2 vệ sinh. trong đó có 1 vệ sinh chung cho cả tầng và 1 vệ sinh cho phòng ngủ chính.

Tầng 5 được bố trí 1 phòng ngủ và 1 sân chơi cafe, sân phơi phía sau nhà và phòng giặt.
Nhìn chung, với một không gian rộng, diện tích rộng thì những người thiết kế kinh doanh chúng ta cảm thấy rất đơn giản, rất dễ dàng đúng không? Tuy nhiên, nếu diện tích mặt tiền nhỏ thì khi chúng tôi thiết kế sẽ khó khăn hơn. Và đây chỉ là mẫu tham khảo, một trong những công trình mà chúng tôi đã thiết kế. Nếu các bạn có nhu cầu thiết kế các mẫu nhà ở kết hợp kinh doanh có thể liên hệ với Nhà Đẹp để được tư vấn kỹ hơn.
Thiết kế nội thất phòng khách và phòng thờ mẫu thiết kế nhà phố 5 tầng
Đây là mẫu thiết kế phòng khách và phòng thờ của ngôi nhà này chúng tôi xin chia sẻ đến các bạn thông tin để các bạn cùng tham khảo. Phòng thờ được làm bằng gỗ tự nhiên kết hợp gỗ công nghiệp. Phần bàn thờ được làm bằng gỗ tự nhiên, còn phần tường chắn sẽ được thiết kế là vách CNC với chất liệu gỗ công nghiệp.



Thiết kế nội thất các phòng ngủ trong mẫu thiết kế nhà phố 5 tầng
Toàn bộ thiết kế nội thất của mẫu bàn ghế này được sử dụng chất liệu gỗ công nghiệp MDF lõi xanh chống ẩm. Tổng giá trị thi công phần nội thất này là gần 200 triệu và nếu bạn quan tâm có thể liên hệ với Nhà Đẹp để xem báo giá thi công.
Nội thất phòng ngủ số 1 nhà phố 5 tầng
Đầu tiên là phần phòng ngủ 1, tông màu chủ đạo là tone màu gỗ kết hợp với cánh tủ màu trắng, cánh tủ màu trắng này có thể làm bằng Melamine hoặc Acrylic.



Nội thất phòng ngủ số 2 trong nhà phố 5 tầng
Phòng ngủ 2 có tông màu chủ đạo lạnh hơn một chút do các mảng sơn và mảng tường được sơn màu tối, phần còn lại của màu chủ đạo trong thiết kế vẫn được giữ nguyên.



Nội thất phòng ngủ số 3 trong nhà phố 5 tầng




Trên đây là toàn bộ phần giới thiệu từ thiết kế ngoại thất, thiết kế nội thất của công trình này. Nếu bạn thấy nó đẹp và phù hợp, bạn cũng có thể sử dụng nó. Nếu bạn cần chúng tôi hỗ trợ thiết kế và thi công nội ngoại thất, bạn có thể liên hệ với Nhà Đẹp để được tư vấn kỹ hơn.
- Thiết kế nội thất nhà phố, thiết kế nội thất nhà phố 5 tầng 4x6m NDNP5T4
- Nhà phố 5 tầng tân cổ điển đẹp nổi bật tại Từ Liêm Hà Nội NDNP5T3
- Thiết kế nhà trên đất méo, thiết kế nhà phố 5 tầng hiện đại NDNP5T2
- Mẫu thiết kế nhà phố 5 tầng 4x15m tại Hà Nội NDNP5T6