Thiết kế nội thất nhà phố 4 tầng 30m2 tại Văn Miếu NDNP4T23
Thiết kế nội thất nhà phố 30m2 là công việc rất quan trọng để có được một phương án tốt nhất phải qua rất nhiều bước phức tạp, khó khăn với mục đích là tạo lập lên một không gian sống hoàn thiện, chỉn chu cho gia đình chủ đầu tư. nhà phố có những đặc thù riêng, diện tích khá nhỏ đòi hỏi kiến trúc sư cần nghiên cứu kỹ lưỡng để tổng hòa các yếu tố tốt nhất, đem lại không gian sống đẹp và tiện nghi nhất.
Trên diện tích chỉ vẻn vẹn có 30m2 thì việc bố trí phòng và các đồ đạc nội thất trong nhà sao cho gợi lên vẻ đẹp riêng biệt về một không gian sống mới mẻ, ấn tượng – đây chính là mục tiêu mà công ty nhà đẹp chúng tôi muốn hướng tới cho gia đình chủ đầu tư. Để hiểu thêm về mẫu thiết kế nội thất nhà phố này mời quý vị và các bạn theo dõi bài viết chi tiết dưới đây nhé!
Thông tin mẫu thiết kế nội thất nhà phố 30m2
- Địa điểm xây dựng: Văn Miếu Quốc Tử Giám – Hà Nội
- Chủ đầu tư: Chú Quang
- Diện tích nhà: 30m2
- Số tầng: 4 tầng
- Kích thước nhà: 4x8m
- Tổng diện tích: 130m2
- Tổng giá trị hoàn thiện dự kiến: 260-350 triệu
- Vật liệu hoàn thiện: Gỗ MDF chống ẩm, sơn bệt, sơn công nghiệp
Mặt bằng bố trí, thiết kế nội thất nhà phố 30m2 đẹp
Tầng 1 trong mẫu thiết kế nội thất nhà phố 30m2 gồm có không gian phòng khách liên thông với phòng ăn và phòng bếp được bố trí đầy đủ đồ đạc nội thất gồm có bàn ghế sofa, bàn ăn, tủ bếp, quầy bar, kệ tủ trang trí, đèn chiếu sáng và các món đồ nội thất nhà bếp khác.
Tầng 2 thì được bố trí chủ yếu là phòng khách lớn tích hợp thêm không gian đọc sách gồm có các món đồ nội thất cơ bản như: bàn ghế sofa cỡ lớn, tủ sách, kệ tủ, tivi, hệ thống đèn, tranh ảnh trang trí…

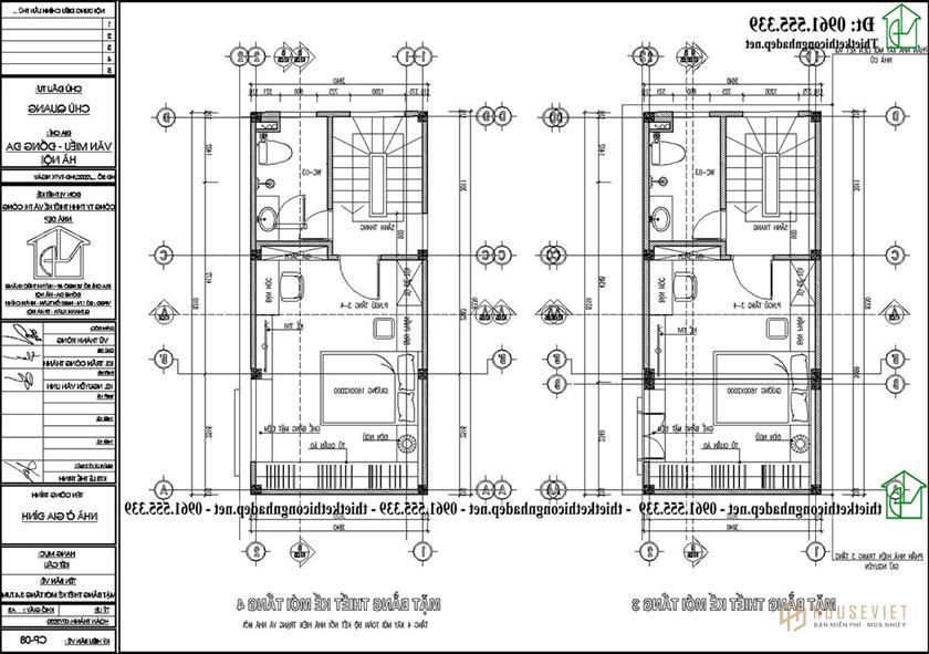
Mặt bằng bố trí nội thất tầng 3 và 4 khá giống nhau đều gồm có phòng ngủ và phòng vệ sinh. Phòng ngủ thì được bố trí khéo léo ngăn nắp, khoa học, đồ nội thất đầy đủ tiện nghi gồm có giường, tủ quần áo, bàn học, bàn trang điểm, tivi, kệ tủ, ghế, giá sách, ghế ngồi….
Thiết kế nội thất tầng 1 nhà phố 4 tầng 30m2
Với kiến trúc hiện đại, không gian nội thất phòng khách của nhà phố 4 tầng được thiết kế độc đáo. Phòng ăn và nhà bếp được đặt chung trong phòng khách, tạo nên sự ấm cúng, gắn bó và kết nối giữa mọi người trong gia đình.

Do diện tích phòng khách khá nhỏ nên việc bài trí nội thất được tiết chế hết sức có thể gồm có những món đồ nội thất như bàn ghế sofa, kệ tủ, tranh ảnh trang trí, đèn âm trần… đây là những món đồ nội thất nhỏ nhắn xinh xắn vừa đủ dùng và không gây trật trội, bí bách.

Tâm điểm của phòng khách nhỏ trong tầng 1 chính là bộ ghế sofa màu trắng kèm bàn trà sang trọng, ấn tượng với tông màu nâu gỗ. Gạch lát sàn sử dụng là loại gạch men màu đen vân trắng sáng bóng vô cùng hút mắt. Chiếc thảm trải sàn màu xám lông chuột êm ái được chải gọn gàng trong phòng khách có tác dụng như là để trang trí, tạo điểm nhấn ấn tượng cho không gian phòng khách trở nên thu hút và hoành tráng hơn. Điểm nhấn của phòng khách đến từ tấm gương lớn đặt ở trên tường và cùng bộ đèn trần sáng lộng lẫy.

Phòng khách, phòng ăn và phòng bếp được bố trí thông nhau và được phân cách bởi một quầy bar nhỏ. Phòng ăn nổi bật với bộ bàn ăn hình chữ nhật có cạnh vát mềm mại. Chân bàn bằng gỗ phối cùng bộ ghế có lưng tựa kiểu dáng đơn giản, mềm mại và êm ái. Cách bố trí, trang bị nội thất phòng ăn nhỏ nhắn nhưng cực kỳ sang trọng, mới lạ đã giúp cho các bữa ăn thêm lạ mắt, lung linh và lãng mạn.
Vị trí bàn ăn được đặt gần phòng khách, rất tiện cho việc đi lại, ăn uống. Phòng ăn được sắp xếp với những khoảng cách tỉ lệ chuẩn xác tạo ra một lối đi thông thoáng, rộng rãi. Bên cạnh đó kiến trúc sư còn tiết chế màu sắc để phòng ăn không bị rối rắm, lạc lối giúp căn phòng trở nên đồng nhất với không gian phòng khách và sang trọng, đẳng cấp hơn.
Ánh đèn từ hệ thống đèn thả trang trí cộng với ánh sáng tự nhiên kết hợp hài hòa đã góp phần mang đến một không gian tầng 1 của mẫu nhà phố 30m2 hoàn hảo, tuyệt vời và hấp dẫn nhất.

Không gian phòng bếp trắng tinh khôi bao trùm toàn bộ được điểm tô bởi những màu sắc sinh động khác như màu nâu, màu vàng, màu đen đến từ những vật dụng nhỏ xinh như hệ tủ, bàn bếp bằng đá, ánh sáng đèn điện… tất cả đều kết nối hài hòa với giúp cho gian bếp trở nên tràn đầy sức sống và tươi vui hơn. Đồ nội thất trong phòng bếp cũng được trang bị, lựa chọn đầy đủ các món đồ nội thất tỉ mỉ như tủ lạnh, lò nướng,…

Phòng bếp có toàn bộ phần tủ làm từ gỗ công nghiệp tông màu trắng và nâu, cửa sổ thoáng đặt ở sát bếp nấu. Đây là một cách bố trí vô cùng hợp lý, về tổng thể, phòng bếp gọn gàng và xinh xắn, đầy đủ tiện nghi cần thiết hỗ trợ cho việc nấu nướng. Sàn bếp được lát gạch sáng bóng thay vì sử dụng sàn gỗ nhằm mục đích tạo sự khác biệt và tiện lợi khi vệ sinh.

Thiết kế nội thất tầng 2 nhà phố 4 tầng 30m2
Trong thiết kế nội thất, phòng khách là một trong những không gian được chú ý đầu tiên. Phòng khách nếu được thiết kế nội thất đơn giản sẽ tạo cảm giác nhẹ nhàng, dễ chịu. Bên cạnh đó còn giảm bớt sự ngột ngạt của việc sống giữa đô thị đông đúc và ồn ào. Tại mẫu thiết kế nội thất nhà phố 30m2 đã sử dụng gam màu chủ đạo là trắng, điểm xuyết thêm màu nâu của hệ thống tủ, bàn, kệ tivi trang trí để tạo nên vẻ đẹp trẻ trung, hiện đại.

Từ cửa chính đi vào, ấn tượng đầu tiên là không gian phòng khách. Tại đây, nổi bật là bộ bàn ghế sofa nỉ màu xám ở bên trên thảm lông trải sàn vô cùng ấn tượng. Được thiết kế bên cạnh phòng khách là một hệ thống tủ kệ âm tường lớn để bố trí sách và các món đồ trang trí lưu niệm. Nó vừa mang lại tính thẩm mỹ cho căn phòng, vừa tiết kiệm được diện tích và đem đến vẻ đẹp hiện đại, cao cấp, sang trọng. Ngoài ra, nội thất phòng khách cũng đã được kiến trúc sư thiết kế rộng rãi với tông màu hài hòa mang lại cảm giác dễ chịu cho người ghé thăm. Một điểm đặc biệt ở không gian nội thất phòng khách này chính là bộ đèn âm trần dày đặc phát ra ánh sáng lung linh, độc đáo và rất ấn tượng.

Các đồ nội thất phòng khách bao gồm: Bộ ghế sofa nỉ, bộ bàn trà sang trọng, kệ tivi, giấy dán tường, đèn chùm, trần thạch cao, tủ sách, tivi. Kệ tivi, tủ sách, tủ trang trí được làm bằng gỗ công nghiệp cũng là một sự lựa chọn hợp lý, đồng bộ cho không gian của tổng thể căn phòng nhà, với những chiếc kệ gỗ, tủ gỗ được các kiến trúc sư phác thảo tỉ mỉ tạo nên một cách tinh xảo, mang đến nhiều sự lựa chọn tinh tế và hiện đại nhất. Tivi được gắn trực tiếp lên tường, trông nổi bật trên nền sơn trắng. Kệ sách âm tường được bố trí ở hai bên tivi, trông gọn gàng mà lại tiết kiệm được khá nhiều diện tích.

Một thiết kế hiện đại không thể bỏ qua sự góp mặt của yếu tố thiên nhiên. Hiểu được xu hướng đó, kiến trúc sư đã tạo thêm ô cửa sổ lớn có vách kính xuyên thấu giúp ngôi nhà luôn tràn ngập ánh sáng mặt trời tự nhiên và đưa con người đến gần hơn với thiên nhiên. Phòng khách tận dụng triệt để được ánh sáng tự nhiên nhờ khung cửa lớn.
Không gian phòng khách khá đầy đủ, được bố trí thêm một góc nhỏ dành riêng cho các thành viên trong gia đình nghỉ ngơi thư giãn và đọc những cuốn sách hay bổ ích. Vậy nên, nội thất được sắp xếp tuy khá tối giản nhưng vẫn đảm bảo sự tiện nghi, cảm giác thoải mái.
Thiết kế nội thất tầng 3 nhà phố 4 tầng
Ở tầng 3 được thiết kế với một phòng ngủ mang phong cách hiện đại kết hợp hài hòa giữa màu trắng tinh khôi của trần, tường với gam màu nâu của gỗ làm tăng thêm vẻ sang trọng và đẳng cấp cho mẫu thiết kế nội thất nhà phố 30m2. Những chi tiết phào, chỉ hoa văn được lược bỏ, giảm thiểu đi nhiều nhưng vẫn đem lại cảm giác hài hòa, cân đối về mặt không gian.

Sự đẳng cấp của phòng ngủ thể hiện ngay trong việc phối hợp gam màu giữa trần, tường và các sản phẩm nội thất biệt thự. Một sự thông minh trong cách phối màu tạo sự sang trọng và đẳng cấp chính là sử dụng ít màu nhưng phối kết hợp hài hòa. Gam màu trắng chủ đạo được đẩy lên ôm trọn khoảng không gian từ tường, trần cho đến của tủ quần áo, giường. Tuy nhiên, sự sang trọng này còn được sự nâng lên bởi các mảng màu trầm ấm đem tới sự nhẹ nhàng, thanh thoát tạo cảm giác thư thái cho căn phòng.

Không gian phòng ngủ gồm có các đồ nội thất cơ bản như giường, kệ tivi, bàn trang điểm, bàn làm việc, tivi treo tường… Tất cả đều được gọt giũa, chăm chút đến từng chi tiết nhỏ nhất để đem lại sự hoàn hảo nhất. Từ chiếc giường ngủ cho tới những chiếc ghế ngồi được bày trí đệm mút êm ái cũng đem lại một phong cách sống tiện nghi, đầy đủ.

Tủ đồ cũng được bài trí tỉ mỉ, do diện tích phòng ngủ khá rộng nên tủ được thiết kế từng ngăn với nhiều kích cỡ và độ rộng khác nhau để đem đến sự thuận tiện trong sử dụng, phù hợp với từng loại trang phục cũng là để gia chủ dễ dàng lựa chọn mỗi lần sử dụng.

Bên cạnh giường ngủ là một không gian nhỏ xinh dùng để đặt một chiếc bàn trang điểm cùng với một chiếc ghế êm ái nhỏ nhắn. Kiến trúc sư cũng đã khéo léo trang trí xung quanh không gian phòng ngủ bằng những vật dụng độc đáo như những món đồ lưu niệm, tranh ảnh, đèn trang trí… có tác dụng giúp điểm tô nên một không gian thanh cao, quyền uy, đẳng cấp hơn bao giờ hết.

Phòng ngủ được sử dụng thảm trải sàn bằng lông êm ái sẫm màu tạo nên điểm nhấn đắt giá cho căn phòng đồng thời mang đến không gian sang trọng, đẳng cấp hơn.
Thiết kế nội thất tầng 4 phong cách hiện đại
Tại tầng 4 này cũng được bố trí 1 phòng ngủ độc đáo với chiếc giường vuông vức tạo sự khỏe khoắn, chắc chắn và được thiết kế với những chi tiết đường chỉ nổi bật tạo sự mềm mại mà không thô cứng, góc cạnh.

Phòng ngủ này cũng hướng tới vẻ đẹp hiện đại, đến từ việc lựa chọn các chi tiết nội thất đơn giản, không rườm rà hay cầu kỳ về kiểu dáng và màu sắc và gồm có giường ngủ, ghế, bàn học và rèm cửa rất nhã nhặn. Tủ quần áo được thiết kế đặt âm tường ở cạnh giường ngủ. Thảm họa tiết đen – trắng, bộ đèn ngủ độc đáo chính là những chi tiết trang trí tạo nên vẻ đẹp tròn vẹn cho phòng ngủ. Những đồ nội thất này được sắp đặt rất hợp lý đảm bảo một không gian mẫu thiết kế nội thất nhà phố 30m2 không bị chật chội.

Dãy bàn học bằng gỗ công nghiệp chạy dọc theo hướng những ô cửa sổ là một thiết kế tinh tế vừa giúp không gian căn phòng sáng sủa, rộng rãi hơn, vừa giúp cho các thành viên có đủ ánh sáng tự nhiên để học bài và tốt cho đôi mắt. Rèm cửa có thiết kế đơn giản vừa giúp điều phối ánh sáng tự nhiên, vừa làm vật dụng trang trí làm mềm mại cho cả khoảng không gian.

Phía bên cạnh sát cửa sổ có bố trí bộ ghế độc đáo để các thành viên có thể ngồi nghỉ ngơi, đọc sách hay đơn giản như ngắm nghía cảnh vật phố phường xung quanh, thư giãn cơ thể sau một ngày làm việc, học tập mệt mỏi trước khi chìm vào giấc ngủ.

Trên đây, quý vị cùng các bạn đã cùng công ty nhà đẹp chiêm ngưỡng toàn bộ không gian nội thất của mẫu thiết kế nội thất nhà phố 30m2 đẹp. Hy vọng, quý vị và các bạn sẽ tìm thấy ý tưởng mới, độc đáo cho không gian nội – ngoại thất về ngôi nhà tương lai của gia đình mình.
- nhà phố 4 tầng tân cổ điển 4x13m tại thủ đô Hà Nội NDNP4T22
- Thiết kế mẫu nhà phố 4 tầng tân cổ điển 5x12m NDNP4T21
- Mẫu nhà phố 4 tầng 4x15m hiện đại tại Hải Dương NDNP4T24