Thiết kế và thi công nhà phố hiện đại cho gia đình chị Bích ở Gò Vấp
Thiết kế xây dựng nhà phố nhỏ đòi hỏi kiến trúc sư phải sáng tạo và tính toán kỹ lưỡng để đảm bảo không gian sống tiện nghi và thể hiện được tính thẩm mỹ. Sự thi công thiết kế nhà phố Gia đình chị Bích cũng là một điển hình.
Với diện tích 4x10m2, các kiến trúc sư của chúng tôi đã đưa ra phương án thiết kế hợp lý, giúp gia chủ có một không gian sống thoải mái và rộng rãi. Đồng thời, thiết kế cũng có thể thể hiện rõ gu thẩm mỹ và cá tính của gia chủ. Hãy cùng Gia Bảo Group tham quan công trình thiết kế và thi công nhà phố này ngay bây giờ.
Ý tưởng thiết kế thi công nhà phố 3 tầng
Trước khi đến với kiến trúc sư của chúng tôi, gia đình chị Bích rất phân vân không biết nên lựa chọn phương án thiết kế kiến trúc nào cho phù hợp với diện tích đất nhỏ. Sau nhiều ngày tìm kiếm trên mạng nhưng không có kết quả như ý, chị Bích đã liên hệ với chúng tôi để được tư vấn và đưa ra giải pháp hợp lý nhất.

Nhận dự án thiết kế xây dựng nhà phố Gia đình chị Bích, kiến trúc sư đã đưa ra một mẫu thiết kế gồm 3 tầng, theo phong cách hiện đại. Với diện tích nhỏ, kiến trúc sư sẽ sử dụng cách trang trí để tạo cảm giác rộng hơn, thông qua các đường nét hình khối.
Khi đọc bản thiết kế, chị Bích đã gật đầu đồng ý với phương án chúng tôi đề ra. Và công việc xây dựng bắt đầu.
Toàn cảnh thiết kế và xây dựng nhà phố 3 tầng hiện đại
Kết cấu ngôi nhà đơn giản, hiện đại nên kiến trúc sư sử dụng những chi tiết trang trí để làm nổi bật mặt tiền ngôi nhà. Nhờ vậy mà nhìn vào ngôi nhà bạn sẽ có cảm giác rộng rãi và có chiều sâu so với diện tích thực tế. Ngôi nhà có 3 tầng, ngoại thất mỗi tầng có một chút khác biệt về trang trí để tạo sự sinh động.
Đặc biệt, kiến trúc sư sử dụng nhiều cây xanh để trang trí khiến không gian ngôi nhà tràn đầy sức sống

Xem thêm:
- Mẫu nhà phố mái ngói đẹp, sang trọng và ấn tượng nhất năm 2020
- Nhà phố tân cổ điển 4 tầng đẹp của gia đình anh Thịnh, Gò Vấp
- Thiết kế nội thất nhà phố hiện đại, sang trọng | Cam kết hài lòng cao nhất
Kiến trúc hiện đại, đơn giản
Với diện tích 4x10m2, kiến trúc sư đã chọn lối thiết kế đơn giản để tránh cảm giác chật chội. Ngôi nhà được chia thành 3 tầng, mỗi tầng theo một thiết kế khác nhau.
Tầng 1 ấn tượng với cách trang trí cổng độc đáo, màu sắc ấm áp và rực rỡ. Tường được lát gạch trang nhã và sạch sẽ. Mái hiên tầng 1 kéo dài từ cửa ra cổng giúp che mưa nắng tốt hơn.
Lên đến tầng 2, kiến trúc sư sử dụng những hình khối nhỏ để tạo điểm nhấn cho mặt tiền. Mảng tường bên trái thiết kế hình chữ C cách điệu, nhô ra ngoài tạo điểm nhấn. Nhờ đó, mặt tiền có cảm giác rộng và thoáng hơn.
Tầng 3 tòa nhà thiết kế xây dựng nhà phố nổi bật với hệ lam gỗ được gia chủ trồng cây, trồng hoa tạo không gian xanh mát cho mặt tiền. Hệ lam gỗ còn giúp đón gió, tránh nắng tốt hơn cho ngôi nhà. Vì vậy, không gian nội thất tầng 3 sẽ luôn thoáng mát, dễ chịu.
Cửa kính
Để tạo cảm giác nới rộng diện tích, kiến trúc sư đã sử dụng cửa kính cho ngôi nhà. Với hệ thống cửa kính, ngôi nhà luôn có đủ ánh sáng, năng lượng và tiết kiệm chi phí điện năng. Đồng thời, thiết kế cửa kính còn giúp gia chủ có cảm giác gần gũi với thiên nhiên bên ngoài hơn.
Màu nhà Đường phố hiện đại mang tinh thần đơn giản, hài hòa và sang trọng. Kiến trúc sư đã khéo léo sử dụng 3 gam màu: vàng, đen và trắng để tạo nên một không gian ngoại thất cuốn hút.
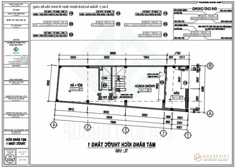
Mặt bằng công năng sử dụng thiết kế xây dựng nhà phố 3 tầng
Cách bố trí cấu trúc ngôi nhà tương tự như những ngôi nhà phố thông thường. Tầng 1 gồm sân nhỏ trước nhà, phòng khách và bếp. Phòng khách và phòng bếp sẽ được ngăn cách bằng cầu thang lên xuống. Như vậy, vừa đảm bảo sự riêng tư cần thiết vừa thuận tiện cho sinh hoạt.

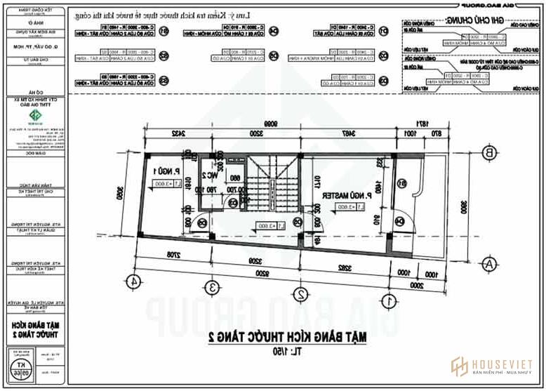
tầng 2
Lên đến tầng 2 là hành lang đi vào 2 phòng ngủ Master và phòng ngủ thứ 1 và phòng vệ sinh cho cả tầng 1. Thiết kế phòng ngủ bậc thầy với diện tích rộng rãi đủ cho 2 người sử dụng.
Từ trong phòng nhìn ra ban công vừa thoáng mát vừa dễ dàng lấy ánh sáng và gió vào phòng. Phòng ngủ 1 khá nhỏ nhưng vẫn đủ cho 1 hoặc 2 người ở.

Tầng 3
Tiếp đến là tầng 3 cũng là tầng cuối cùng của ngôi nhà phố. Thiết kế tương tự như tầng 2, hành lang dẫn vào các phòng có cấu trúc như sau: 1 phòng thờ, 1 phòng ngủ 2, 1 phòng thay đồ.

Phòng thờ có diện tích rộng để trưng bày tượng phật và bài vị. Vì là nơi trang nghiêm, yên tĩnh nên phòng thờ được đặt trên tầng thượng của chùa. nhà phố đẹp đây.
Bên ngoài là khu vườn nhỏ, nơi gia chủ có thể thoải mái trồng cây hay nuôi chim cảnh. Bên trong là 2 phòng ngủ với diện tích vô cùng rộng rãi và thoáng mát.
Đến phòng phơi, cũng là phòng thoáng mát nhất, luôn có đủ ánh sáng và gió để làm khô quần áo.
Hình ảnh thực tế thiết kế thi công nhà phố 3 tầng
- Hình ảnh thực tế công trình
- Hình ảnh thực tế công trình
- Hình ảnh thực tế công trình
- Hình ảnh thực tế công trình

bản tóm tắt
Với các tác phẩm thiết kế xây dựng nhà phố Gia đình anh Bích, mong anh chị có thêm ý tưởng cho ngôi nhà phố của gia đình. Hãy liên hệ với kiến trúc sư của Gia Bảo Group để được tư vấn thiết kế và thi công trọn gói một cách cụ thể nhất.
Bạn có thể tham khảo thêm nhiều mẫu nhà đẹp khác tại website: https://giabaogroup.vn của chúng tôi
kiến trúc nhà phố, nhà phố Gò Vấp, thiết kế kiến trúc, thiết kế kiến trúc Gò Vấp