Tổng Hợp 3 Mẫu Thiết Kế Nhà Ống 3 Tầng 4 × 11 HOTTEST NHẤT NĂM 2022
Mẫu thiết kế nhà ống 3 tầng 4 × 11 là một trong những mẫu nhà được quan tâm nhất năm 2019. Dự kiến sẽ tiếp tục lên ngôi vào năm 2022. Đây cũng là mẫu nhà được các kiến trúc sư đầu tư rất nhiều trong khâu lên ý tưởng và thiết kế. Do đó Thiết kế nhà 3 tầng rất phong phú và đa dạng. Nếu bạn có dự định xây nhà trong thời gian sắp tới thì đừng bỏ qua 3 mẫu thiết kế đặc biệt sau đây.
Mẫu thiết kế nhà ống 3 tầng 4 × 11 hiện đại
Thiết kế nhà ống 3 tầng Hiện đại thường được bố trí 1 phòng khách, 2-3 phòng ngủ, 1-2 vệ sinh, 1 bếp và 1 phòng thờ. Thiết kế đơn giản nhưng vẫn tối ưu các công năng sử dụng đảm bảo nhu cầu sinh hoạt của gia đình 4-5 người.
Nếu là người thường xuyên quan tâm đến các thông tin kiến trúc, chắc chắn bạn sẽ thấy đây là mẫu nhà được ưa chuộng nhất trong những năm gần đây. Đặc biệt phù hợp với điều kiện không gian hạn chế ở các thành phố. Ngay cả ở các vùng nông thôn, Mẫu thiết kế nhà ống 3 tầng 4 × 11 Hiện đại cũng đang dần phổ biến.
Điểm nổi bật của thiết kế này là sự kết hợp hài hòa giữa thiết kế hiện đại và phong cách tối giản. Giúp tiết kiệm không gian sống và tối ưu hóa trải nghiệm của người dùng. Ở tầng 1 có thể bố trí phòng khách và bếp. Tầng 2 sẽ là không gian nghỉ ngơi của gia đình với 2-3 phòng ngủ. Tầng 3 ưu tiên bố trí phòng thờ và sân phơi hoặc 1 phòng ngủ.

Thiết kế này giúp tận dụng tối đa không gian hạn chế. Đặc biệt là ở các thành phố lớn đất chật người đông. Luôn mang đến sự tiện lợi và thoải mái cho người dùng.
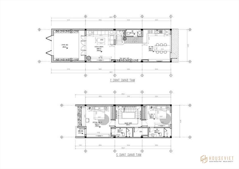
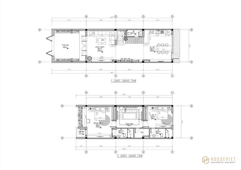
Mẫu thiết kế nhà vườn 3 tầng 4 × 11
Một ngôi nhà có khu vườn nhỏ trồng nhiều cây xanh là niềm mơ ước của nhiều người. Tuy nhiên, với gánh nặng về mặt bằng, không phải lúc nào chúng ta cũng có thể thực hiện được mong muốn này. Với mẫu thiết kế nhà mặt tiền 4m, bạn vẫn có thể bố trí cho mình một khu vườn nhỏ.
Bằng sự sáng tạo của các kiến trúc sư, Sân vườn được bố trí thông với tầng một. Phòng khách kết hợp bếp mở.

Tầng 2 dành cho không gian phòng ngủ với 2 phòng ngủ và phòng vệ sinh. Kết hợp với hành lang hoặc ban công để thông gió và tận dụng ánh sáng tự nhiên. Có thể thiết kế phòng ngủ khép kín 1 phòng vệ sinh riêng hoặc 2 phòng chung 1 phòng vệ sinh để tăng diện tích sinh hoạt cho phòng ngủ.
Tầng 3 vẫn bố trí phòng thờ và sân phơi có mái che, cây cảnh. Đây là lối sử dụng làm không gian sinh hoạt chung của cả gia đình.
Mẫu thiết kế nhà ống 3 tầng 4 × 11 có gara ô tô
Gara đang dần trở thành một phần không thể thiếu trong những ngôi nhà ống hiện đại, đặc biệt là những ngôi nhà lô phố.
Trong thiết kế này, tầng 1 sẽ được dành để làm gara. Có thể bố trí thêm phòng ngủ, phòng vệ sinh và sân phơi. Cầu thang được thiết kế giữa nhà để các phòng được bố trí ở các tầng khác nhau tạo sự thông thoáng cho không gian.

Diện tích tầng 2 được phân bổ cho phòng khách và bếp ăn. Riêng phòng khách sẽ được thiết kế cao hơn phòng bếp để tạo không gian thoáng đãng và có thêm ban công. Vừa làm đẹp cho ngôi nhà vừa chống nắng cho phòng khách. Phòng bếp thiết kế thấp hơn nhưng vẫn tạo được sự thống nhất và gắn kết với cả không gian. Lên đến tầng 3 sẽ là không gian phòng ngủ và phòng thờ. Các phòng ngủ được thiết kế vệ sinh khép kín thuận tiện cho việc sinh hoạt và sử dụng.
Công ty chuyên thiết kế đường ống
Với các mẫu Mẫu thiết kế nhà ống 3 tầng 4 × 11 Trên đây các kiến trúc sư đã mang đến cho gia chủ một ngôi nhà hiện đại và sang trọng. Nếu bạn có bất kỳ mối quan tâm hoặc câu hỏi nào về thiết kế nhà ống Đừng ngần ngại, hãy liên hệ với chúng tôi để được tư vấn cụ thể.