Tổng hợp các mẫu thiết kế nhà 2 tầng mặt tiền 8m hiện đại và sang trọng
Mẫu nhà 2 tầng hiện đại mặt tiền 8m có thể xây dựng theo mẫu nhà phố, biệt thự,… Để tạo nên sự sang trọng và tiện nghi cho ngôi nhà. Khi kiến trúc mặt tiền của mẫu nhà 2 tầng đòi hỏi sự phối màu hài hòa với những tiểu cảnh độc đáo để tạo điểm nhấn cho ngôi nhà. Hãy cùng House Viet khám phá những mẫu nhà mặt tiền 8m sang trọng nhất hiện nay nhé!
Mẫu nhà 2 tầng mặt tiền 8m đẹp 4 phòng ngủ
Hiện nay, mẫu nhà 2 tầng 4 phòng ngủ mặt tiền 8m phối cảnh đơn giản mang lại vẻ đẹp lịch sự. Gam màu trắng nhẹ nhàng xen lẫn màu vân gỗ tạo nên mẫu nhà mặt tiền 8m hiện đại và độc đáo. Chỗ để xe với kiến trúc mái bằng được trang trí bằng cây xanh mang đến không gian dễ chịu.

Khu vực bên ngoài cổng của Nhà 2 tầng mặt tiền 8m. được trồng cây xanh kết hợp với các chi tiết hoa nhỏ trang trí. Thiết kế nhà 2 tầng 3 mặt thoáng giúp ngôi nhà vừa rộng rãi, thoáng mát mà còn đảm bảo phong thủy.


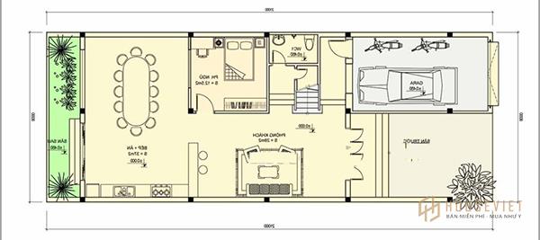
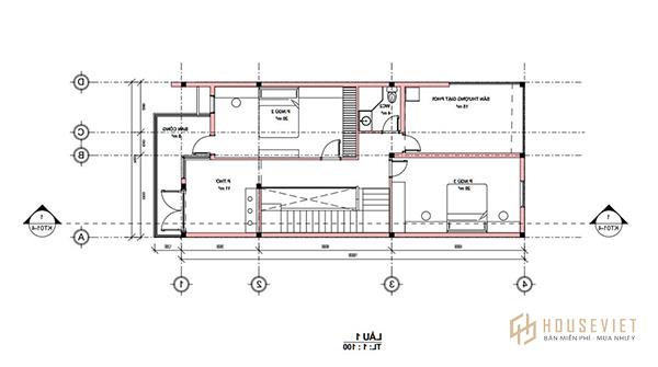
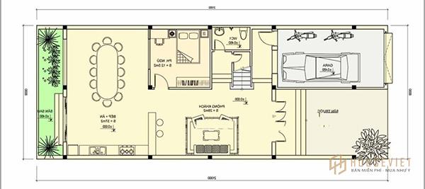
Bản vẽ hoàn chỉnh nhà 2 tầng Tầng 1 bố trí gồm phòng khách, 1 phòng ngủ và khu bếp ăn. Phòng bếp tiếp giáp với sân sau được bố trí cây xanh giúp không gian nấu nướng thông thoáng, hạn chế mùi thức ăn đọng lại trong phòng.

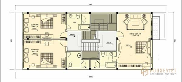
Diện tích tầng 2 của mẫu nhà 2 tầng mặt tiền 8m 4 phòng ngủ được bố trí 1 phòng ngủ master và 2 phòng ngủ con. Khu vực phòng ngủ chính và phòng ngủ con được ngăn cách bằng cầu thang và khu sinh hoạt chung. Điều này đảm bảo sự riêng tư cho mỗi người trong phòng.


Mẫu thiết kế nhà phố mặt tiền 8m 2 tầng
Xu hướng hiện đại được áp dụng phổ biến trong thiết kế nhà phố 2 tầng hiện nay. Mẫu nhà phố mặt tiền rộng 8m được xây dựng trên khu dân cư đông đúc, diện tích hạn chế nên càng tạo được sức hút ở mặt tiền.
Mặt tiền nhà phố 2 tầng phong cách hiện đại sử dụng những đường nét cá tính kết hợp với cách phối màu ấn tượng. Hạn chế trang trí rườm rà nhà phố mặt tiền 8m mà cần tạo độ thoáng trong thiết kế.



Hầu hết các mẫu nhà 2 tầng mặt tiền 8m được xây dựng trên phố đều có sự kết hợp giữa mái thái và mái bằng truyền thống. Màu sắc mái đa dạng được gia đình lựa chọn để phù hợp với mệnh và phong cách kiến trúc của ngôi nhà.


Mẫu biệt thự 2 tầng mặt tiền 8m
Mẫu thiết kế biệt thự 2 tầng hiện đại với kiến trúc mái thái sang trọng và đẳng cấp. Vị trí mặt tiền của biệt thự rộng 8m nhưng được bố trí khéo léo qua hệ thống kính và tiểu cảnh xanh ấn tượng. Các đường nét tân cổ điển được vận dụng linh hoạt tạo nên vẻ đẹp cuốn hút, mê hoặc.



Khuôn viên Biệt thự 2 tầng mặt tiền 8m với hệ thống sân vườn, bãi đậu xe rộng rãi thoáng mát. Phần sân vườn được ốp gạch hoa trang nhã đồng nhất với màu sơn ngoại thất của biệt thự.


Mẫu thiết kế nhà 2 tầng mặt tiền 8m sâu 10m
Mẫu nhà 2 tầng mặt tiền 8mx10m đang là xu hướng xây dựng làm mưa làm gió trên thị trường. con điếm của Mẫu nhà mặt tiền 8 mét | là sử dụng hệ thống cửa sổ lớn kết hợp với lan can kính hiện đại. Cây xanh được bố trí ở mặt tiền mang lại giá trị thẩm mỹ và sự gần gũi với thiên nhiên. Màu sơn trắng nhẹ nhàng kết hợp với vân gỗ sang trọng tạo nên một tổng thể hoàn chỉnh và cuốn hút.
>>> Tham khảo thêm một số mẫu thiết kế nhà 2 tầng 8 × 10 đẹp, hiện đại tại đây



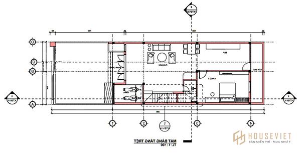
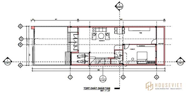
Bản vẽ mẫu nhà 2 tầng mặt tiền 8m bố trí công năng khoa học, tiện sử dụng. Trong bản vẽ sơ đồ mặt bằng Mẫu nhà 2 tầng 8x10m Dưới đây là cách bố trí phòng khách, bếp, phòng ngủ, khu sinh hoạt chung tầng 1 - 2 có sự liên thông. Việc tận dụng diện tích căn phòng đáp ứng được nhu cầu của gia chủ và yếu tố thẩm mỹ.


Công ty House Viet Tự hào là đơn vị thiết kế và thi công nhà 2 tầng đẹp và đẳng cấp. Hy vọng mẫu nhà 2 tầng hiện đại mặt tiền 8m giúp bạn có thêm ý tưởng xây dựng tổ ấm. Quý khách hàng có thể gặp KTS của House Viet để được tư vấn thiết kế và thi công, vui lòng liên hệ 1800 6015. Chúng tôi chắc chắn sẽ mang đến cho khách hàng một thiết kế tiện nghi và hiện đại.
Các bài viết khác:
- Bộ sưu tập những mẫu nhà 2 tầng đẹp hiện đại không thể bỏ qua
- Tổng hợp các mẫu thiết kế nhà 2 tầng hiện đại mặt tiền 7m
House Viet - Vững niềm tin