TOP 5 Mẫu nhà ống 2 tầng 3 phòng ngủ đẹp đón đầu xu hướng
Mẫu thiết kế nhà 2 tầng 3 phòng ngủ đẹp với bản vẽ chi tiết là cơ sở quan trọng để kiến trúc nhà ở phát huy được công năng sử dụng. Đối với mẫu nhà 2 tầng này đòi hỏi kiến trúc mặt tiền nổi bật kèm theo đó là cách bố trí nội thất hiệu quả. Quý khách hàng có thể tìm hiểu về cách bố trí nội thất và trang trí mặt tiền của mẫu nhà 2 tầng 3 phòng ngủ được giới thiệu qua bài viết dưới đây.
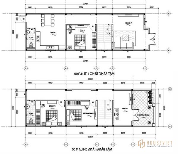
Mẫu nhà 2 tầng 3 phòng ngủ 1 phòng thờ
Kiến trúc mái thái hiện đại với tỷ lệ cân đối Mẫu nhà 2 tầng 3 phòng ngủ trở nên ấn tượng, nổi bật. Mặt tiền ngôi nhà sử dụng hệ thống cửa gỗ cao cấp mang đến vẻ đẹp bề thế, khang trang. Màu sơn trắng nhẹ nhàng xen lẫn màu xanh tươi mát góp phần tô điểm cho kiến trúc ngôi nhà. Ban công sử dụng lan can sắt làm nổi bật kết cấu sang trọng mang nét cổ kính.



Nội thất của mẫu nhà 2 tầng 3 phòng ngủ sử dụng đồ gỗ tạo sự tương đồng với kiến trúc mặt tiền. Phòng ngủ và phòng thờ được thiết kế đơn giản mang đến sự tiện lợi và thoải mái trong sinh hoạt. CŨCầu thang nhà ống 2 tầng Kết nối liền mạch đồng thời là vách ngăn giữa khu vực phòng khách và phòng bếp.




Phòng ngủ của trẻ mẫu nhà 2 tầng 3 phòng ngủ được thiết kế với tông màu theo giới tính của trẻ. Nội thất như tủ quần áo, giường ngủ với kiểu dáng hiện đại đảm bảo yếu tố thẩm mỹ. Các phòng đều được bố trí hệ thống cửa hiện đại mang đến không gian thoáng đãng, gần gũi với thiên nhiên.


Mẫu nhà ống 2 tầng 3 phòng ngủ 5 × 15 đẹp
Nhà ống 2 tầng hiện đại với khối tường cao vuông vức tạo nên một tổng thể hài hòa. Khu ban công tầng 2 rộng giúp che nắng, che mưa cho gia đình khi sử dụng. Hệ thống cửa kính kết hợp với ban công xanh tạo nên một tổ ấm thoáng mát, gần gũi với thiên nhiên.



Đối với mẫu thiết kế nhà 2 tầng 3 phòng ngủ dưới đây, tầng 1 được bố trí gồm phòng ngủ, phòng khách và khu vệ sinh chung. Phòng ngủ được trang bị những đồ nội thất cơ bản như tủ quần áo, kệ tivi và được đặt ở vị trí thông thoáng mang đến không gian nghỉ ngơi thoải mái.
Mặt bằng tầng 2 gồm phòng ngủ và khu sinh hoạt chung. Hai khu vực này được bố trí diện tích hợp lý nhằm tăng tính tiện lợi khi sử dụng. Gia đình tận dụng diện tích trống của khu vực tầng 2 để bố trí cây xanh tạo không gian gần gũi với thiên nhiên.



Nhà ống 2 tầng 1 tum 3 phòng ngủ hiện đại
Mẫu thiết kế nhà ống 2 tầng 3 phòng ngủ nổi bật nhờ hệ thống kính trong suốt vừa mang lại giá trị thẩm mỹ mà còn an toàn khi sử dụng. Ban công tầng 2 và tầng tum thuận tiện cho gia chủ thực hành sở thích trồng cây xanh. Mặt tiền mẫu nhà 2 tầng sử dụng gam màu trung tính kết hợp nâu - đen tạo nên tổng thể hài hòa.
Điểm nổi bật của mẫu thiết kế nhà 2 tầng hiện đại này chính là khối kiến trúc bao trùm mặt tiền. Khoảng hở lớn thay thế bức tường khô cứng. Phần mái tôn được sơn tĩnh điện màu đen giúp tăng diện tích sử dụng cho ngôi nhà.



Kế hoạch sàn Nhà 2 tầng 1 tum 3 phòng ngủ chi tiết bố trí nội thất. Tầng 1 là sân để xe thông thoáng kết hợp phòng khách và bếp ăn rộng rãi. Tầng 2 chủ yếu là khu vực nghỉ ngơi và văn phòng tạo không gian yên tĩnh, thoải mái. Diện tích sử dụng của từng phòng chức năng được bố trí hiệu quả tạo nên không gian sống hiện đại.


Mẫu nhà ống 2 tầng 4x15m có 3 phòng ngủ
Ngôi nhà ống 2 tầng dưới đây hút mắt với kiến trúc mặt tiền ấn tượng và cuốn hút. Màu trắng và xanh pastel được kết hợp hài hòa tạo nên một ngôi nhà hiện đại và tiện nghi. Kiến trúc mái bằng vững chắc kết hợp với các hình khối vuông vắn phát huy tối đa giá trị thẩm mỹ cho ngôi nhà.


Bản vẽ nhà ống 2 tầng được bố trí nội thất khoa học, hiện đại đề cao tính tiện nghi khi sử dụng. Phòng khách và phòng bếp được ngăn cách bằng khoảng đệm tạo sự riêng tư trong sinh hoạt. Hai khu được bố trí với diện tích vừa phải và được đặt ở vị trí thông thoáng, mát mẻ.

Nhà ống 2 tầng 3 phòng ngủ 5 × 18 tiện nghi
Vì Mẫu nhà 2 tầng mặt tiền 5m. Sâu 18m nên gia chủ ưu tiên những đường nét kiến trúc vuông vắn, chắc chắn. Mẫu thiết kế nhà 2 tầng dưới đây đã áp dụng các hình khối vuông vắn từ tầng 1 đến tầng 2. Vị trí mặt tiền kết hợp hài hòa giữa trắng - đen tạo nên tổng thể trang nhã, hiện đại. Ban công tầng 2 rộng để tăng diện tích và đảm bảo sự hài hòa cho tổng thể kiến trúc.


Đang vẽ Mẫu nhà ống 2 tầng 3 phòng ngủ sắp xếp công năng sử dụng khoa học, tiện lợi. Phòng khách và bếp ăn ở tầng 1 được ngăn cách bằng vách ngăn mang đến sự riêng tư trong sinh hoạt. Các tiểu cảnh xanh được bố trí nhịp nhàng trong từng ô trống giúp ngôi nhà gần gũi với thiên nhiên.



Thiết kế nhà ống 2 tầng 3 phòng ngủ đẹp, hiện đại là cách để nâng cao chất lượng cuộc sống gia đình ổn định và tiện nghi. House Viet Tin rằng với gợi ý nhà 2 tầng mà chúng tôi mang đến cho khách hàng đã giúp khách hàng có nhiều ý tưởng kiến trúc nhà ở độc đáo. Khách hàng tham khảo dịch vụ thiết kế kiến trúc và thi công và nhận báo giá qua 1800 6015.
Các bài viết khác:
- Mẫu thiết kế nhà 2 tầng 3 phòng ngủ 80m2 đẹp, hiện đại
- Mẫu thiết kế nhà phố, nhà ống 2 tầng 3x10m đẹp và cuốn hút
- TOP 10 mẫu nhà phố, nhà ống 2 tầng có tầng hầm tiện lợi
House Viet - Vững niềm tin