Top 6 mẫu nhà cấp 4 có gác lửng đẹp mà bạn hằng mong ước
Mẫu nhà cấp 4 gác lửng đẹp trong những năm gần đây nhận được rất nhiều sự quan tâm của các kiến trúc sư cũng như các gia đình có thu nhập thấp đang có nhu cầu xây dựng nhà ở. Mỗi năm có hàng trăm ngôi nhà được xây dựng nhưng không mẫu nào giống mẫu nào vì ai cũng muốn ngôi nhà của mình là độc nhất. Chúng tôi tin chắc rằng các bạn trẻ trong độ tuổi kết hôn hay các cặp vợ chồng mới cưới đều có mong muốn xây dựng tổ ấm riêng cho gia đình nhỏ của mình. Có người ước mơ lớn là xây được một ngôi biệt thự sang trọng, lộng lẫy nhưng cũng có người lại chỉ ước ao có được một ngôi nhà nhỏ như mẫu nhà cấp 4 gác lửng đủ để gia đình sinh hoạt, chia sẻ mọi niềm vui. những niềm vui và nỗi buồn trong cuộc sống. 6 Mẫu nhà cấp 4 có gác lửng đẹp mà Nhà đẹp giới thiệu đến các bạn dưới đây có thể không phải là ngôi nhà mơ ước của bạn, nhưng chúng tôi muốn gửi đến bạn một thông điệp rằng: “ước mơ nên thành hiện thực, bạn cần cân nhắc hoàn cảnh, chi phí của bản thân và khả năng đưa ra lựa chọn phù hợp cho bạn. "
- Top 6 mẫu nhà cấp 4 có gác lửng đẹp mà bạn hằng mong ước
- 12 mẫu nhà cấp 4 nông thôn mái thái, mái tôn, mái bằng
- Cùng chiêm ngưỡng 10 mẫu nhà cấp 4 đẹp nhất hiện nay
- Những mẫu nhà cấp 4 dưới 800 triệu đẹp nhất năm
- 9 mẫu nhà cấp 4 gác lửng - xu hướng mới năm nay
Mẫu nhà cấp 4 gác lửng đẹp 67m2 giá 350 triệu 1 phòng ngủ

Mẫu nhà đầu tiên chúng tôi muốn giới thiệu đến các bạn là một trong những mẫu nhà cấp 4 có gác lửng đẹp tại Thanh Hóa. Được xây dựng trên khu đất có diện tích 67m2, gia chủ chúng tôi quyết định làm mẫu gác lửng vì kinh phí eo hẹp và diện tích xây dựng nhỏ nên gia đình có ít phương án.
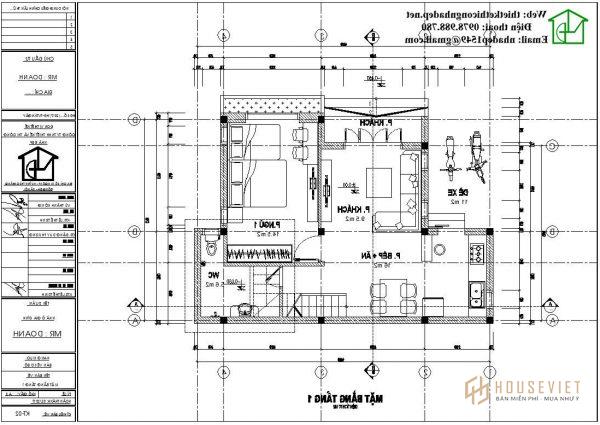
Trong khoảng chi phí 350 triệu, các phương án mà chúng tôi đưa ra cho ngoại thất là phong cách hiện đại, sơn tường màu xám và sử dụng cửa nhôm kính xingfa để tận dụng nhiều ánh sáng và gió tự nhiên vào nhà. Nội thất sẽ được bố trí như sau: tầng 1 dùng để sinh hoạt chung như tiếp khách và nấu nướng, tầng lửng bố trí 1 phòng ngủ để ngăn cách với không gian bên dưới.


2 bản vẽ 3D mặt bằng nội thất bên trong sẽ giúp bạn có những hình dung chân thực nhất về ngôi nhà. Với cách bố trí công năng khoa học, tận dụng mọi diện tích rất thích hợp cho những người độc thân hoặc vợ chồng mới cưới. Không gian rộng rãi, đẩy đủ tiện nghi sẽ giúp cuộc sống của bạn sung túc và thoải mái hơn.
Mẫu nhà cấp 4 gác lửng 75m2 giá 350 triệu 2 phòng ngủ

Cùng với kinh phí 350 triệu mẫu nhà cấp 4 mái thái đẹp của gia đình anh Doanh trên đây các bạn có thể thấy phần ngoại thất được thiết kế đẹp và sang trọng hơn rất nhiều. Chỉ ít hơn mẫu đầu khoảng 10m2 nhưng ngôi nhà cấp 4 đã cơi nới thêm công năng thành 1 phòng ngủ, hơn nữa còn ngăn cách giữa các gian nhà rất rõ ràng.
Sở dĩ gia chủ có thể xây nhà với giá rẻ mà nhiều công năng như vậy cũng là nhờ quyết định sáng suốt khi lựa chọn hình thức thiết kế và thi công trọn gói. Hình thức này không còn quá xa lạ với nhiều hộ gia đình hiện nay. Bạn sẽ chỉ cần trao đổi ý tưởng và mong muốn xây dựng, còn khâu từ thiết kế - mua vật tư - thi công sẽ do nhà thầu lo liệu từ A đến Z.

Để giúp bạn có những hiểu biết sơ bộ về cách bố trí nội thất của ngôi nhà, chúng tôi đã dành riêng cho gia chủ bản vẽ 3D nội thất phòng khách. Có thể thấy toàn bộ nội thất trong phòng đều rất sang trọng và hiện đại không thua kém bất kỳ mẫu biệt thự vườn 1 tầng hay nhà phố nào. Sơn tường màu trắng với cách trang trí độc đáo sẽ khiến ngôi nhà của bạn trở nên hoàn hảo.


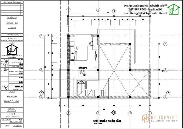
Chi tiết bố trí nội thất của mẫu nhà cấp 4 có gác lửng đẹp được thể hiện qua 2 bản vẽ 3D trên. Tầng 1 bố trí công năng gồm 1 phòng khách, 1 phòng bếp - ăn và 1 phòng ngủ. Công năng tầng 2 gồm 1 phòng ngủ. Với công năng này, mẫu tủ phù hợp với những cặp vợ chồng có con nhỏ muốn có không gian sinh hoạt riêng cho vợ chồng và không gian riêng cho con cái học tập.
Mẫu nhà cấp 4 gác lửng 4x21m giá 500 triệu 3 phòng ngủ


Không có lợi thế mặt tiền rộng nhưng nhờ có chiều sâu lý tưởng. Mẫu nhà cấp 4 mái tôn của gia đình anh Văn ở Hải Dương đáp ứng đủ nhu cầu sử dụng của gia đình. Mặt tiền được thiết kế khá đơn giản nhưng khi nhìn từ trên cao xuống bạn sẽ thấy được không gian rộng và thiết kế độc đáo của ngôi nhà.
Sử dụng mái tôn và thi công móng cốc đã giúp gia chủ tiết kiệm được rất nhiều chi phí. Để chống nóng, chúng tôi lợp tôn lạnh, lót thêm một lớp xốp 10cm dưới mái và đóng trần thạch cao. Nhiều người e ngại rằng làm mái tôn sẽ rất nóng và ô nhiễm tiếng ồn nhưng trên thực tế, tôn là vật liệu có khả năng hấp thụ và phân bổ nhiệt tốt nên về đêm ngôi nhà sẽ mát nhanh hơn so với mái bằng.

Cách bố trí bên trong ngôi nhà như sau:
- Tầng 1: phòng khách, bếp-ăn, 1 phòng ngủ và 1 vệ sinh cuối nhà.
- Tầng 2: 2 phòng ngủ và 1 phòng vệ sinh
Có 3 phòng ngủ, gia đình bạn có thể sinh sống từ 3-5 thành viên. Với những bạn đang có ý định xây nhà phố cũng có thể tham khảo cách bố trí công năng của ngôi nhà này. Thay vì tầng lửng sẽ là tầng 2 của ngôi nhà và bố trí thêm một phòng thờ.
Mẫu nhà cấp 4 gác lửng 5x15m giá 700 triệu 3 phòng ngủ

Mẫu nhà cấp 4 gác lửng đẹp Giá rẻ thông thường được thiết kế theo phong cách hiện đại, kết cấu đơn giản. Không cần nhấn mạnh quá nhiều vào các chi tiết, nhà cấp 4 luôn hiện lên với vẻ đẹp kiên cố, vững chãi. Không gian sân vườn rộng cũng là một điểm cộng khi sở hữu mẫu nhà cấp 4 gác lửng, Không gian xanh sẽ giúp bạn luôn cảm thấy thư thái và tràn đầy sức sống.

Trên diện tích 5x15m, chúng tôi phân bổ công năng của ngôi nhà như sau:
- Tầng 1: 1 phòng khách, 1 phòng đọc sách kết hợp phòng ăn - bếp và 1 phòng ngủ chính
- Tầng 2: 2PN, 1 phòng thờ và 1 vệ sinh .
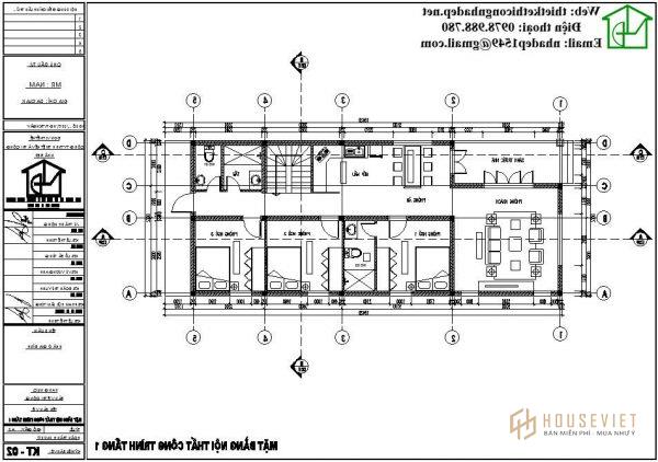
Mẫu nhà cấp 4 gác lửng 7x18m giá 800 triệu 4 phòng ngủ


Mẫu nhà cấp 4 mái thái có gác lửng tiếp theo mà chúng tôi muốn giới thiệu đến các bạn được xây dựng trên khu đất rộng 7x18m. Vì khu đất không hợp với tuổi của gia chủ nên Nhà Đẹp đã gợi ý thay đổi hướng nhà cho phù hợp. Bạn sẽ thấy trong bản vẽ mặt bằng có cửa chính được mở sang một bên để lấy hướng. Giải pháp này vẫn đảm bảo tính thẩm mỹ cho công trình khi chúng ta nhìn từ mặt tiền của ngôi nhà.

Đây là mặt bằng nội thất của tầng một. Từ cửa bước vào là không gian phòng khách. Phòng khách thẳng là không gian 3 phòng ngủ, trong đó có 1 phòng ngủ chính. Đối diện phòng ngủ 1 là phòng ăn - bếp. Đối diện phòng ngủ 2 là cầu thang và cuối cùng là khu vệ sinh chung cho cả gia đình.

Công năng tầng 2 gồm 1 phòng ngủ và phòng thờ. Tầng lửng sẽ không có nhà vệ sinh để đảm bảo không gian thờ cúng được sạch sẽ và thông thoáng.
Mẫu nhà cấp 4 gác lửng đẹp 7x20m giá 850 triệu 4 phòng ngủ

Bạn có quan tâm đến:
- Mẫu biệt thự 2 tầng đẹp
- Mẫu biệt thự cổ điển đẹp
Khi thiết kế nhà cấp 4 có gác lửng rộng bạn cần chú ý tính toán kỹ lưỡng diện tích gác lửng vì có nhiều trường hợp tầng lửng biến thành tầng 2 do gia chủ không thống nhất quan điểm và muốn đầu tư. . từng cái một. Cách chúng tôi xây dựng mặt bằng cho mỗi ngôi nhà đều vô cùng kỹ lưỡng, tỉ mỉ đến từng chi tiết, tuy nhiên ngôi nhà có được xây dựng hoàn chỉnh và đẹp hay không còn phụ thuộc rất nhiều vào quá trình và quyết định xây dựng. của chủ nhà.


Tương tự, mặt tiền cũng cần được làm y như bản vẽ 3D thì mới có thể xây nhà giá rẻ, đẹp về ngoại thất và nội thất. Chỉ cần một sai sót nhỏ trong quá trình xây dựng cũng có thể làm tăng chi phí xây nhà lên gấp nhiều lần.
Trên đây Nhà Đẹp đã giới thiệu đến các bạn những thông tin sơ bộ về 6 mẫu nhà cấp 4 gác lửng đẹp, được dự báo sẽ trở thành xu hướng mới vào năm 2020 ở các vùng nông thôn. Nếu bạn cảm thấy ưng ý với mẫu thiết kế nào và muốn tìm hiểu thêm thông tin chi tiết, hãy để lại bình luận bên dưới bài viết hoặc liên hệ ngay với chúng tôi qua số Hotline.
Bạn có thể tham khảo thêm các mẫu nhà cấp 4 có gác lửng đẹp khác tại bài viết:
- Nhà cấp 4 gác lửng mái lệch, mẫu nhà cấp 4 hiện đại NDNC456
- Mẫu thiết kế nhà cấp 4 có gác lửng, mẫu nhà có gác lửng ở Mỹ Đức DBT1T58
- Mẫu nhà cấp 4 có gác lửng đẹp tại Thanh Hóa, nhà cấp 4 đẹp NDNC460
- Nhà cấp 4 gác lửng, mẫu nhà cấp 4 mái xéo ở Nam Định NDNC4114
- https://thietkethicongnhadep.net/mau-nha-dep/nha-cap-4-3-phong-ngu/