Top 79+ Bản Vẽ Nhà Cấp 4 Đầy Đủ Mọi Công Năng Cho Gia Đình
Thiết kế các mẫu để xây nhà cấp 4 Hiện đang được rất nhiều người lựa chọn dù ở thành thị hay nông thôn. Vì chi phí để xây dựng kiểu nhà này khá thấp mà ngôi nhà đảm bảo đầy đủ các công năng cần thiết cho các thành viên trong gia đình. Để làm được điều này, yêu cầu là bản vẽ nhà cấp 4 phải hợp lý và khoa học. Dưới đây là một số bản vẽ thiết kế nhà cấp 4 cho những ai muốn tham khảo.
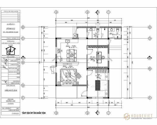
Bản vẽ chi tiết nhà cấp 4 có gác lửng mái thái

Bản vẽ nhà cấp 4 mái bằng có gác lửng được thiết kế dựa trên nhu cầu của gia chủ gồm 5 phòng ngủ. Vì bản vẽ nhà cấp 4 Trong trường hợp này, diện tích ở tầng trệt sẽ được chia thành 1 phòng khách, 2 phòng ngủ và 1 vệ sinh để tạo sự thuận tiện khi đưa vào sử dụng. Dù diện tích xây dựng lớn hay nhỏ Tuy nhiên, với cách bố trí không gian được tính toán kỹ lưỡng có thể tận dụng tối đa không gian của ngôi nhà.
Bản vẽ chi tiết nhà cấp 4 2 phòng ngủ

Với mẫu nhà cấp 4 Căn nhà này sẽ được bố trí 2 phòng ngủ và 1 phòng thờ. Đối với phòng khách và phòng ăn sẽ được thiết kế tạo không gian mở với nhau nên sẽ rất rộng rãi. Phòng bếp được thiết kế trong góc. Phòng đối diện phòng khách sẽ là phòng thờ, bên cạnh phòng thờ sẽ là 2 phòng ngủ. 2 phòng ngủ sẽ có thiết kế với phòng vệ sinh khép kín. Hỗ trợ tạo sự thuận tiện cho không gian sinh hoạt chung của gia đình.
Bản vẽ chi tiết mẫu nhà cấp 4 đẹp có gara ô tô
Mẫu nhà này thường sẽ được thiết kế thành 3 phòng ngủ, nó sẽ được đặt ở vị trí trung tâm của ngôi nhà để thuận tiện cho quá trình sinh hoạt cũng như di chuyển vào bếp, vệ sinh hay đi ra ngoài. phòng khách. Với sự hợp lý trong việc phân chia và bố trí các không gian này sẽ giúp mẫu thiết kế được các chủ đầu tư tại các thành phố lớn yêu thích và ưa chuộng hơn so với mẫu nhà cấp 4 mái thái này.
Bản vẽ chi tiết nhà ống cấp 4 mái thái
Bản vẽ mẫu xây nhà cấp 4 Mẫu thiết kế nhà mái thái có 3 phòng ngủ đang để lại ấn tượng sâu sắc cho nhiều chủ đầu tư rất khó tính. Phần chân tường cũng như mặt tiền ngôi nhà được ốp đá nghệ thuật sẽ để lại nhiều điểm nhấn cho thị giác khi nhìn kỹ mẫu thiết kế nhà độc đáo trên.
Bản vẽ chi tiết nhà ống cấp 4 mặt tiền 8m

Lựa chọn kiểu dáng kiến trúc là hình chữ nhật, các kiến trúc sư sẽ không quá khó khăn trong việc bố trí không gian sống cho các căn phòng. Kiến trúc sư sẽ chia không gian thành 2 phần không gian riêng biệt. Bên tay phải từ sảnh chính đi vào lần lượt sẽ là các không gian chung như phòng khách, bếp ăn và sảnh sau dành cho sân vườn. Phía bên tay trái từ sảnh chính dành cho không gian sinh hoạt riêng với 3 phòng ngủ có vệ sinh chung.
Bản vẽ chi tiết nhà cấp 4 hình chữ L hiện đại
Những cụm từ như hiện đại, hài hòa và tinh tế sẽ được sử dụng cho mẫu bản vẽ thiết kế nhà cấp 4 này. Với kiến trúc khá đơn giản nhưng phần móng của ngôi nhà được thiết kế cao ráo, thoáng mát giúp mang đến cho gia chủ một không gian sống hoàn hảo. Phần chân chữ L sẽ lần lượt bố trí các không gian sinh hoạt như phòng khách, phòng thờ và 3 phòng ngủ đặt cạnh nhau. Thiết kế này làm sảnh phụ khá rộng, tạo lối đi vào không gian bếp bên trong.
Bản vẽ chi tiết nhà cấp 4 diện tích 90m2

Với thiết kế này, khi từ sảnh chính bước vào, không gian phòng khách sẽ được bố trí ngay cửa để thuận tiện cho việc đi lại theo yếu tố phong thủy. Tiếp theo, nếu bạn đi sâu vào bên trong sẽ là không gian phòng ăn. Từ phòng khách sẽ có hành lang chung tạo sự liên kết cho các không gian trong nhà với nhau. 3 phòng ngủ được bố trí cạnh nhau, nhà vệ sinh được thiết kế cuối cùng trong góc đảm bảo không gian sinh hoạt của không gian khác.
Bản vẽ chi tiết nhà cấp 4 7x15m. mái tôn

Mẫu này được xem là mẫu vẽ cảnh nhà cấp 4 đẹp và rất được ưa chuộng ở nhiều nơi khác nhau, bởi kiểu dáng cũng tương đối hiện đại mà chi phí lại rất phải chăng. Nhìn vào thiết kế tổng thể của ngôi nhà này, bạn có thể thấy nó thực sự rất rộng rãi và thoải mái. Mẫu nhà này thường gồm 6 phòng với 3 phòng ngủ; 1 phòng khách; 1 phòng thờ; 1 phòng bếp ăn; 1 phòng kho và 1 phòng vệ sinh khép kín. Hỗ trợ đảm bảo đáp ứng đầy đủ nhu cầu của mọi thành viên trong gia đình.
Xây nhà cấp 4 mái tôn không chỉ được nhiều hộ gia đình ưa chuộng mà các nhà thiết kế nội thất cũng rất ưa chuộng những mẫu như vậy. Khi thiết kế nội thất nhà cấp 4 mái tôn các nhà thiết kế sẽ không quá gò bó bởi không gian nhà rộng rãi, thoáng mát, phù hợp với mọi phong cách thiết kế.
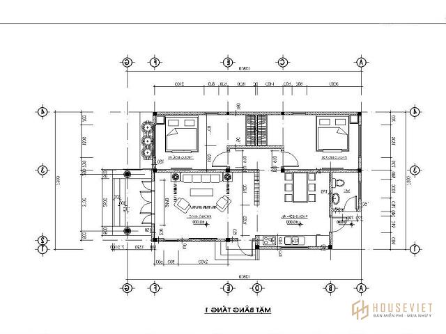
Bản vẽ nhà cấp 4 3 phòng ngủ 11 × 8,5

Trong bản vẽ thiết kế nhà 3 phòng ngủ này, cửa chính sẽ được bố trí chính giữa mặt tiền và dẫn từ sảnh vào bên trong. Ngoài ra sẽ có 1 phòng ngủ nằm sát mặt tiền và luôn có cửa sổ hướng ra mặt tiền đón nắng và gió tự nhiên. Kiểu thiết kế này nhằm mục đích tạo cho ngôi nhà của bạn sự thoáng mát và sáng sủa, tránh cảm giác quá ngột ngạt khi sống trong đó.
Bản vẽ chi tiết nhà cấp 4 đơn giản 5x20m
Theo phân tích của các kỹ sư, mẫu nhà trên được thiết kế theo phong cách xây dựng rất hiện đại giúp tiết kiệm tối ưu thời gian và chi phí nội bộ cho chủ đầu tư. Phần mái sẽ được chia thành 2 bên để đảm bảo chức năng che nắng và chống thấm hiệu quả nhất, rất phù hợp với khí hậu nước ta. Mặt bằng tổng thể mặt bằng bao gồm phòng khách, phòng thờ, phòng sinh hoạt chung, bếp ăn và 3 phòng ngủ có vệ sinh.
Xem thêm: Top 500 Mẫu Nhà Cấp 4 Có Tầng 4 Đẹp Và Hot Nhất Hiện Nay
Bản vẽ chi tiết nhà cấp 4 mái bằng đơn giản

Kiểu thiết kế này luôn mang đến vẻ đẹp rất giản dị và bình dị cho gia chủ. Với thiết kế cửa kính rộng sẽ rất hiệu quả trong việc lấy sáng tối đa. Phần mái rộng nên gia chủ có thể tận dụng làm sân phơi rất tiện lợi. Bản vẽ chi tiết ngôi nhà này gồm có 2 phòng ngủ, 1 phòng khách, 1 phòng bếp và 1 phòng vệ sinh chung.
Bản vẽ nhà cấp 4 đơn giản 6x12m
Đây được coi là diện tích xây nhà tương đối lớn. Mẫu nhà cấp 4 mái thái này sẽ được thiết kế gồm 2 phòng ngủ, 1 phòng ăn, 1 phòng khách và 1 phòng thờ. Các phòng sẽ được bố trí tương xứng theo một tỷ lệ nhất định để tạo nên sự cân đối tối đa, kèm theo đó là những đồ vật thiết kế nội thất nhỏ gọn sẽ tạo nên nét tinh tế riêng cho ngôi nhà của bạn. bạn.
Bản vẽ chi tiết nhà cấp 4 mái ngói giả ngói độc đáo.

Kiểu nhà này có lẽ khá lạ mắt đối với mọi người. Nhưng trên thực tế, nó luôn mang đến một vẻ đẹp rất khác cho ngôi nhà. Bản vẽ chi tiết của ngôi nhà này sẽ bao gồm 2 phòng ngủ, 1 phòng thờ, 1 phòng khách và 1 phòng ăn. Trong đó, phòng thờ sẽ được bố trí bên cạnh phòng ngủ. Phòng khách và phòng ăn được thiết kế liên thông với nhau tạo sự thông thoáng cho ngôi nhà. Phòng vệ sinh cũng được bố trí ở góc trong cùng nên rất thuận tiện khi sử dụng.
Bản vẽ chi tiết nhà cấp 4 7x16m. mái tôn
Với thiết kế mái tôn, nước mưa có thể dễ dàng chảy xuống máng xối bên dưới. Theo bản vẽ mẫu nhà cấp 4 mái tôn này sẽ được bố trí 6 phòng như: 2 phòng ngủ lớn và 1 phòng ngủ nhỏ; 1 bếp ăn; 1 phòng khách kết hợp phòng thờ và 1 vệ sinh chung.
Bản vẽ chi tiết nhà cấp 4 8 × 13m

Đây là một trong những bản vẽ mặt bằng nhà cấp 4 đẹp. Với bản thiết kế rất chi tiết và đầy đủ sẽ cho bạn nhiều ý tưởng để xây dựng và thiết kế nội thất nhà cấp 4 với không gian sống tuyệt vời. Ngôi nhà sẽ được thiết kế với chiều cao tính từ móng là 7m giúp tổng thể ngôi nhà cao và mát mẻ hơn.
Tóm lại, để xây một ngôi nhà vừa tiết kiệm nhưng đầy đủ công năng sử dụng thì nhà cấp 4 là sự lựa chọn phù hợp dành cho bạn. Hy vọng các mẫu bản vẽ nhà cấp 4 Những điều trên sẽ giúp bạn tạo cho mình một ngôi nhà đáp ứng được những tiêu chí đã đề ra.