Tư vấn thiết kế biệt thự 8x20m 3 tầng hiện đại đầy đủ công năng
Dòng chảy Thiết kế biệt thự 8x20m thu hút rất nhiều sự chú ý. Nếu bạn đang tìm kiếm một mẫu biệt thự hiện đại đầy đủ công năng với mức chi phí không quá cao. CHÚNG TÔI LÀM Chúng tôi sẽ tư vấn chi tiết cho bạn về dòng máy này để bạn dễ dàng lựa chọn.
Tư vấn thiết kế biệt thự 8x20m 3 tầng hiện đại đầy đủ công năng
Nhà phố có mặt tiền hẹp, chiều dài rất phổ biến trong các khu nhà ở. Vì kiểu nhà hình ống có diện tích hạn chế nên sẽ phải xây nhiều tầng, nhằm tăng diện tích sử dụng và đáp ứng nhu cầu của đại gia đình. Chúng tôi khuyên bạn nên tổ chức các chức năng như sau:

- tầng 1: Thiết kế 1 phòng ngủ cho người lớn tuổi, phòng khách và bếp, wc. Hơn nữa, bạn có thể thiết kế 1 hồ cá lớn hơn, 1 gara trong nhà.- tầng 2: Bố trí 2 phòng ngủ, 1 phòng sinh hoạt chung đọc sách, hoặc không gian cho con học bài, 2 toilet.
- Tầng 3: Phòng thờ, máy sấy và phòng ngủ của khách.
Phong cách kiến trúc hiện đại đề cao chức năng. Nhưng không quá cầu kỳ về mặt trang trí mặt tiền, hạn chế các chi tiết phào chỉ. Thiết kế này sẽ tập trung vào việc sử dụng các khối có đường nét khỏe khoắn. Kết hợp với màu sắc chất liệu đơn giản và nhẹ nhàng. Tất cả được kết nối với nhau để tạo nên một công trình bắt mắt
Nếm thử Biệt thự Tòa nhà này sẽ được thiết kế 3 tầng theo phong cách hiện đại, kết hợp với các khối ngang lớn làm nổi bật vẻ đẹp mạnh mẽ của tòa nhà. Các ban công và khung kèo bằng gỗ nhựa của bên trong công trình vươn thẳng ra ngoài mà không có cột chống đỡ, khơi gợi trí tò mò của người nhìn và tạo vẻ hiện đại cho công trình.
Cách bố trí cổng cho biệt thự 8x20m.
Cửa của Thiết kế biệt thự 8x20m Được các kiến trúc sư thực hiện với những đường cắt độc đáo và dứt khoát. Các ô sắt đan xen nhau nhưng không gây rối mắt, gây cảm giác nhàm chán, khô khan như các công trình hiện đại trước đây. Bạn có thể thêm những mảng xanh của cây cối để hút mắt hơn.

Có thể nói gam màu trắng đen chính là điểm nhấn của các khối cửa. Việc sử dụng các vật liệu phù hợp khiến tòa nhà toát lên vẻ đơn giản. Giúp tăng khả năng đưa ánh sáng vào nhà mà không làm mất đi vẻ đẹp ấn tượng của công trình.
Sân vườn biệt thự hiện đại 8x20m
tông màu của Thiết kế biệt thự 8x20m Chủ yếu sử dụng gam màu trắng. Theo phong cách hiện đại, màu trắng luôn là màu xu hướng. Bởi nó luôn là biểu tượng của sự thuần khiết, đơn giản và tinh tế.
Kiến trúc sư đã vô cùng khéo léo khi sử dụng cửa kính cho cửa chính cũng như cửa sổ và lan can. Kính là vật liệu đặc trưng của kiến trúc hiện đại, cho phép mở rộng và thông gió cho không gian nhà phố.

Điểm nhấn của mẫu thiết kế nhà phố này là khoảng xanh trên ban công tầng 3, giúp kết nối không gian trong nhà và ngoài trời một cách rất tự nhiên và nhịp nhàng. Thiết kế dù che được ứng dụng và lắp đặt trực tiếp không cần cột chống tạo nên nét độc đáo và hiện đại.
Chi tiết mặt bằng tầng 1 trong thiết kế biệt thự
Nội thất tầng 1 có view phòng khách nhìn ra khoảng sân xanh mát. Ngay cạnh phòng khách là bể cá giúp không gian mát mẻ hơn cho nhà phố. Cách bố trí hồ cá kết hợp với thông gió đóng vai trò như một lỗ nhỏ điều hòa nhiệt độ cho ngôi nhà, giúp giảm bớt cái nóng mùa hè.

Thiết kế của bể cá cũng sẽ được ưu tiên phù hợp với phong thủy. Khu vườn cũng sẽ được tạo cảnh quan một cách thích hợp. Ngoài ra, gara ô tô sẽ được bố trí bên trái ngôi nhà. Bếp bố trí ở cuối khi nấu ăn sẽ không bị khói. Ngoại thất biệt thự cũng được trang trí bằng cây xanh tạo nên một không gian xanh rộng đẹp.
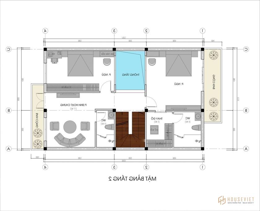
Thiết kế biệt thự 8x20m mặt bằng tầng 2

Mặt bằng tầng 2 gồm 2 phòng ngủ, 1 phòng sinh hoạt chung đọc sách hoặc không gian cho con học bài, 2 vệ sinh. Tất cả các phòng ngủ đều có cửa sổ đón ánh sáng. Khu vực ngoài trời được tạo cảnh quan với cây xanh giúp không khí mát mẻ hơn.
Mặt bằng tầng 3 biệt thự hiện đại 8 × 20

Thiết kế nhà biệt thự 3 tầng Tầng 3 được bố trí phòng thờ, phòng phơi đồ và phòng ngủ cho khách. Tầng này có cửa kính giúp lấy sáng vào các phòng. Mái thái là kiểu mái bằng có ưu điểm là nhanh và dễ thi công hơn so với mái Thái hay mái Nhật.
Tư vấn thiết kế hồ cá ngoài trời biệt thự 8x20m
Xây dựng hồ cá ngoài trời chính là tạo cho ngôi biệt thự một không gian sống thú vị hơn. Đặc biệt, nó còn mang lại tính thẩm mỹ cao và ý nghĩa về mặt phong thủy. Bể cá ngoài trời là không gian kết hợp giữa hòn non bộ và một số yếu tố như cây cảnh, tiểu cảnh, hòn non bộ mang lại vẻ đẹp, sự may mắn, tài lộc cho gia chủ.

Với hồ cá ngoài trời bạn có thể nuôi nhiều loại cá khác nhau như cá rồng, cá koi… Thông thường loại hồ này có độ sâu từ 80cm đến 100cm. Đáy hồ được thiết kế theo kiểu ao hồ, hồ cá có thể lớn hoặc nhỏ tùy theo diện tích khuôn viên.
Thiết kế của bể cá làm tăng giá trị thẩm mỹ cho không gian ngoài trời
Sự kết hợp giữa yếu tố nước và trường cá với nhiều màu sắc trong bể mang đến một không gian sống sinh động, hài hòa và rất thẩm mỹ. Thay vì chỉ trang trí sân vườn bằng cây xanh, có một bể cá ngoài trời sẽ giúp không gian hòa hợp với thiên nhiên. Đặc biệt, bể cá còn giúp gia chủ thể hiện cá tính và tạo ấn tượng với bạn bè khi ghé thăm.

Bể cá cũng giúp cải thiện chất lượng làm mát không khí. Nước là một yếu tố cần thiết cho mọi sinh vật. Bể cá trong sân vườn sẽ giúp điều hòa không khí, cung cấp độ ẩm và làm mát không gian, đặc biệt là vào mùa hè. Bể cá sẽ giúp làm mát không gian xung quanh thông qua quá trình bay hơi nước.
Khi thiết kế bể cá ngoài trời, mật độ cá trong bể cá trong nhà cũng cần được quan tâm. Bạn cần đảm bảo rằng không gian sống trong bể sẽ giúp cá sinh sản và phát triển, từ đó hạn chế việc cá thường xuyên bị chết. Đối với cá Koi, bạn tuyệt đối không nên đặt những thứ gì có hại cho Koi: như sỏi, hoa súng… những thứ này dễ làm bẩn và khiến Koi bị bệnh.
Thiết kế hồ cá ngoài trời nên có mái che để đảm bảo nhiệt độ nước luôn cân bằng cho cá sinh sống và phát triển. Đặc biệt với khí hậu thay đổi bốn mùa như ở miền Bắc, cá dễ bị nhiễm lạnh hoặc bỏng khi nhiệt độ quá thấp hoặc quá cao.
Thiết kế gara ô tô cho biệt thự 8x20m.
Hầm để xe thiết kế trong nhà được nhiều gia đình lựa chọn bởi sự tiện lợi trong việc quản lý phương tiện. Cung cấp an toàn chống mưa nắng, tiết kiệm phí gửi xe. Việc thiết kế gara ô tô trong nhà phụ thuộc vào diện tích của ngôi nhà và kích thước ô tô mà gia chủ sử dụng.

Chiều dài x rộng x tối thiểu của một chỗ để xe với kích thước 3m x 5m vừa đủ chỗ cho một chiếc ô tô 4 chỗ loại nhỏ. Chiều cao tối thiểu của ga ra là 2 m để xe đi vào không bị đụng trần. Ngoài ra, khoảng cách giữa ô tô với 2 bên nhà và tường sau là 25 cm, khoảng cách từ cửa gara là 40 cm.
Chúng tôi vừa trình bày mô hình Thiết kế biệt thự 8x20m đầy đủ chức năng. Nếu bạn quan tâm đến mô hình này, hãy liên hệ với chúng tôi CHÚNG TÔI LÀM theo hotline 0938896767 - 02438168888 Hưởng lợi từ lời khuyên của các chuyên gia giàu kinh nghiệm.