Tư vấn thiết kế mẫu nhà 4 × 20 đẹp tại Lào Cai NDNC4144
Chủ sở hữu của 4 × 20 đẹp. mô hình nhà Khi liên hệ với Nhà Đẹp, anh bày tỏ mong muốn anh chị muốn xây cho mình một ngôi nhà phù hợp với mảnh đất mình đang có, vì mặt tiền nhà nhỏ nên gia đình khá lo lắng về việc hạn chế công năng. khi đang sử dụng. Với công năng ngôi nhà mong muốn có đầy đủ các loại không gian, 3 phòng ngủ; Về ngoại thất thì hơi sinh động, nổi bật giữa phố với quá nhiều mẫu nhà khác nhau, ngoài ra bạn cũng muốn có một ngôi nhà cấp 4 giá rẻ, phù hợp với điều kiện kinh tế của gia đình.
Đáp ứng nhu cầu và yêu cầu của khách hàng, Thiết Kế Xây Dựng Nhà Đẹp đưa ra mẫu nhà cấp 4 gác lửng trên diện tích đất 4x20m đáp ứng tối đa các tiêu chí mà khách hàng đưa ra, các bạn cùng tìm hiểu qua bài viết dưới đây nhé.
Thông tin chung
- Chủ đầu tư: Anh Tùng
- Địa điểm xây dựng: Lào Cai
- Diện tích nhà: 4,4 × 19,5m
- Diện tích xây dựng toàn sảnh: 65m
- Tổng kinh phí xây dựng dự kiến: 650 triệu đồng
Phối cảnh 3D mẫu nhà 4x20m đẹp

Nổi bật trong thiết kế của mẫu nhà 4 × 20 m đẹp này là bức tường gạch bông gió lấy cảm hứng từ phòng triển lãm tại Đống Đa, Hà Nội. Thiết kế gạch xi măng gió giải quyết vấn đề điều hòa không khí, thông gió tự động giúp ngôi nhà thêm sinh khí tự nhiên. Vào những ngày hè nắng nóng, gạch cản gió tạo bóng râm dù ánh nắng gay gắt, giúp ngôi nhà luôn thông thoáng, mát mẻ. Ngoài tác dụng điều hòa vi khí hậu, các chi tiết gạch bông gió còn mang tính thẩm mỹ cao, bỏ xa những bức tường kín đáo truyền thống. Vào ban đêm, ánh đèn vàng khiến ngôi nhà trở nên lung linh, trông như một chiếc đèn lồng nhỏ giữa xóm.
Cửa chính khá rộng rãi, rộng 2,8m lắp cửa kính cường lực khung nhôm là loại cửa sử dụng vật liệu mới hiện đại tạo điều kiện cho ánh sáng tự nhiên vào nhà, bền đẹp, thẩm mỹ cao. Đây là loại cửa có nhiều ưu điểm, giá thành không cao mà lại rất phù hợp với mức chi phí bình dân.

Thiết kế của mẫu nhà đẹp 4 × 20 không quá cầu kỳ, ngoại trừ sự sáng tạo trong việc sử dụng gạch bông gió, những mảng tường đơn giản không có nhiều chi tiết trang trí là thiết kế hiện đại theo phong cách kiến trúc hiện đại. Chủ nghĩa tối giản bắt kịp xu hướng mới nên bạn sẽ không phải lo ngôi nhà của mình bị lỗi mốt, lạc hậu.
Sơn nhà màu trắng để làm nổi bật ngôi nhà mang phong cách phương Tây đầy lãng mạn và tinh tế. Sơn nhà màu trắng cũng là nền tảng giúp làm nổi bật các chi tiết nội thất một cách ưu việt nhất. Mặt bên ngôi nhà được trang trí bằng những mảng bê tông sơn màu tối tạo điểm nhấn cho mẫu nhà cấp 4 gác lửng. Trước nhà là cụm hoa khu vực tường gạch bông gió trang trí cho cổng đẹp.
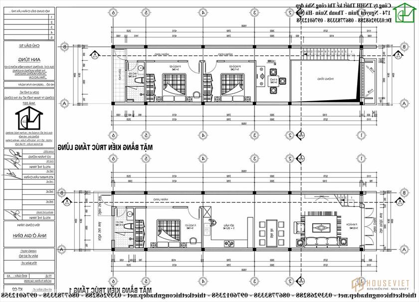
Mặt bằng công năng sử dụng

tầng 1: Đặc điểm của mẫu nhà cấp 4 có gác lửng này có mặt tiền 4,4m và sâu 19,5m nên có thể coi đây là một ngôi nhà ống. Với thiết kế nhà ống, công năng sử dụng không thể phân bố theo chiều ngang mà lần lượt kéo dài theo chiều dài. Bước từ sảnh chính vào là phòng khách rộng 22,4m2. Cầu thang lên tầng lửng được phòng khách khéo léo đặt trong góc gọn gàng. Tiếp đến là phòng ăn rộng rãi liền kề phòng khách. Ngăn cách 2 phòng bạn có thể sử dụng vách ngăn CNC đa dạng về mẫu mã, chủng loại với tính thẩm mỹ cao mà giá cả phải chăng. Sau đó là phòng bếp, phòng ngủ và cuối cùng là khu vệ sinh chung tiện lợi. Phía sau nhà còn mở một cửa phụ ra phía sau là khu vườn nhỏ của gia đình, đáp ứng thực phẩm sạch hàng ngày.
Tầng lửng: Bố trí phòng thờ ở đầu cầu thang để khi khách vào nhà có thể vào thăm quan khu thờ cúng mà không cần qua phòng ngủ riêng của gia đình. Tiếp đến là 2 phòng ngủ diện tích 11 và 13m2. Khu vệ sinh chung vẫn được bố trí cuối nhà, tiếp giáp với khu vực sân phơi phía sau.
Mẫu nhà đẹp 4 × 20 được thiết kế tại Lào Cai đã được khách hàng yêu thích và vô cùng hài lòng. Đối với một đơn vị thiết kế và thi công nhà như Nhà Đẹp thì việc thiết kế đáp ứng được mong muốn của khách hàng chính là thành công lớn nhất. Nếu bạn có nhu cầu thiết kế và xây nhà hãy liên hệ với chúng tôi để được tư vấn tận tình.
Xem thêm những mẫu nhà cấp 4 đẹp trong năm nay:
- Mẫu nhà cấp 4 mái thái đẹp nhất năm.
- Các mẫu nhà cấp 4 mái bằng nhỏ đẹp giá rẻ năm 2020
- Top 6 mẫu nhà cấp 4 có gác lửng đẹp mà bạn hằng mong ước
- Mẫu thiết kế nhà cấp 4 phong cách Mỹ hiện đại 11x15m
- Mẫu thiết kế nhà cấp 4 có gác lửng hiện đại
- Mẫu thiết kế nhà cấp 4 70m2 đẹp, hiện đại ở Hà Tĩnh
- Thiết kế biệt thự 2 tầng
- Thiết kế biệt thự cổ điển
- Nhà phố 2 tầng