Tư vấn thiết kế mẫu nhà cấp 4 100m2 tại Nam Định NDNC4120
Để xây dựng một mẫu nhà 3 phòng ngủ, 1 phòng khách và 1 bếp - ăn đòi hỏi bạn phải có mảnh đất rộng ít nhất là 100m2 và kinh phí dự kiến khoảng 600 triệu. Bởi diện tích - công năng - giá thành là 3 yếu tố có quan hệ mật thiết với nhau và không thể tách rời. Nhà xây quá nhỏ sẽ không đảm bảo công năng 3 phòng ngủ và tương tự, đầu tư quá ít tiền sẽ không đủ mua vật tư, nhân công để xây nhà. Tuy nhiên, cùng một số tiền, cùng một mảnh đất, có người xây được nhà đẹp, có người xây mẫu chưa ưng ý. Vậy bí quyết của những người sở hữu mẫu nhà đẹp là gì? Câu trả lời sẽ được bật mí với ví dụ cụ thể về mẫu nhà cấp 4 100m2 của gia đình anh Thắng ở Nam Định. Chúng ta hãy cùng nhau tìm lời giải cho vấn đề này.
Thông tin mẫu nhà cấp 4 100m2 tại Nam Định
Cũng như nhiều chủ đầu tư khác, anh Thắng gặp không ít khó khăn ngay từ những bước đầu tiên xây nhà. Thật khó khăn khi bạn không biết lựa chọn mẫu nhà nào. Bởi với nhu cầu xây nhà 3 phòng ngủ diện tích 100m2 của anh sẽ có rất nhiều lựa chọn như nhà cấp 4 mái thái, nhà cấp 4 mái bằng, nhà gác lửng, nhà hiện đại, tân cổ điển. nhà cổ điển, ... rất nhiều. , đến mức khiến anh ấy bối rối trong việc quyết định chọn mẫu xe nào phù hợp với gia đình mình.
Biết đến Nhà Đẹp trong một lần tình cờ tham quan các mẫu nhà trên các trang mạng xã hội, qua chia sẻ chúng tôi được biết anh vô cùng ấn tượng với các mẫu nhà cấp 4 của Nhà Đẹp nên đã liên hệ với đội. đội ngũ tư vấn. May mắn hơn rất nhiều so với những gia chủ khác khi có đội ngũ nhân viên tư vấn nhiệt tình, có nhiều năm kinh nghiệm trong nghề trực tiếp hướng dẫn và giám sát, anh Thắng vô cùng hài lòng khi liên hệ với chúng tôi để được tư vấn. Thiết kế bản vẽ của riêng bạn. Anh quyết định chỉ thuê người thiết kế, còn việc xây dựng sẽ do anh tự lên kế hoạch. Thật tiếc khi Nhà Đẹp không phải là đơn vị thi công trực tiếp cho công trình nhưng chúng tôi luôn tự hào là người đặt nền móng đầu tiên cho công trình và luôn theo sát ngôi nhà cho đến khi hoàn thành.
Một số thông tin về mẫu nhà cấp 4 100m2
- Chủ đầu tư: Anh Thắng
- Địa điểm xây dựng: Nam Định
- Diện tích nhà: 9x12m
- DTXD: 108m2 (bao gồm sảnh)
- Công năng: 1 phòng khách, 1 bếp-ăn, 3 phòng ngủ (1 phòng chính), 1 vệ sinh chung
- Kinh phí dự kiến: 600 triệu đồng
- KTS: Phạm Văn Chính
| Tên các phòng | Diện tích | Đơn vị | 
| Trước hiên nhà | 6,58 | m2 | 
| Phòng khách - phòng thờ | 20,5 | m2 | 
| Bếp - ăn | 13,5 | m2 | 
| Phòng ngủ 1 | mười | m2 | 
| Phòng ngủ 2 | mười | m2 | 
| Phòng ngủ 3 (phòng chính) | 16 | m2 | 
| Phòng vệ sinh | 6,7 | m2 | 
| toàn bộ khu vực | 108 | m2 | 
| Giá xây dựng dự kiến | 600 | triệu | 
Phối cảnh 3D mẫu nhà cấp 4 100m2

Tham khảo: Biệt thự cổ điển
Khi bắt tay vào thiết kế, có một bài toán khó đối với anh Thắng là lựa chọn có sân vườn hay bỏ đi. Đó là lý do tại sao chúng tôi cung cấp cho bạn cả hai phương án thiết kế, được xây dựng trên 3D cụ thể và chi tiết. Ý tưởng thiết kế là vô cùng quan trọng, nhưng việc bạn mô hình hóa ý tưởng đó thành sản phẩm cụ thể còn quan trọng hơn. Và đội ngũ kiến trúc sư của Nhà Đẹp chính là người giúp bạn thực hiện những điều này.
Thuê thiết kế là bí quyết được các chủ đầu tư áp dụng khi muốn có một công trình đẹp - giá cả phải chăng - đảm bảo chất lượng. Bởi vì khi bạn thuê một nhà thiết kế, bạn sẽ có:
- Bản vẽ 3D thực tế, chi tiết
- Nhận lời khuyên từ những người có kinh nghiệm
- Chỉnh sửa bản vẽ miễn phí
- Một hồ sơ thiết kế bao gồm: phối cảnh 3D, bản vẽ nội thất, hồ sơ điện nước và dự toán chi phí. Những điều đó sẽ giúp bạn xây nhà đẹp rẻ, giảm thiểu chi phí.

Tham khảo: Nhà cấp 4 mái bằng
Quay trở lại với mẫu nhà cấp 4 của gia đình anh Thắng, lựa chọn cuối cùng của anh là phương án không có sân vườn, thiết kế theo phong cách hiện đại và mẫu nhà mái bằng. Với đặc điểm như vậy, thiết kế mặt tiền khá đơn giản. Chúng tôi có được điểm nhấn cho ngôi nhà từ cách phối màu. Màu vàng làm chủ đạo kết hợp với màu trắng tạo nên vẻ đẹp trang nhã, gần gũi mang đậm hình ảnh nhà cấp 4 nông thôn.

Do hai bên nhà sát nhà hàng xóm nên gia chủ đã tính đến phương án sân vườn để tránh cho ngôi nhà cảm giác trống trải, hiu quạnh. Tuy nhiên, do diện tích sân quá nhỏ nên gia chủ quyết định dỡ bỏ phần sân vườn và thay vào đó là hai chú gà trống hoa trước nhà để tăng tính thẩm mỹ. Gạch đá giả cổ được sử dụng để giảm bớt sự nặng nề của khối bê tông và giúp ngôi nhà trở nên sang trọng và cuốn hút hơn. Về phần cửa, chúng tôi sử dụng toàn bộ hệ thống cửa nhôm kính để tận dụng tối đa ánh sáng và gió tự nhiên vào nhà.
Phương án thiết kế nhà cấp 4 có sân vườn
Mặc dù phương án thiết kế thứ 2 không được gia chủ lựa chọn nhưng chúng tôi vẫn muốn giới thiệu đến các bạn trong bài viết để xem đây có phải là phương án mà mình tìm kiếm bấy lâu nay. Việc bổ sung hệ thống sân vườn góp phần quan trọng tạo nên đời sống tinh thần cho các thành viên. Sống trong không gian xanh giúp các thành viên có cuộc sống thư thái, giúp giải tỏa căng thẳng và tạo không khí thoáng đãng cho ngôi nhà.



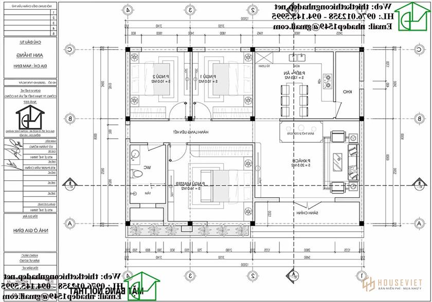
Mặt bằng bố trí công năng
Công năng sử dụng của ngôi nhà được định hình ngay từ ban đầu trong thiết kế để từ đó tính toán được tính khả thi của dự án. Với diện tích 100m2, ngôi nhà của gia chủ được chia thành 1 phòng khách, 1 phòng bếp - ăn và 3 phòng ngủ (1 phòng master). Có thể thấy rõ diện tích của từng phòng cũng như cách sắp đặt đồ đạc trong bản vẽ thiết kế dưới đây.

Hình ảnh thực tế thi công nhà cấp 4 mái bằng
Đây là những hình ảnh thi công thực tế của sản phẩm sau khi thi công và hoàn thiện. Mời các bạn cùng tham khảo và cho mình đánh giá về sản phẩm này. Cảm ơn mọi người




Hi vọng những chia sẻ của chúng tôi trong bài viết đã giúp ích được nhiều cho bạn trong quá trình lên ý tưởng và thiết kế nhà. Nếu còn khó khăn hãy liên hệ ngay với Nhà Đẹp để nhận được sự hỗ trợ tốt nhất.
- Mẫu nhà cấp 4 3 phòng ngủ 100m2 đẹp ở Thái Bình NDNC4121
- Các mẫu nhà cấp 4 gác lửng đẹp năm 2021
- https://thietkethicongnhadep.net/mau-nha-dep/biet-thu-2-tang/
- Mẫu thiết kế nhà phố 3 tầng 7x20m kết hợp kinh doanh NDNP3T50
 
  
  
 ![[CẬT NHẬT!!!] 400+ Mẫu nhà vuông 3 tầng vượng khí với dòng chảy tuần hoàn (P2)](https://cdn.houseviet.vn/images/news/19042022/132948532019224198-m.png) 
 