Tư vấn thiết kế mẫu nhà phố 3 tầng 4,5x15m hiện đại NDNP3T46
Sở hữu mặt tiền 4,5m ngôi nhà phố 3 tầng đẹp lý tưởng cho gia đình 4 người sinh sống. Với phong cách hiện đại hướng tới không gian mở thoáng mát, Mẫu nhà phố 3 tầng 4,5x15m Được thiết kế cho gia chủ ở Thái Bình, mang đến một làn gió mới cho kiến trúc nơi đây. Bây giờ chúng ta cùng tìm hiểu nhé!
Sau khi tham khảo nhiều đơn vị thiết kế, gia chủ đã quyết định lựa chọn công ty thiết kế và thi công nhà đẹp. Sau khi trao đổi với anh, kiến trúc sư của nhà đẹp đã trực tiếp đến đo đạc và khảo sát hiện trường. Với số lượng thành viên là 4 người, anh muốn có một không gian thoáng đãng với thiết kế trẻ trung.
Thông tin mẫu nhà phố 3 tầng 4,5x15m
Chủ đầu tư có tích hợp phòng khám nha khoa tại nhà nên mong muốn có không gian thoải mái cho cả gia đình sinh hoạt và khách hàng khi đến khám. Cùng Hacy theo dõi mẫu nhà đẹp qua bài viết và thông tin dưới đây nhé!
- Chủ đầu tư: Anh Du
 - Vị trí: Thái Bình
 - Diện tích sàn 1: 67,5m2
 - Diện tích tầng 2: 73m2
 - Diện tích tầng 3: 53m2
 - Tổng diện tích xây dựng: 193,5m2
 - Tổng kinh phí dự kiến: 1 tỷ đồng
 
Chi tiết mẫu nhà phố 3 tầng 4,5x15m
Sau khi nhận được nhu cầu của gia chủ, chúng tôi đã họp bàn và lên phương án thiết kế để đáp ứng khách hàng một cách tốt nhất. Không chỉ hướng đến phong cách hiện đại trẻ trung mà khách hàng của chúng tôi còn mong muốn một không gian mở và thoáng mát.

Mặt tiền nhà phố 3 tầng hiện lên với những khối kiến trúc vuông vắn, khỏe khoắn theo phong cách hiện đại. Thay vì những đường nét dập khuôn, thiết kế ngôi nhà mang vẻ đẹp phóng khoáng. Mặt tiền còn được kết hợp với nhiều vật liệu hiện đại khác nhau mang đến sự mới lạ và ấn tượng.
Nói đến chất liệu thì tất cả đều hướng đến sự thông thoáng, đảm bảo sự hài hòa của thiên nhiên giữa nội và ngoại thất. Cửa kính cường lực cao cấp khung nhôm đảm bảo an toàn cho gia chủ cũng như giúp tràn ngập ánh sáng vào nhà, mang đến nguồn năng lượng tự nhiên, dồi dào. Các lam gỗ được bố trí ở tầng 2 và tầng thượng vừa tăng tính thẩm mỹ cho ngôi nhà vừa cung cấp đủ ánh sáng cho không gian, không quá gắt và cũng tránh được tình trạng thiếu sáng.

Ngoài ra, chúng tôi còn khéo léo lồng ghép gạch bông gió lên tầng 2. Loại gạch này rất bắt mắt, tạo nét mềm mại cho công trình thay cho các loại gạch ốp tường khác, gió lưu thông dễ dàng. Giúp lưu thông không khí cả ngày lẫn đêm.
Thật thiếu sót nếu bỏ qua không gian xanh cho ngôi nhà của bạn. Chúng tôi tận dụng mọi không gian thoáng để bố trí những cây xanh có thể trồng được. Từ cửa sổ hành lang tầng 2 cho đến ban công tầng 3, tất cả đều được bàn tay của kiến trúc sư xinh đẹp bố trí một cách hợp lý và thẩm mỹ nhất.

Hướng đến vẻ hiện đại và trẻ trung, màu trắng trung tính của tường kết hợp hài hòa với cam và nâu tạo nên vẻ đẹp tràn đầy năng lượng, bởi màu cam luôn mang đến sự lạc quan, vui vẻ. Cùng với đó là đá hoa cương ốp mặt tiền tầng 1, bởi đá hoa cương không chỉ giúp tường sạch trong mọi thời tiết mà còn rất sang trọng, phù hợp với kiến trúc tổng thể của ngôi nhà.
Tiện ích

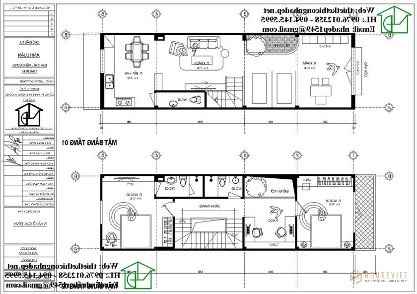
tầng 1Diện tích không quá nhiều nhưng gia chủ muốn tạo ra một không gian mang đến sự tích cực cho cả khách hàng và các thành viên trong gia đình. Vì vậy chúng tôi đã thiết kế một phòng khám tiện nghi ngay cửa ra vào. Để mang đến một không gian thoải mái nhất, chúng tôi khéo léo lồng ghép các tiểu cảnh, ca rô nhỏ giữa phòng khám và phòng khách. Khoảng xanh khá nhỏ nhưng mang lại sự thông thoáng cho tầng một. Đi sâu vào là phòng khách, phòng ăn và phòng bếp tiện nghi, bên cạnh là phòng vệ sinh chung.
tầng 2: Diện tích tầng 2 có 2 phòng ngủ trong đó có 1 phòng ngủ master dành cho bố mẹ có phòng vệ sinh riêng, 1 phòng học rộng rãi bên ngoài. Phòng tắm chung nằm đối diện với hành lang trên lầu.

Tầng 3: 1 phòng ngủ vệ sinh khép kín, 1 phòng giặt, 1 phòng thờ cạnh sân phơi. Giếng trời được thiết kế xuyên suốt 3 tầng mang lại nguồn sáng thông thoáng cho từng không gian.
Mẫu thiết kế nhà hoàn toàn đáp ứng được mọi yêu cầu của gia chủ, có lẽ vì vậy ngay khi nhận nhà Mẫu nhà phố 3 tầng 4,5x15m Với đầy đủ hồ sơ thiết kế, gia chủ đã hài lòng ngay và muốn xây dựng càng sớm càng tốt. Nếu bạn yêu thích mẫu thiết kế nhà này hoặc đang có nhu cầu tư vấn các mẫu nhà phố 2 tầng, 3 tầng, 4 tầng khác thì hãy liên hệ ngay với Nhà Đẹp để chúng tôi hân hạnh được tư vấn cho bạn. Xin chân thành cảm ơn!
>> Xem thêm các mẫu nhà phố 3 tầng hiện đại của Nhà Đẹp nhé các bạn:
- Nhà phố 3 tầng 4x18m 3 phòng ngủ tại Thái Bình
 - Mẫu nhà ống 3 tầng 5x17m tiện nghi tại Hải Phòng
 - Mẫu nhà phố 3 tầng 5x13m mái bằng tại Quảng Ninh
 - Mặt tiền nhà phố 5m 3 tầng ấn tượng tại Hưng Yên NDNP3T47
 - Dự trù kinh phí và diện tích cần chuẩn bị khi xây nhà 2 tầng 4 phòng ngủ
 - https://thietkethicongnhadep.net/mau-nha-dep/biet-thu-2-tang/
 - https://thietkethicongnhadep.net/mau-nha-dep/biet-thu-co-dien/