Tư vấn thiết kế nhà ống 3 tầng 3 × 15 m có mặt tiền hẹp nổi bật giữa phố
Mẫu thiết kế nhà ống 3 tầng 3x15m hiện đang là một trong những xu hướng mới trong kiến trúc đô thị hiện đại. Bởi khi diện tích đất ngày càng hạn hẹp và cần có không gian riêng thì những ngôi nhà như thế này càng được nhiều người quan tâm. Tuy nhiên, việc thiết kế một mẫu nhà có mặt tiền hẹp vừa đáp ứng được giá trị thẩm mỹ cao vừa đảm bảo công năng sử dụng tối ưu không phải là điều dễ dàng.
Nhưng đừng lo lắng, chúng ta hãy đi CHÚNG TÔI LÀM Hãy tham khảo những giải pháp thiết kế hữu ích trong bài viết dưới đây, để dù bạn có một không gian mặt tiền khiêm tốn cũng trở nên thoáng đãng, tiện nghi và sang trọng.
Gợi ý phương án thiết kế cho mẫu nhà ống 3 tầng 3 × 15 m có mặt tiền hẹp trở nên nổi bật hơn
Nhà hình ống 3 tầng mặt tiền hẹp thường được xây dựng với kích thước mặt tiền hạn chế là nhỏ và hẹp hơn so với chiều sâu. Cụ thể, những ngôi nhà có kích thước mặt tiền dưới 3,5m được cho là hẹp, chẳng hạn như Mẫu thiết kế nhà ống 3 tầng 3x15m.
Mặt tiền là yếu tố đầu tiên phản ánh tính thẩm mỹ của cả ngôi nhà. Tuy nhiên, những ngôi nhà mặt tiền hẹp lại đòi hỏi sự tinh tế và khéo léo hơn rất nhiều so với những ngôi nhà có mặt tiền rộng. Đứng trước vấn đề này, các kiến trúc sư đã không ngừng nghiên cứu và đưa ra những phương án thiết kế hiệu quả và tối ưu nhất. Đặc biệt, xu hướng thiết kế nhà mặt tiền hẹp hiện đại hướng đến sự đơn giản nhưng thông thoáng đang rất được ưa chuộng. Bên cạnh đó, còn rất nhiều giải pháp hữu ích khác bạn có thể tham khảo bên dưới.
Mẫu thiết kế nhà ống 3 tầng 3x15m phong cách hiện đại
Thực tế, kiến trúc cổ điển, tân cổ điển thường đề cao sự chi tiết, cầu kỳ, trau chuốt trong thiết kế nên cần những không gian rộng vừa phải để có chỗ trưng bày. Vì vậy, những phong cách này sẽ không phù hợp với những công trình nhà ống, mặt tiền hẹp, diện tích nhỏ.

Vì vậy, phong cách hiện đại sẽ là “trái tim” của những ngôi nhà có mặt tiền hẹp. Phong cách kiến trúc này sẽ chú trọng đến hình khối, nhấn mạnh các phòng, hình học thẳng, phẳng… nên phù hợp với những ngôi nhà có kích thước mặt tiền hạn chế. Đồng thời, thiết kế này còn giúp mở rộng diện tích sử dụng cho công trình.
Tạo không gian xanh gần gũi với thiên nhiên
Một ý tưởng tuyệt vời khác cho những ngôi nhà phố mặt tiền hẹp là tạo ra những khoảng xanh mới. Đây cũng là xu hướng thiết kế nhà được nhiều gia chủ muốn lựa chọn. Không gian xanh không chỉ tạo sự ấm cúng, thoải mái mà còn giúp nâng tầm thiết kế và bố trí kiến trúc của công trình. Khoảng xanh cũng được tận dụng trên ban công, hoặc các mảng tường bên ngoài để trồng cây, giúp mặt tiền ngôi nhà có thêm điểm nhấn và khoe được thiết kế tiện nghi mới.
Sử dụng chất liệu kính để tạo độ thoáng cho không gian
Vật liệu kính ngày càng được sử dụng nhiều trong trang trí ngoại thất, đặc biệt là với các thiết kế nhà phố, nhà ống. Không chỉ được ứng dụng trên những ngôi nhà mang phong cách hiện đại mà ngay cả trong những thiết kế nhà tân cổ điển, cổ điển… chất liệu này cũng rất được ưa chuộng.
Với những mặt tiền hẹp như những mẫu nhà ống 3x15m 3 tầng thì kính chính là cứu cánh, mang lại hiệu quả tuyệt vời giúp xóa tan cảm giác chật chội. Bạn có thể tận dụng những ưu điểm của vật liệu kính để tạo độ mở trên không gian của ngôi nhà (kính làm vách ngăn, cửa đi, cầu thang…).
Tham khảo thêm các mẫu thiết kế nhà ống 3x15m 3 tầng đẹp hiện đại
Nếu bạn đang sở hữu lô đất nhỏ với mặt tiền hạn chế và cần tìm phương án thiết kế nhà hình ống phù hợp về thẩm mỹ, công năng, phong thủy và phù hợp với khả năng tài chính thì hãy tham khảo ngay sau đây. Mẫu thiết kế nhà ống 3 tầng 3x15m của chúng tôi bên dưới.
Mẫu nhà 1: Nhà ống 3 tầng 3x15m mái thái
Những ngôi nhà mái thái luôn ưu tiên những mặt tiền rộng rãi. Tuy nhiên, bằng sự khéo léo, các kiến trúc sư vẫn có thể tạo ra những mẫu thiết kế nhà mái thái trên những ngôi nhà có mặt tiền hẹp. Nếm thử Mẫu thiết kế nhà ống 3 tầng 3x15m Là một ví dụ khi có hệ thống mái Thái ở tầng 2 và tầng 3 hướng ra phía sau kết hợp với kiến trúc hiện đại đan xen. Hệ thống mái thái này đã mang đến một nét kiến trúc độc đáo cho thiết kế nhà hình ống. Hơn nữa, đặc điểm nổi bật của mặt tiền chính là hệ cổng kín đáo, được trang trí bằng các mái ngói phụ góp phần tạo nên vẻ đẹp cho công trình.

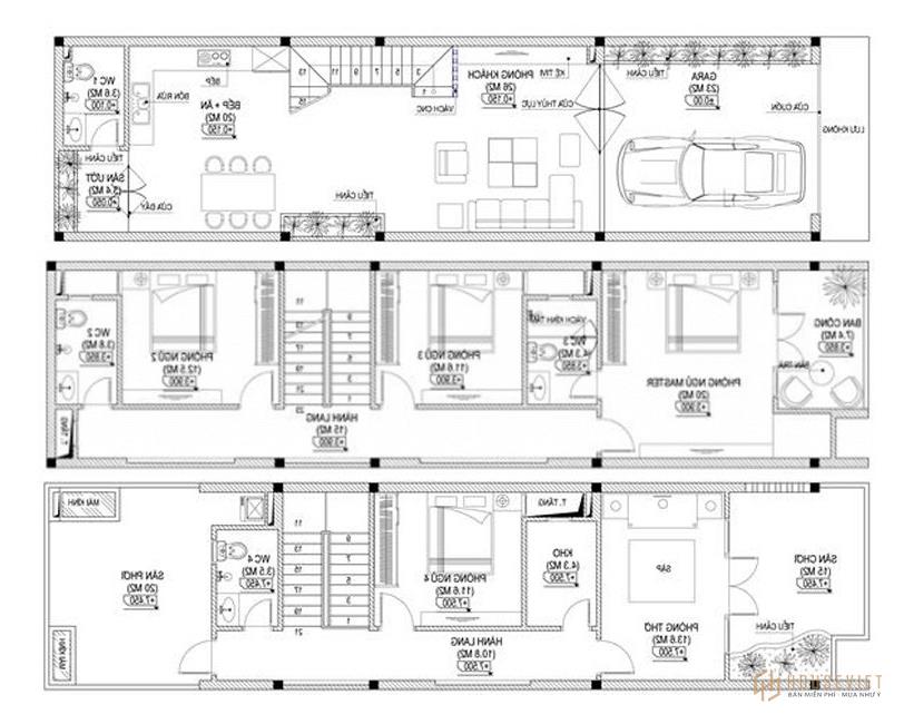
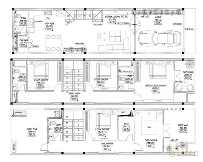
Công năng tầng 1 bao gồm các không gian chính như phòng khách, bếp ăn, phòng vệ sinh, phòng ngủ. Tại đây, các kiến trúc sư đã khéo léo bố trí không gian theo hoạt động của các thành viên. Phòng khách rộng và thoáng, tiếp đến là khu bếp nấu chuyên dụng. Khu vệ sinh chung được bố trí giữa các khu vực chức năng cần thiết, nhằm thích ứng với sự vận động của cuộc sống trong ngôi nhà. Ngoài ra còn có phòng ngủ ông bà riêng để ông bà không phải leo trèo giúp việc di chuyển dễ dàng.
Tầng 2 là không gian dành riêng cho việc nghỉ ngơi của bố mẹ và các con. Cả tầng dùng chung một nhà vệ sinh phía trước cầu thang. Trên tầng 3 của ngôi nhà có một sân thượng rộng. Phòng thờ đủ ánh sáng, là nơi gia tiên thể hiện lòng thành kính với tổ tiên. Phòng giặt và khu vực phơi đồ cũng được bố trí trên tầng này.

Mẫu 2: Nhà ống 3 tầng 3x15m không gian xanh hiện đại mái bằng
Với mặt tiền rộng 3m và dài 15m, Mẫu thiết kế nhà ống 3 tầng 3x15m Này mang phong cách hiện đại, bố cục hình khối mới. Mặt tiền tầng 2 trong khối vuông vắn được thiết kế chạy rộng hơn so với mặt tiền tầng 1 và tầng 3 tạo điểm nhấn độc đáo. Đặc biệt, hệ lam nhôm họa tiết trên mặt dựng mang đến vẻ đẹp thẩm mỹ độc đáo cho công trình. Ngoài ra, trần các tầng được xử lý bằng chất liệu gỗ kết hợp với đèn âm trần, đảm bảo ánh sáng vào ban đêm, thuận tiện khi sử dụng. Hơn nữa, các ban công được kết hợp với ban công trồng tiểu cảnh xanh, có bồn hoa tạo điểm nhấn ấn tượng cho mẫu nhà hình ống hiện đại.

Mặt bằng công năng của mẫu nhà này được bố trí như sau. Tầng 1 được dành làm không gian sinh hoạt chung. Hầm để xe được thiết kế phía trước, đảm bảo cho việc di chuyển được thuận tiện nhất. Gara được ngăn cách với phòng khách bên trong bằng cửa thủy lực đóng mở tự động, đảm bảo tránh được mùi xăng dầu, khói bụi. Bên cạnh các không gian chức năng: phòng khách ở vị trí trung tâm, gần gara. Cầu thang thông tầng nằm chính giữa giữa phòng khách và phòng bếp ăn bên trong. Khu vệ sinh chung được bố trí ở góc trong cùng của ngôi nhà, có sân ướt để tiện vệ sinh khi cần thiết.
Tầng 2 có 3 phòng ngủ. Phòng ngủ chính có không gian rộng, có vệ sinh độc lập, hướng ra ban công đón gió và ánh sáng. Phòng của hai con được thiết kế cạnh nhau, ngăn cách nhau bằng cầu thang thông tầng. Phòng vệ sinh chung tầng 2 cuối hành lang gần phòng ngủ 2.
Tầng 3 được bố trí đơn giản hơn với sân phơi rộng. Bên cạnh sân phơi là phòng thờ rộng rãi. Một phòng ngủ nhỏ dành cho khách qua đêm. Một kho nhỏ để đồ thờ được đặt giữa phòng ngủ và phòng tôn nghiêm. Phía cầu thang bên kia là khu vực phơi đồ, có đặt máy giặt và giàn phơi ở sân trong, có mái che tum. Nhà vệ sinh chung cạnh cầu thang, gần cửa ra sân phơi.

Mẫu nhà ống 3 tầng 3 × 15 m 3 tầng mái bằng kết hợp vừa ở vừa chuyên nghiệp
Thiết kế nhà mặt tiền hẹp cần chú ý đến tính thẩm mỹ của mặt tiền, nhất là đối với nhà ở kết hợp kinh doanh thì càng phải chú trọng hơn. Nếm thử Mẫu thiết kế nhà ống 3 tầng 3x15m Ấn tượng khi sử dụng hài hòa các yếu tố ánh sáng, vật liệu kính tạo nên tổng thể vẻ đẹp hiện đại, hoàn thiện cho không gian kiến trúc ngoại thất. Cây xanh trang trí được bố trí khéo léo trên từng tầng tạo điểm nhấn sinh động, mang đến vẻ đẹp trang nhã, sang trọng cho ngôi nhà.

Về mặt bằng và công năng, tầng 1 của ngôi nhà được dùng để mở tiệm kinh doanh tiệm tóc. Vì vậy, toàn bộ mặt bằng tầng 1 được dành riêng cho khu vực kinh doanh này. Cuối nhà được bố trí thêm một nhà vệ sinh chung. Bên màu hồng là cầu thang dẫn lên tầng chung. Tầng 2 bố trí phòng khách và bếp ăn liên thông. Cầu thang được đặt ở giữa, ngăn cách với giếng trời thoáng mát. Phòng có phòng tắm riêng và ban công thoáng mát. Tầng 3 gồm 1 phòng ngủ, 1 phòng thờ và khu vui chơi. Nhìn chung, cách bố trí mặt bằng khá hợp lý phù hợp với những gia đình vừa và nhỏ.

Trên đây là giải pháp kiến trúc cho Mẫu thiết kế nhà ống 3 tầng 3x15m mà chúng tôi muốn chia sẻ với độc giả của chúng tôi. Xin vui lòng liên hệ CHÚNG TÔI LÀM Gọi ngay HOTLINE 0938896767 - 02438168888 để được tư vấn phương án thiết kế nhà đẹp và xây nhà đạt hiệu quả tối ưu đảm bảo chi phí đầu tư hợp lý.