Tư Vấn Thiết Kế Nhà Ống 70m2 Phong Cách Hiện Đại
Khuyên nhủ thiết kế nhà ống 70m2 đẹphiện đại cho gia đình anh Nam - Thái Bình.
Câu hỏi xin tư vấn:
“Xin chào Nội thất Đương đại!
Hiện tại gia đình tôi có mảnh đất diện tích 70m2. Tôi dự định xây nhà ống 3 tầng đơn giản, đầy đủ các phòng chức năng gồm: chỗ để xe, phòng khách, bếp, 3 phòng ngủ. Mong nhận được sự tư vấn của các KTS. Xin chân thành cảm ơn quý công ty! ”
Lời khuyên từ các kiến trúc sư
Xin chào Nam!Cảm ơn quý khách hàng đã tin tưởng lựa chọn Nội Thất Đương Đại. Dựa trên những thông tin cụ thể và yêu cầu mà bạn cung cấp, chúng tôi nhận thấy rằng với diện tích khu đất đó, mẫu thiết kế nhà ống Phong cách hiện đại sẽ là sự lựa chọn tốt nhất cho gia đình bạn. Chúng tôi sẽ cân nhắc và đưa ra phương án thiết kế phù hợp với nhu cầu của gia đình và đảm bảo không gian được thông thoáng. Sau đây là phương án thiết kế sơ bộ mời các bạn tham khảo.
Phương án thiết kế 70m2. nhà ống
Sơ đồ mặt bằng 1
Như yêu cầu 70m2. thiết kế nhà ống Đối với gia đình, tầng 1 được bố trí sân trước để tạo sự thông thoáng cũng như làm nơi để xe. Tiếp đến là phòng khách rộng rãi với nội thất hiện đại. Cầu thang thông tầng được thiết kế giữa nhà và tận dụng diện tích gầm cầu thang để làm khu vệ sinh chung. Ở phía sau sẽ là nhà bếp. Nội thất được trang bị đầy đủ, tiện nghi. Giếng trời ở phía sau, vừa giúp không gian bếp thông thoáng hơn, vừa đón được ánh sáng tự nhiên từ bên ngoài.

Mặt bằng tầng 2
Tầng 2 gồm 2 phòng ngủ, 1 phòng ngủ vợ chồng, 1 phòng ngủ con trai. Mỗi phòng đều có thiết kế nhà vệ sinh bên trong. Phòng ngủ 1 có ban công để đón gió và ánh sáng. Phòng ngủ 2 gần giếng trời, cũng rất thoáng mát.

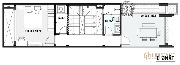
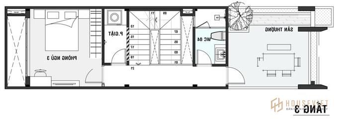
Mặt bằng tầng 3
Tầng 3 thiết kế 1 phòng ngủ gần giếng trời. Cạnh cầu thang có phòng giặt và phòng vệ sinh chung. Phía trước là sân chơi trồng nhiều cây xanh.

Phối cảnh kiến trúc 70m2. thiết kế nhà ống
Yêu cầu của gia đình anh Nam là có một không gian sống đơn giản, đầy đủ tiện nghi và hiện đại. Kiến trúc sư của Nội Thất Đương Đại đã lên phương án cụ thể với diện tích của ngôi nhà.
Tổng thể ngôi nhà hài hòa, nổi bật, trang nhã nhưng không kém phần sang trọng với tone màu trắng chủ đạo. Các tính năng độc đáo trong mô hình 70m2. thiết kế nhà ống Đây là sự kết hợp giữa các thanh ngang và thanh dọc ở mái nhà, lan can. Màu sắc cũng được sử dụng rất hài hòa. Làm cho ngôi nhà trở nên nổi bật.
Bên cạnh đó, trên nền sơn trắng chủ đạo, các kiến trúc sư đã sử dụng chất liệu đá ốp tường. Nhờ đó, tính thẩm mỹ càng được nâng cao.
Với mong muốn mang đến cho gia đình một không gian thoáng mát, kiến trúc sư đã lựa chọn lối kiến trúc mở với các khoảng thông gió và ánh sáng hợp lý.

Một số cách bố trí nội thất cho các căn phòng tham khảo
Bố trí nội thất tầng 1
Mang phong cách hiện đại, mẫu phòng khách với gam màu nhẹ nhàng mang đến cảm giác thoáng đãng, rộng rãi và yên bình. Hãy chọn một bộ sofa màu xám với những chiếc gối có màu sắc và họa tiết nổi bật. Phòng khách trở nên sang trọng và đầy cuốn hút hơn.

Phòng bếp vẫn chọn màu trắng làm chủ đạo. Kết hợp với đó là bộ bàn ghế da vô cùng sang trọng. Tủ bếp được thiết kế theo hình chữ L. Nó vừa tiết kiệm diện tích vừa mang đến cho căn bếp vẻ đẹp rất hiện đại và trẻ trung.

Cách bố trí nội thất tầng 2
Tầng 2 của 70m2. thiết kế nhà ống gồm 2 phòng ngủ.
Phòng ngủ chính của vợ chồng anh được thiết kế sang trọng và nổi bật. Vẫn sử dụng tone màu trắng làm dây xuyên suốt ngôi nhà, kết hợp với sàn gỗ, thảm, giấy dán tường có màu sắc tương phản. Một không gian rất ấn tượng.

Phòng ngủ con trai đơn giản nhưng vẫn đầy đủ, tiện nghi. Căn phòng có giá sách, bàn học và tủ quần áo được thiết kế âm tường giúp tiết kiệm diện tích. Chăn ga gối đệm cũng được lựa chọn khéo léo để làm điểm nhấn cho căn phòng.

Cách thiết kế nội thất tầng 3
Phòng ngủ tầng 3 cũng được thiết kế đơn giản. Trong phòng có đầy đủ tiện nghi như tivi, tủ sách… Đây cũng được coi là phòng sinh hoạt chung của cả gia đình.

Một màu trắng được bao phủ cho toàn bộ phòng tắm. Sau một ngày làm việc và học tập mệt mỏi, đây chắc chắn là không gian lý tưởng để bạn có thể ngả lưng thư giãn.

Trên đây là những tư vấn của kiến trúc sư về 70m2. thiết kế nhà ống. Hi vọng những chia sẻ này sẽ giúp gia đình anh Nam lựa chọn được mẫu thiết kế phù hợp.
Nếu bạn có nhu cầu thiết kế những ngôi nhà đẹp, tiện nghi cho gia đình mình. Hãy liên hệ với chúng tôi để được tư vấn nhanh nhất!