Tư Vấn Thiết Kế Nhà Ống Mặt Tiền 4m Trọn Gói Theo Phong Thủy
Với sự chật chội, chật hẹp của đô thị ngày nay những ngôi nhà ống đã ra đời. Những ngôi nhà ống 4m thường gây nhiều khó khăn khi thiết kế nhà và trang trí nội thất. Nhưng nhờ các kiến trúc sư, mẫu nhà ống mặt tiền 4m vẻ đẹp xuất hiện. Sau đây, Nội Thất Đương Đại sẽ giới thiệu 5 mẫu nhà ống mặt tiền 4m siêu đẹp cho các bạn. Các mẫu nhà ống dưới đây đều có từ 3 phòng ngủ trở lên.
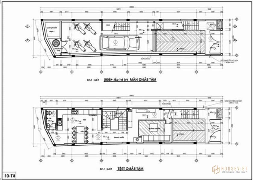
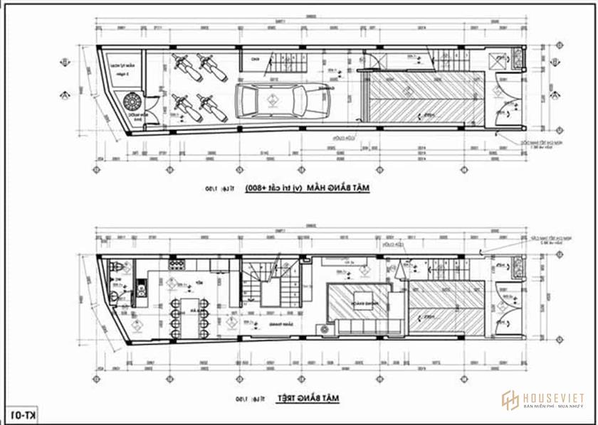
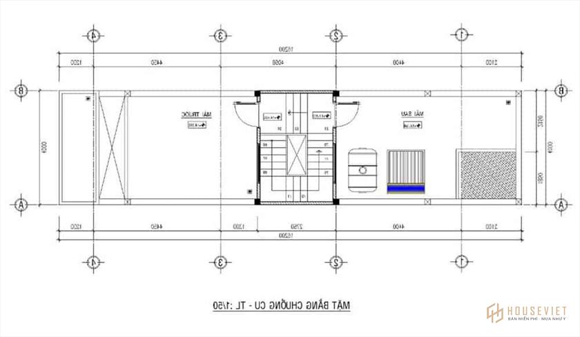
Mẫu thiết kế nhà ống mặt tiền 4m có tầng hầm để xe riêng.
Phối cảnh mặt tiền
Nhà ống có tầng hầm để xe cần được thiết kế đặc biệt hơn để đảm bảo kết cấu căn hộ. Vì vậy, kiến trúc sư đã tính toán kỹ lưỡng về kết cấu ngôi nhà và phong thủy của căn hộ. Bạn sẽ thấy cửa chính được làm một lối đi riêng dẫn lên tầng trệt của ngôi nhà ống. Khoảng rộng hơn 3m còn lại là lối lên xuống cho ô tô vào hầm. Thiết kế nhà ống 3 tầng và 1 tum theo phong cách hiện đại, đơn giản. Mặt tiền sơn toàn bộ màu trắng, sàn lát gạch giả gỗ màu nâu trầm. Màu nâu luôn có tác dụng cảm quan rất tốt, mang đến sự sang trọng và tinh tế cho ngôi nhà.

Mặt bằng chức năng
Với số lượng xe lớn, nhà xe có thể để được 1 ô tô và 4 xe máy. Do đó, gara trong nhà sẽ chật chội và mang lại cảm giác bí bách. Lúc này, nhà để xe là lựa chọn lý tưởng với hệ thống thông gió và bồn nước rửa xe. Toàn bộ tầng hầm được trang bị đầy đủ tiện nghi đảm bảo an toàn ra vào hầm và nhiệt độ phương tiện.

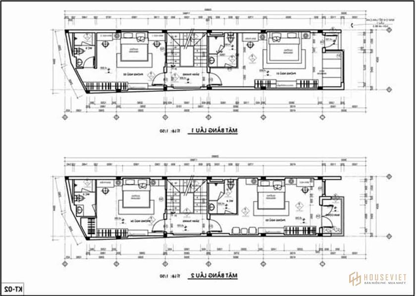
Tầng 1 với diện tích gần 100m2 được gia chủ dành toàn bộ không gian cho phòng khách và bếp ăn. Khu vực tiếp khách sang trọng được bố trí bộ sofa chữ L xa hoa. Tiếp theo là phòng ăn rộng rãi ấm cúng và nhà bếp tiện nghi. Lên đến tầng 2 và tầng 3 là phòng ngủ master siêu sang. Bạn sẽ choáng ngợp trước 4 phòng ngủ master rộng hơn 20m2 sang trọng. Mỗi phòng đều có giường Kingsize, WC riêng và cửa sổ đón gió.

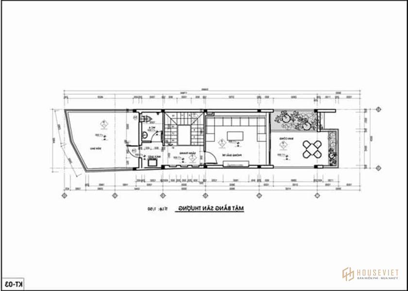
Tầng tum trên cùng được dùng làm phòng thờ và khu vui chơi của gia đình. Gia chủ đã để lại khoảng sân trước và sau diện tích hơn 50m2 để trồng cây đón gió mát. Phòng sinh hoạt chung là nơi giải trí của gia đình, ngay bên cạnh là phòng thờ uy nghi và nơi giặt giũ.

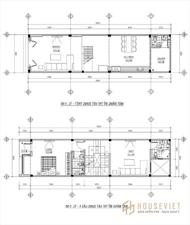
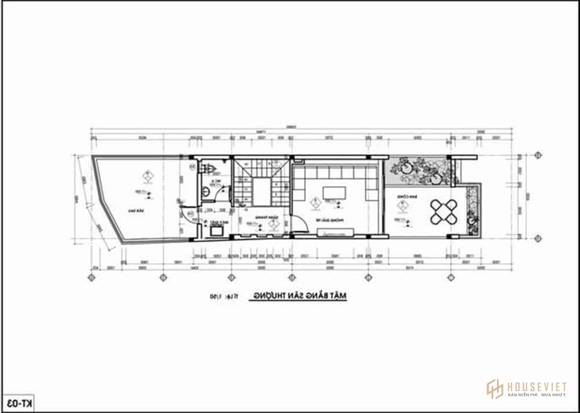
Mẫu thiết kế nhà mặt tiền 4m đơn giản nhưng tiện nghi
Phối cảnh mặt tiền
Nếu bạn không có nhiều kinh phí để xây nhà cao tầng thì mẫu nhà ống 4m này rất phù hợp với bạn. Chỉ hơn 600 triệu đồng là bạn đã sở hữu ngay nhà ống mặt tiền 4m với 4 phòng ngủ tiện nghi. Thiết kế mặt tiền của căn hộ không quá cầu kỳ, mái bằng để tiết kiệm chi phí. Phong cách kiến trúc đơn giản với mỗi tầng là một ban công nhỏ để đón gió. Mặt tiền tầng 1 được lát bằng đá hoa đen mang đến sự huyền bí và uy quyền cho căn hộ. Phần trên được sơn màu trắng xanh ngọc trang nhã và tinh khiết.

Mặt bằng chức năng
Thiết kế tầng 1 khá đơn giản, gia chủ dành 10m2 cho gara xe máy, ngăn cách với phòng khách bằng cửa kính. Bên trong là phòng khách và bếp khá rộng rãi với tổng diện tích là 60m2. Nhà mặt tiền 4m Điều này được đảm bảo bởi các kiến trúc sư. Phòng bếp nằm sâu trong nhà và không liên thông với phòng khách.

Ở tầng 2 và tầng 3 là không gian nghỉ ngơi của gia đình. Mẫu nhà ống đẹp mặt tiền 4m này không có phòng thờ hay các phòng sinh hoạt khác. Hai tầng là 4 phòng ngủ diện tích 15m2 có WC ngay trong phòng. Các phòng ngủ đều có ban công nhỏ hướng ra đường hoặc sân sau để đón gió.

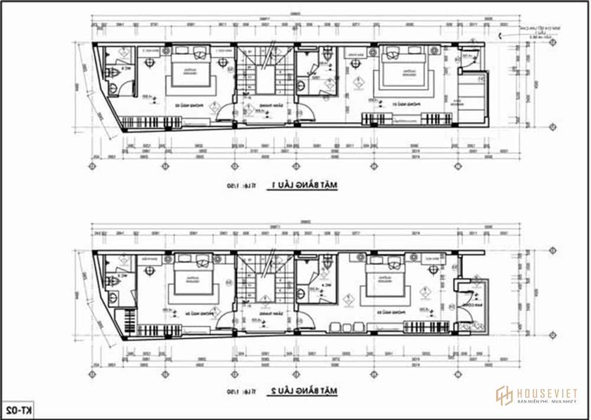
Thiết kế nhà ống 4 tầng mặt tiền 4m hoành tráng.
Phối cảnh mặt tiền
Với mặt tiền 4m, mẫu nhà này thực sự hoàn hảo với tính thẩm mỹ và tiện nghi vượt trội. Có thể thấy mặt tiền ngôi nhà được thiết kế theo phong cách hiện đại. Mặt tiền được lát bằng những viên gạch giả gỗ ngang nên về mặt thị giác, ngôi nhà ống trông rộng hơn. Vì mặt tiền hẹp nên kiến trúc sư đã mở nhiều cửa sổ để đón ánh nắng vào phòng. Tầng tum được thiết kế đơn giản với sân thượng trước sau rộng rãi để trồng cây, đón gió.

Mặt bằng chức năng
Với diện tích 60m2, tầng 1 được bố trí phòng khách, bếp và bàn ăn cho gia đình. Mỗi phòng có diện tích gần 20m2 nên gia chủ thoải mái bài trí nội thất theo ý thích. Tiếp đến là tầng 2, tầng 2 ngoài phòng ngủ master còn có phòng sinh hoạt chung. Căn phòng này có thiết kế giống như căn phòng khách thứ hai nhưng mang đến sự thoải mái và gần gũi hơn cho gia đình. Đây sẽ là nơi để cả gia đình quây quần, vui vẻ và trò chuyện cùng nhau sau một ngày làm việc.

Tầng 3 và 4 là khu vực nghỉ ngơi của gia đình với 3 phòng ngủ rộng. Các phòng ngủ này rất rộng rãi, có 1 phòng ngủ Master diện tích hơn 20m2. Các phòng đều có WC riêng nên rất tiện sử dụng. Tầng 4 còn bố trí 1 phòng thờ nhỏ có view đẹp làm nơi thờ cúng tổ tiên.

Trên tầng thượng xây thêm 1 tum nhỏ che cầu thang. Khoảng sân thượng rộng rãi chỉ được dùng để đặt bồn nước và trồng cây xanh. Đây sẽ là nơi tuyệt vời để ngắm cảnh và đón gió của gia đình.

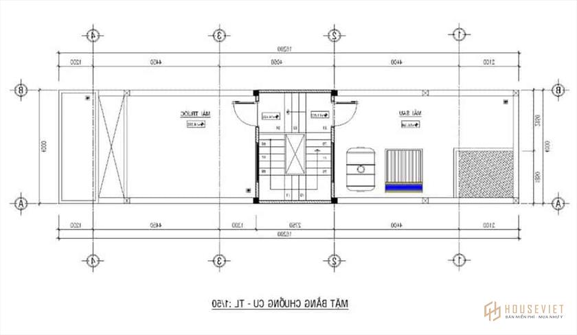
Mẫu nhà đẹp mặt tiền 4m đẹp sang trọng.
Phối cảnh mặt tiền
Bạn sẽ mê ngay mẫu thiết kế nhà ống mang tính thẩm mỹ cao này. Mặt tiền ngôi nhà được thiết kế đơn giản, hiện đại với không gian thoáng và tầm nhìn đẹp. Mỗi tầng đều có nhiều cửa sổ kính tạo tầm nhìn bao quát. Mặt tiền được sơn màu trắng và vàng nhạt tạo cảm giác trẻ trung nhưng không kém phần tinh tế. Các đường nét mạnh mẽ và thanh lịch trên thiết kế ngôi nhà làm cho căn hộ thực sự cá tính.

Công năng tầng 1 và tầng 2
Mặt bằng tầng 1 thể hiện 10m2 sân trước dùng làm chỗ để xe máy. Phòng khách hơn 16m2 có thiết kế sang trọng và hợp phong thủy. Hai bên tường phòng khách được trồng cây xanh, làm tiểu cảnh để tăng thêm sinh khí. Bước vào phòng bếp là bàn ăn ấm cúng và gần gũi của gia đình. 10m2 còn được tận dụng làm sân sau trồng cây giúp căn hộ mát mẻ hơn.

Công năng tầng 3 và tum
Tầng 2 và tầng 3 là 3 phòng ngủ của gia đình chủ nhà. Phòng của hai con thiết kế nhỏ nhưng rất tiện nghi và thoải mái cho các con học tập và nghỉ ngơi. Phòng thờ và phòng giặt được đưa lên tầng tum tạo không gian yên tĩnh và trang nghiêm hơn.

Này nhà ống mặt tiền 4m Trên đây đều là yếu tố thẩm mỹ và phong thủy. Nội Thất Đương Đại sẽ tư vấn cho bạn các vấn đề về phong thủy khi xây nhà. Điều này vô cùng quan trọng vì nó ảnh hưởng trực tiếp đến sự nghiệp và sức khỏe của gia đình bạn. Liên hệ với chúng tôi ngay hôm nay để có những lời khuyên hữu ích nhất.