Tuyển chọn 5 mẫu nhà cấp 4 có gác lửng hình chữ L đẹp được nhiều người yêu thích
Này mẫu nhà cấp 4 gác lửng Với thiết kế đơn giản, đầy đủ công năng luôn mang lại cảm giác ấm cúng khi trở về. Đồng thời, chi phí xây nhà không quá cao, phù hợp với kinh tế của nhiều người, thời gian thi công nhanh chóng nên mẫu nhà này được rất nhiều gia đình yêu thích. Trong bài viết này, CHÚNG TÔI LÀM sẽ chia sẻ đến các bạn những mẫu nhà cấp 4 đẹp để các bạn có thể tham khảo thêm.
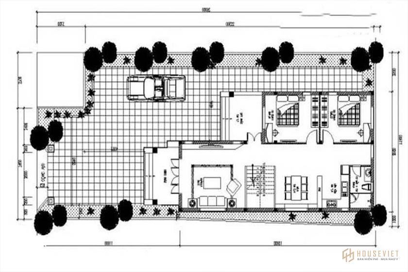
Mẫu nhà cấp 4 gác lửng hình chữ L mái bằng ấn tượng
Từ bên ngoài, mẫu nhà cấp 4 gác lửng Ấn tượng là hệ thống mái được giật cấp với tổng số lên tới 3 mái, gồm 1 mái chính và 2 mái phụ. Kiểu mái này mang lại sức sống cho ngôi nhà. Nhìn từ bên ngoài, nó giống như một tòa nhà 2 tầng thực sự. Toàn bộ ngoại thất sử dụng sơn trắng, đi kèm với mái và ốp chân tường màu xám. Hệ thống cửa được trang bị kính cường lực, đảm bảo khả năng lấy sáng, làm đẹp và an ninh, cải thiện bầu không khí sống bên trong ngôi nhà. Cửa và mái hiên cũng được bao phủ bởi màu đen xám tạo nên sự đồng nhất cho toàn bộ thiết kế nhà cấp 4 gác xép này.

Ở tầng trệt, từng không gian được phân bổ một cách khá rộng rãi, đảm bảo sự thoải mái sinh hoạt của gia đình. Từ bậc tam cấp dẫn vào cửa chính là phòng khách, được ngăn cách với bếp bằng cầu thang và hệ thống thanh lam trang trí. Khu vực bếp nấu được thiết kế kín đáo để các hoạt động nấu nướng diễn ra riêng tư và không ảnh hưởng đến không gian sinh hoạt chung. Gần đó là phòng ăn có cửa sổ thông ra bên ngoài nên rất thoáng và sáng. Cuối cùng là phòng ngủ với phòng vệ sinh chung.

Trên gác lửng là nơi đặt phòng thờ, 2 phòng ngủ và phòng vệ sinh chung. Mỗi phòng có diện tích vừa phải, đủ tiện nghi, đảm bảo cho khách nghỉ ngơi thoải mái.

Mẫu nhà cấp 4 có gác lửng hình chữ L cửa gỗ sang trọng.
Luật xa gần mẫu nhà cấp 4 gác lửng Ấn tượng với hình khối vuông vắn và đa dạng trên mặt tiền. Nhìn từ cửa sổ, cửa chính có hình chữ nhật nhất là mái nhọn được thiết kế cân đối, hài hòa về tỷ lệ không gian. Nhờ kiến trúc hình chữ L mà sảnh chính của gia chủ được thiết kế rộng hơn, giúp ngôi nhà hút nhiều vượng khí và đón ánh sáng dễ dàng hơn. Hệ thống cửa chính bằng gỗ kết hợp với mảng tường ốp đá ở chân tường đã tạo nên điểm nhấn cho ngôi nhà.

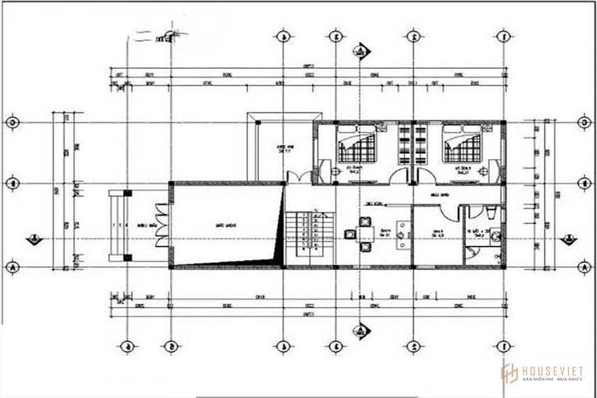
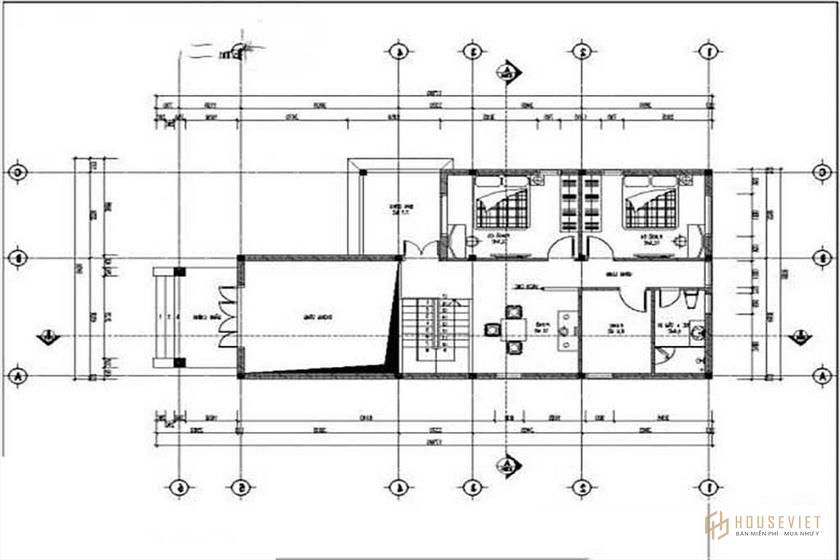
Mẫu nhà cấp 4 này có các phòng rộng rãi được phân bố ở tầng 1 và tầng lửng. Từ sảnh chính của mẫu thiết kế nhà cấp 4 đẹp bước vào là phòng khách. Sau đó đến phòng bếp + ăn. Bên trong là 2 phòng ngủ yên tĩnh thoáng mát.

Các phòng sinh hoạt khác như phòng thở, 1 phòng ngủ được bố trí cân đối hợp lý trên tầng lầu lừng lẫy. Khu này có giếng trời thoáng mát, nhìn ra tầng 1. Thiết kế không gian mở nên căn nhà luôn sáng sủa thoáng mát không khí và ánh sáng dịu nhẹ.

Mẫu nhà cấp 4 có gác lửng hình chữ L có sân vườn rộng rãi.
Mẫu Nhà Cấp 4 Có Tầng Lửng. Ấn tượng với sân trước rộng thoáng mát. Được ốp gạch xám cũng như hệ thống bồn hoa nhỏ xanh mát hai bên mang đến không gian thoáng mát, trong lành cho công trình. Sảnh chính được duy trì gọn gàng với cầu thang giật cấp, ốp đá tự nhiên màu nâu vàng sáng. Cùng với đó là hệ thống cột trụ vuông chống đỡ cho kết cấu mái cấp trên. Cửa chính làm bằng gỗ tự nhiên. Kết hợp với mảng tường ốp đá tự nhiên màu nâu xám, thanh gỗ hình mái tạo hiệu ứng đa chiều độc đáo.

tầng 1 mẫu nhà cấp 4 gác lửng Việc thiết kế các không gian tập trung khá khoa học và hợp lý. Từ sảnh chính vào trong là phòng khách, được thiết kế ngay cạnh cầu thang dẫn lên tầng lửng. Bên trong là bếp và bàn ăn, khu vệ sinh chung được bố trí ở góc cuối nhà. Ở góc chữ L là 2 phòng ngủ liền nhau.

Tầng lửng được thiết kế 2 phòng ngủ, cạnh cầu thang dẫn lên tầng lửng có phòng sinh hoạt chung. Phòng thờ được bố trí ngay cạnh không gian sinh hoạt chung, khu vệ sinh được bố trí ở góc trong cùng của gác lửng.

Mẫu thiết kế nhà cấp 4 có gác lửng chữ L nông.
Lựa chọn khối hình học vuông vắn cơ bản, kết hợp với thiết kế mái thái đỏ, mẫu nhà cấp 4 gác lửng Vẻ ngoài khá đơn giản nhưng vẫn toát lên vẻ sang trọng bề thế. Thiết kế mái dốc bao trùm toàn bộ ngôi nhà mang đến cảm giác bảo vệ vững chắc. Thiết kế từ mái đến tường có tác dụng chống phản quang, tạo khối hiệu quả. Được thiết kế theo ba giai đoạn, tăng thêm sự sang trọng cho ngôi nhà. Xung quanh nhà và trước sân là những bồn hoa trang trí, tô thêm màu sắc thiên nhiên cho không gian ngoài trời.

Tầng 1 của mẫu nhà cấp 4 có gác lửng gồm 1 phòng khách, 1 phòng bếp ăn, 1 phòng thờ và 2 phòng ngủ. Phòng khách, phòng thờ, phòng ngủ được ngăn cách với nhau bằng những thanh lam gỗ trang trí vừa tạo sự thông thoáng vừa tạo sự riêng tư cho không gian. Phòng ngủ chính bên trong được thiết kế tiện nghi bao gồm cả phòng tắm riêng. Khu bếp ăn được thiết kế cạnh chữ L. Từ bếp có lối đi dẫn ra sảnh phụ. Căn phòng còn có thiết kế cửa sổ lớn tạo độ mở và thông thoáng cho căn phòng.

Trên gác lửng là 2 phòng ngủ cho con được bố trí 2 bên cầu thang. Mỗi phòng đều được trang bị đầy đủ nội thất và được bài trí cẩn thận, tạo sự nhẹ nhàng cho không gian. Phòng vệ sinh chung cho cả tầng được thiết kế trong góc nhà thuận tiện khi sử dụng.

Mẫu thiết kế nhà cấp 4 có gác lửng hình chữ L 3 phòng ngủ mái thái hiện đại.
Mẫu Nhà Cấp 4 Có Tầng Lửng. Công trình này có thiết kế khá độc đáo, được cách tân với phần mái bằng, kết hợp với mái hiên mái Thái hiện đại tạo nên điểm nhấn về mặt thẩm mỹ tổng thể. Kiến trúc nhà đẹp được thiết kế theo phong cách đơn giản từ đường nét đến màu sơn nhưng vẫn tạo được sự sang trọng và quý phái. Gác lửng được bố trí khéo léo với khoảng sân vừa làm sân phơi vừa là ban công thiết thực.

Tầng 1 được thiết kế với 2 hướng tiếp cận chính, một là từ sảnh chính đi vào phòng khách. Lối đi thứ hai đi từ sảnh phụ vào bếp. Các thành viên trong gia đình có thể vào thẳng bếp mà không cần phải qua phòng khách khi nhà có khách. Phòng khách được thiết kế nhiều cửa sổ thoáng mát. Sau đó là khu vực bếp kết hợp bàn ăn được ngăn cách với phòng khách bằng những thanh xà gỗ lộ ra ngoài. Bên trong là phòng ngủ và phòng vệ sinh chung.

Tầng lửng là 2 phòng ngủ, 1 phòng sinh hoạt chung và khu phơi đồ. Tất cả các phòng đều rộng rãi và có cửa sổ để thông gió.

Bài viết trên đã tổng hợp cho bạn đọc một vài Mẫu nhà cấp 4 gác xép phổ biến nhất gần đây. Hi vọng với những gợi ý trong bài viết, bạn sẽ lựa chọn được cho mình một mẫu thiết kế nhà ưng ý và phù hợp nhất. Nếu gia đình bạn có nhu cầu trải nghiệm những mẫu nhà cấp 4 hãy liên hệ ngay với chúng tôi CHÚNG TÔI LÀM Để nhận được những tư vấn khoa học và chính xác nhất cho công trình của gia đình bạn.