Xây nhà 3 tầng hiện đại 5 mẫu thiết kế nhà 3 tầng 5x10m
Nếu nói đến mẫu nhà 3 tầng tích hợp công năng thì không thể thiếu mẫu thiết kế nhà 3 tầng 5x10m. Sở hữu diện tích 50m2, bạn hoàn toàn biến ngôi nhà của mình trở nên sang trọng và hiện đại. Công ty House Viet xin gửi tới quý khách hàng thân thiết mẫu nhà 5x10m được xây dựng phổ biến trong thời gian gần đây. Hãy nhanh tay lưu lại những mẫu thiết kế nhà 5 × 10 độc đáo này nhé!
Mẫu 1: Thiết kế nhà 3 tầng 5x10m đẹp, hiện đại
Mẫu nhà 3 tầng đẹp dựa vào và diện tích mà có nhiều cách bố trí thiết kế và màu sắc khác nhau. Với mẫu nhà 5x10m dưới đây sử dụng gam màu trắng tinh tế tạo nên sự sang trọng cho ngôi nhà. Bên cạnh đó, hệ thống đèn âm trần kết hợp với lan can kính giúp ngôi nhà có cảm giác rộng và thoáng hơn.


Trong bản vẽ mẫu nhà 5x10m 3 tầng có thể thấy ngôi nhà gồm 1 phòng ngủ master và 2 phòng ngủ con. Vì sử dụng 3 tầng nên không gian sống vẫn đáp ứng được nhu cầu của gia chủ. Phòng bếp, phòng khách, khu sinh hoạt chung được bố trí hài hòa. Điều này cho thấy Mẫu nhà 3 tầng mặt tiền 5m hoàn toàn trở thành một ngôi nhà hiện đại và đẳng cấp


Mẫu 2: Mẫu nhà 3 tầng 1 tum 5x10m độc đáo
Mẫu thiết kế nhà 3 tầng đẹp nhất là khi bạn sở hữu một không gian xanh trong không gian hạn chế này. Mẫu nhà 3 tầng 1 tum với gam màu xanh lam được bố trí đều khắp các tầng. Điểm nổi bật của mẫu nhà 5x10m là tầng tum thoáng mát, được bao phủ bởi màu xanh thiên nhiên. Cách kiến trúc và cách bố trí tiểu cảnh khiến mẫu thiết kế nhà 3 tầng 5x10m trở nên độc đáo, hút mắt.



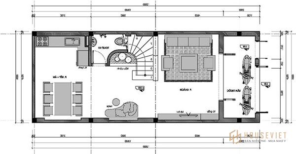
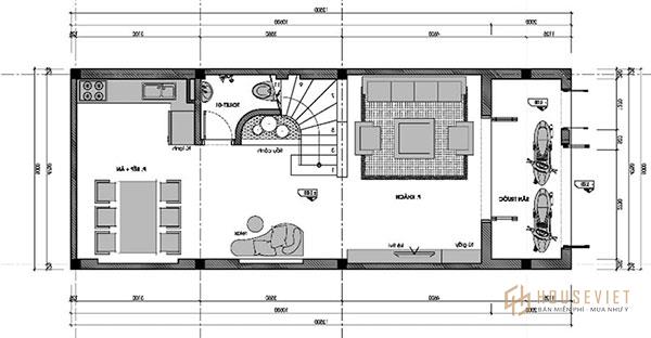
Một số mẫu thiết kế nhà 3 tầng 50m2 sử dụng bản vẽ mặt bằng. Cách này giúp mẫu nhà 5x10m thông thoáng và rộng rãi. Đồng thời, giếng trời có thể được sử dụng để đáp ứng nhu cầu giải trí và tổ chức tiệc. Vật mẫu thiết kế nhà 5 × 10 dưới đây chọn sơ đồ mặt bằng. Đồng thời có cách phối hợp màu sắc giữa các tầng khá lạ mắt.


Mẫu 3: Thiết kế nhà 3 tầng 5x10m dạng ống giá rẻ
Mẫu nhà đẹp 3 tầng 5m. nhà ống tuân thủ nguyên tắc của nhà ống thông thường. Điểm nhấn là thiết kế mặt tiền với những đường nét độc đáo và ấn tượng. Mẫu thiết kế nhà 5 × 10 dưới đây sử dụng những đường kẻ ngang dọc ấn tượng. Các đường nét sử dụng gam màu đen và nâu tương phản với màu sơn ngoại thất. Tuy nhiên nó lại khiến cho mẫu thiết kế nhà 3 tầng 5x10m trở nên lạ mắt và thẩm mỹ hơn.


Mẫu nhà ống 3 tầng dưới đây không sử dụng các đường kẻ ngang dọc dày đặc mà chỉ sử dụng 3 đường phào chỉ nổi bật. Kiến trúc thiết kế nhà 5x10m tạo nên sự kết hợp hài hòa. Không có màu sắc nào lấn át bất kỳ màu nào khác để tạo ra Mẫu nhà 3 tầng mặt tiền 5m. hấp dẫn.

Mẫu 4: Mẫu thiết kế nhà 3 tầng 5x10m có gara ô tô
Mẫu thiết kế nhà 3 tầng 50m2 có bố trí gara ô tô ở tầng trệt của ngôi nhà. Cách bố trí vừa phục vụ nhu cầu chứa xe vừa đảm bảo hiệu quả thẩm mỹ. Khu vực tầng 3 có điểm nhấn chính là lan can phủ đầy màu xanh thiên nhiên kết hợp với giếng trời ấn tượng. Điều này tạo ấn tượng đặc biệt cho mẫu thiết kế nhà 3 tầng 5x10m và không ảnh hưởng đến nhu cầu sử dụng.


Trong bản vẽ nhà 3 tầng, ngoài việc phân chia công năng hiệu quả thì việc sắp xếp đồ đạc cũng được ưu tiên hàng đầu. Điều này là vô cùng cần thiết với mẫu nhà 5x10m 3 tầng dưới đây. Việc sử dụng cửa kính để nhìn sâu vào bên trong cần phải tinh tế và hài hòa.


Mẫu 5: Mẫu thiết kế nhà 3 tầng 50m2 đơn giản mà tinh tế
Mẫu thiết kế nhà 3 tầng 50m2 theo xu hướng đơn giản nhưng tinh tế được nhiều gia chủ lựa chọn. Sử dụng bức tường lỗ đi kèm với màu xanh của cỏ tạo nên một mặt tiền “ngất ngây”. Mẫu nhà 5x10m mang đến cảm giác mới lạ và ấn tượng cho mặt tiền của ngôi nhà. Mẫu nhà đẹp 3 tầng mặt tiền 5m không quá rộng nhưng khiến ai cũng phải ngước nhìn.


Sự kết hợp hài hòa giữa mái vòm tân cổ điển và những đường nét hiện đại, phóng khoáng. Căn hộ, chung cư nhà 3 tầng hiện đại và được đánh giá cao về hiệu quả thẩm mỹ. Gam màu trắng nâu nhã nhặn kết hợp ăn ý với nhau tạo nên một tổng thể hoàn chỉnh. Kèm theo đó là cây xanh được cắt tỉa gọn gàng. Cách bố trí hài hòa, ấn tượng tạo nên mẫu thiết kế nhà 3 tầng 5x10m đơn giản nhưng đẳng cấp.


Mẫu thiết kế nhà 3 tầng 5x10m hứa hẹn sẽ mang đến cho bạn một không gian sống tiện nghi và hiện đại. Mặc dù hạn chế xây dựng các mẫu nhà 5x10m vẫn phục vụ tối đa nhu cầu sử dụng và sinh hoạt của gia chủ. Các bạn có nhu cầu tìm hiểu về các mẫu nhà 3 tầng đẹp nhất có thể liên hệ House Viet qua Hotline 1800 6015. Đội ngũ kiến trúc sư của chúng tôi sẽ tư vấn thiết kế và thi công những công trình độc đáo.
Xem thêm một số mẫu nhà 3 tầng hiện đại khác:
- Mẫu thiết kế nhà 3 tầng 5x15m đơn giản và tiện nghi
- Xây nhà đẹp 3 tầng hết bao nhiêu tiền?
House Viet - Vững niềm tin