Tư vấn thiết kế mẫu nhà đẹp 50m2 3 tầng hiện nay
Mẫu thiết kế nhà 3 tầng 50m2 sở hữu kiến trúc ấn tượng với công năng sử dụng hiệu quả. Cách kiến trúc sư xây dựng mặt tiền độc đáo, pha trộn màu sắc hút mắt. Chính vì lẽ đó, với diện tích hạn hẹp bạn vẫn sở hữu được mẫu nhà đẹp 50m2 có sức hút khó quên. Hãy cùng House Viet tìm hiểu mẫu thiết kế nhà nhỏ 50m2 đang được ưa chuộng nhất hiện nay.
Mẫu thiết kế nhà ống 50m2 đẹp, hiện đại
Mẫu thiết kế nhà 3 tầng 5x10m Sử dụng gam màu trắng tinh tế làm chủ đạo để trang trí toàn bộ ngoại thất. Bên cạnh đó là sự pha trộn màu sắc độc đáo tạo ấn tượng rõ nét. Màu cửa lớn đi cùng khung cửa đen tạo hiệu ứng thẩm mỹ. Cách sắp xếp khoa học các đường nét, thể hiện cá tính mạnh mẽ của gia chủ. Những chậu cây cảnh nhỏ được bố trí khoa học trên các tầng mang đến không gian sống tiện nghi, hiện đại.



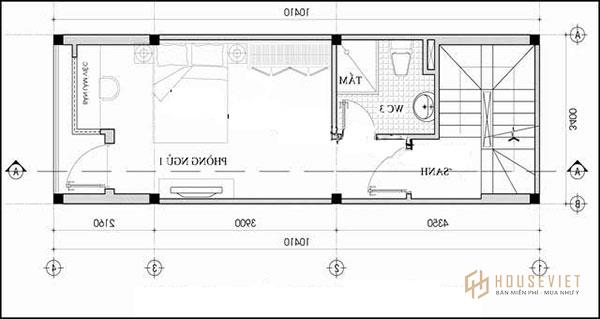
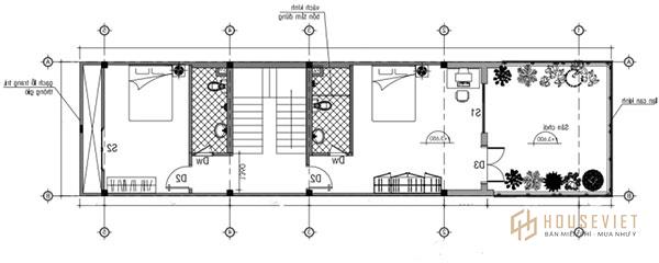
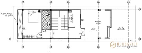
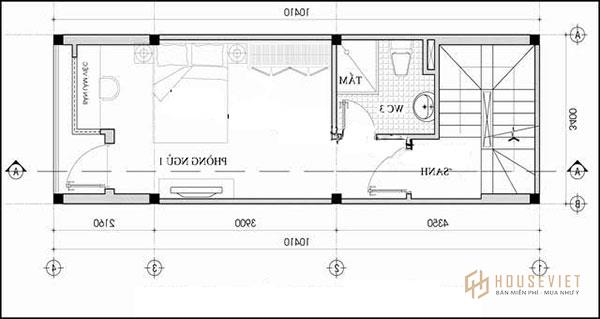
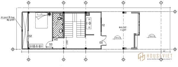
Bản vẽ thiết kế nhà 50m2 3 tầng chi tiết các phòng chức năng của ngôi nhà. Đi kèm với đó là khu sinh hoạt chung đáp ứng mọi nhu cầu của gia chủ. Cách bố trí phòng ngủ, bếp ăn được đánh giá hợp lý, hài hòa với tổng thể kiến trúc.


Mẫu thiết kế nhà 3 tầng 5x10m độc đáo
Thiết kế nhà ống 50m2 thường ưu tiên mặt tiền 5m vừa phục vụ nhu cầu sinh hoạt vừa dễ dàng chuyển đổi để kinh doanh. Sử dụng các đường vân với màu sắc nổi bật tạo hiệu ứng đặc biệt cho tổng thể ngôi nhà. Màu nâu kết hợp với màu trắng mang đến vẻ hiện đại và ấn tượng. Đèn trần kết hợp với khung cửa lớn mang lại hiệu ứng ấn tượng cho thiết kế nhà 50m2 3 tầng.



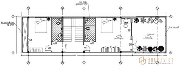
Bản vẽ thiết kế nhà 5 × 10 Không chỉ chi tiết mà còn là cách bố trí các phòng chức năng. Việc bố trí các yếu tố này cần đảm bảo sự thống nhất chặt chẽ và cụ thể đến từng yếu tố. Sự sắp xếp khoa học kèm theo những đường nét ấn tượng mang lại hiệu quả rõ rệt.



>>> Bạn có thể tham khảo thêm mẫu nhà 3 tầng 5x10m hiện đại nhất được nhiều người lựa chọn
Mẫu nhà đẹp 50m2 3 tầng 1 tum
Mẫu nhà 3 tầng 1 tum với sự biến tấu, xây dựng kiến trúc đa dạng. Tuy nhiên, mẫu nhà ống 3 tầng 5m đẹp được trạm chủ ưu tiên lựa chọn. Mặt tiền tầng 1 sẽ là điểm nhấn với cửa lớn lấy sáng lan tỏa rộng rãi. Tầng tum là khu vực bố trí cây xanh và không gian rộng phục vụ nhu cầu giải trí của gia chủ.


Mẫu nhà 3 tầng đẹp là khi sở hữu mẫu tầng tum tràn ngập sắc xanh thiên nhiên. Điều này vừa mang lại sự cân bằng màu sắc vừa tạo ra một bầu không khí trong lành. Cùng với đó, việc bố trí nội thất ngoài trời cũng là một yếu tố tạo nên vẻ đẹp của ngôi nhà. Mẫu thiết kế nhà 50m2 3 tầng ưu tiên những gam màu trung tính kết hợp với những gam màu tương phản tạo nên tổng thể ấn tượng.


Thiết kế nhà 50m2 3 tầng 2 mặt tiền
Nhà đẹp 50m2 ưu tiên sử dụng 2 mặt tiền để thu hút mọi ánh nhìn. Với mẫu nhà 5x10m, bạn có thể bố trí mặt tiền ấn tượng để tạo điểm nhấn thu hút cho ngôi nhà. Sử dụng 2 mặt tiền vừa phục vụ nhu cầu kinh doanh vừa phục vụ nhu cầu sinh hoạt. Bên cạnh đó còn có thể tạo hiệu ứng thẩm mỹ cho không gian sống.


Thiết kế nhà nhỏ 50m2 thúc đẩy sự minh bạch và thoải mái. Do đó, có thể bố trí thêm cây xanh, sử dụng những ô cửa lớn hoặc mô hình thông tầng. Mẫu thiết kế nhà 3 tầng 50m2 này tạo ra một môi trường sống trong lành và dễ chịu. Cùng với đó, nó mang đến sự thư thái và sức khỏe ổn định cho gia chủ.


Mẫu thiết kế nhà 3 tầng 50m2 có gara ô tô.
Mẫu thiết kế nhà 50m2 3 tầng có gara nói chung được ưa chuộng Mẫu nhà 3 tầng mặt tiền 5m. để có thể bố trí gara để xe thuận tiện. Ngoài ra, có thể kết hợp lan can độc đáo màu xanh thiên nhiên với khung cửa lớn tạo không gian sống thư thái. Cùng với đó, chọn màu sơn ngoại thất tương phản cũng là cách trang trí cho mẫu thiết kế nhà ống 50m2 đẹp


Thiết kế nhà 50m2 3 tầng chú trọng đến cây xanh cũng là xu hướng được nhiều người lựa chọn. Điều này hạn chế sự ngột ngạt, ngột ngạt và tăng không gian tươi mới. Cách tốt nhất để bảo vệ sức khỏe và nâng cao chất lượng cuộc sống ở mẫu nhà đẹp 50m2


House Viet cung cấp cho khách hàng mẫu thiết kế nhà 50m2 3 tầng Ấn tượng, ưu việt hiện nay. Hi vọng đây là một gợi ý độc đáo dành cho bạn trong quá trình lên ý tưởng thiết kế cho ngôi nhà của mình. Ngoài ra, chúng tôi sẵn sàng thiết kế và thi công nhiều công trình khác với chất lượng đảm bảo. Bạn có thể liên hệ qua Hotline 1800 6015 Hãy để đội ngũ kiến trúc sư giàu kinh nghiệm của chúng tôi hỗ trợ nhiệt tình.
Xem thêm:
- Mẫu thiết kế nhà nhỏ đẹp 30m2 3 tầng tiện nghi và sang trọng
- Xây nhà đẹp 3 tầng hết bao nhiêu tiền?
House Viet - Vững niềm tin